Spatiu comercial 65mp, Pasaj Nicolina - str. Carpati 1

1.100 € / lună
16.92 € / mp / lună

Nicolina, Iași

Sup. utilă / mp. utili:
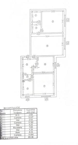
65 mp
Tip prop.:
Bloc de apartamente
Niv.:
4
An constr.:
1980 (Există)
  • • Locație exactă

Descriere spațiu comercial

Spatiu comercial 65mp, Pasaj Nicolina - str. Carpati 1 Spatiu comercial de inchiriat in zona Pasaj Nicolina - str. Carpati nr. 1 pentru: salon infrumusetare, birou, cabinet medical, sediu firma/ showroom s.a.; Fost salon de infrumusetare, Actualmente este activitate de birou. Eventual o parte din mobilier poate ramane, inclusiv automatul de cafea. 65,36mp, Centrala termica pe gaz si calorifere; 1 AC; Grup sanitar (si eventual se mai poate face unul), 2 cai de acces; Destinatie comerciala in acte; 1000-1200 Eur/luna; Contacteaza-ma pentru informații detaliate, recente si personalizate! Lucian Creanga - consultant imobiliar cu 400+ oferte spatii comerciale si 100.000mp+ tranzactionati - iti stau la dispozitie!
+4074**** Vezi tot numărul
(tel., sms, whatsapp),
lucia**** Trimite email
; Comision zero daca discutam doar de aceasta oferta si daca nu am mai analizat alte oferte impreuna. Am pregatit pentru tine un portofoliu cu peste 400 de oferte, tocmai ca sa cunosti mai bine piata, sa-ti clarifici criteriile de selectie si sa-ti maximizezi termenii de inchiriere. Esti agent imobiliar? Haide sa facem echipa eficienta impreuna pe termen lung.
Citește mai mult Citește mai puțin
Modernizat

Detalii spațiu comercial

ID anunț: XB8Q040JE Copiat! 274279931 Copiat!
Actualizat în: 23 Ianuarie 2026
Regim înălțime: P+4E
Stadiu construcție: Există
Suprafață teren: 65 mp

Utilități

Utilități
Gaze Curent Canalizare Apă

Vecinătăți:

Pasaj Nicolina

Subspații disponibile

Spatiu comercial 65mp, Pasaj Nicolina - str. Carpati 1

Chirie / u.m. / lună:
16.92307693 EUR/mp (total: 1100 EUR/lună)
Înălțime spațiu (m):
2.5
Suprafață disponibilă:
65
Disponibilitate spațiu:
imediat
Etaj:
Parter / 4
Vitrină:
Da

Puncte de interes

Mijloace transport
bus-station
Statia "Pod Nicolina", linia 44
Stații autobuz aprox. 59 m
bus-station
Statia "Pod Nicolina", linia 28
Stații autobuz aprox. 146 m
tram-station
statia "Bazar", linia 11
Stații tramvai aprox. 351 m
train-station
Gara Internațională Nicolina
Stații tren aprox. 706 m
Școală
kindergarten
Gradinita cu Program Normal Nr. 12
Gradinițe aprox. 217 m
kindergarten
Gradinita Kitty
Gradinițe aprox. 401 m
school
Scoala "Vasile Conta" (Nr. 36)
Școli aprox. 417 m
university
Facultatea de Constructii Iasi
Universități aprox. 997 m
Recreere
park
Parc
Parcuri aprox. 165 m
supermarket
Kaufland
Supermarket aprox. 328 m
sports-ground
Teren sportiv
Terenuri sport aprox. 656 m
mall
Shopping Center on Shopping Street(Palas) (en)
Mall aprox. 1304 m

Proprietăți recomandate

Detalii de contact

Abonează-te la newsletter să fii primul care primește cele mai noi recomandări de proprietăți și sfaturi de la experți.

CONTACT

Creează alertă

Salvează căutarea ca să primești pe email ultimele anunțuri publicate

Spații comerciale de închiriat în zona Nicolina, Iași