Spatiu comercial Tatarasi , la bulevard 190mp

1.998 € / lună
10.52 € / mp / lună

Tătărași, Iași

Sup. utilă / mp. utili:
190 mp
Tip prop.:
Showroom
Niv.:
1
  • • Locație exactă

Descriere spațiu comercial

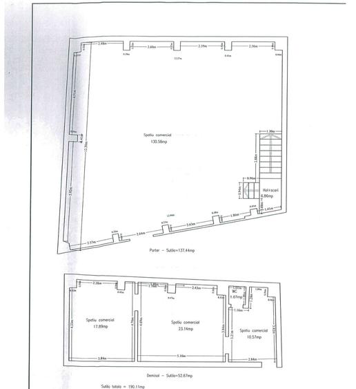
Într-o zonă foarte circulată din Tătărași, unde traficul auto și pietonal este constant pe tot parcursul zilei, se află un spațiu comercial pregătit să devină locul ideal pentru o nouă afacere. Vizibilitatea bună și fluxul mare de oameni oferă condiții excelente pentru dezvoltarea unei activități comerciale. La parter, spațiul te întâmpină cu o suprafață generoasă de 130 mp utili, luminoasă și ușor de adaptat pentru orice tip de activitate. Vitrina de aproximativ 12 metri liniari oferă o vizibilitate excelentă, ideală pentru a atrage privirile trecătorilor și pentru a-ți face brandul remarcat încă din prima clipă. Coborând la demisol, descoperim încă 52 mp bine organizați, unde se află grup sanitar și două camere de depozitare, perfecte pentru stocuri, spații tehnice sau organizarea eficientă a activității zilnice. Poziționarea este unul dintre marile atuuri ale acestui spațiu. Fiind situat într-o zonă extrem de circulată, atât auto cât și pietonal, oferă oportunități excelente pentru numeroase tipuri de afaceri: supermarket, farmacie, showroom, restaurant, cafenea, clinică sau diverse servicii comerciale. Spațiul dispune de centrală termică proprie și toate utilitățile, fiind pregătit pentru a deveni rapid locul unde ideea ta de business prinde viață. Preț: 2000 euro / lună (nepurtător de TVA) Pentru mai multe detalii: Susanu Bogdan – 0726 / 733 / 073
Citește mai mult Citește mai puțin
Aer condiționat Căldură

Detalii spațiu comercial

ID anunț: X7M20401L Copiat! 275203335 Copiat!
Actualizat în: 05 Martie 2026
Regim înălțime: P+1E
Stadiu construcție: Există

Utilități

Utilități
Gaze Curent Canalizare Apă
Comision
standard

Certificat energetic:

Clasa energetică: B

Subspații disponibile

Chirie / u.m. / lună:
10.52 EUR/mp (total: 1998.8 EUR/lună), Comision: standard
Suprafață disponibilă:
190
Disponibilitate spațiu:
imediat
Etaj:
Parter / 1
Vitrină:
Da

Puncte de interes

Mijloace transport
bus-station
Statia "Dr. Savini", linia 18,27
Stații autobuz aprox. 86 m
tram-station
Statia "Dr. Savini", linia 3,11,13
Stații tramvai aprox. 140 m
bus-station
Flora
Stații autobuz aprox. 273 m
tram-station
Flora
Stații tramvai aprox. 281 m
Școală
kindergarten
GRĂDINIȚA CU PROGRAM PRELUNGIT NR. 13, Iași
Gradinițe aprox. 68 m
kindergarten
Gradinita cu program prelungit Ion Creanga
Gradinițe aprox. 91 m
school
Scoala Ionel Teodoreanu
Școli aprox. 346 m
university
Catedra de Ed Fiz si Sport - Univ Tehn Gh Asachi
Universități aprox. 693 m
Recreere
park
Parc
Parcuri aprox. 24 m
supermarket
Supermarket Lidl
Supermarket aprox. 393 m
sports-ground
Teren sportiv
Terenuri sport aprox. 474 m
mall
Iulius Mall
Mall aprox. 909 m

Proprietăți similare

Spațiu comercial, de 300 mp, în Tătărași
2.100 € / lună
Iași, Tătărași
300 mp utili
Bloc de apartamente
2024
Spațiu industrial, în Nicolina
2.000 € / lună
Iași, Nicolina
Logistică
2015
Spațiu industrial, 500 mp în Exterior Vest
1.800 € / lună
Iași, Exterior Vest
500 mp utili
Logistică
2012

Detalii de contact

Abonează-te la newsletter să fii primul care primește cele mai noi recomandări de proprietăți și sfaturi de la experți.

CONTACT

Creează alertă

Salvează căutarea ca să primești pe email ultimele anunțuri publicate

Spații comerciale de închiriat în zona Tătărași, Iași