Vă prezentăm spre închiriere un spațiu comercial versatil, situat într-o zonă cu vad comercial exceptional, Sos. Stefan cel Mare .
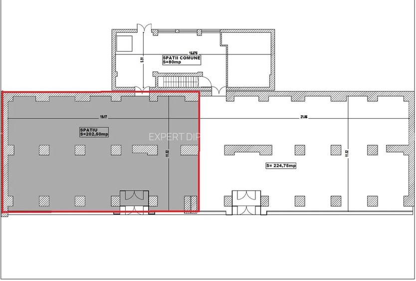
SUPRAFATA UTILA :402,5 mp,
SUPRAFATA VITRINA : 11 ml.
Spatiul se poate impartii.
Imobilul este compus dintr-un show-room de 202,5 mp, zona de receptie, vestiare, toalete in partea din spate (commune cu spatial vecin) si o suparfata generoasa de 200 mp pentru depozitare, situate la subsol, accesul facandu-se pe o scara interioara si cu ajutorul unui lift.
2 intrări separate (una frontala și una prin spate), ceea ce oferă posibilitatea aprovizionarii prin accesul secundar.
Spațiul este disponibil imediat și beneficiază de toate utilitățile esențiale.
Sediul central - Timișoara
Bulevardul Victor Babeș nr. 2, 300230, Timișoara, România
Tel: +40.374.40.44.98 / Fax: +40.256.401.179
Email: suport@imobiliare.ro
Luni - Vineri 08:00 - 20:00
Punct de lucru - București: Iride Business Park, Bld. Dimitrie
Pompeiu 9-9A, Clădirea B2B,
020335, Sector 2, București, România
CONTACT
Sediul central - Timișoara
Bulevardul Victor Babeș nr. 2, 300230, Timișoara, România
Tel: +40.374.40.44.98 / Fax: +40.256.401.179
Email: suport@imobiliare.ro
Luni - Vineri 08:00 - 20:00
Punct de lucru - București: Iride Business Park, Bld. Dimitrie
Pompeiu 9-9A, Clădirea B2B,
020335, Sector 2, București, România
Metrorex. Stația Obor (M1)(1989)(Fosta statie de tramvai subterana)
aprox.
549 m
Metrorex. Stația Ștefan cel Mare (M1)(1989)
aprox.
1162 m
Statia Soseaua Mihai Bravu, linia 14
aprox.
1262 m
Statia Metrou Piata Romana(M2)Metrorex
aprox.
1849 m
Statia Metrou Piata Romana(M2)Metrorex
aprox.
1857 m
Metrorex. Stația Piața Romană (M2)(1988)
aprox.
1864 m
Piata Romana (M2)
aprox.
1864 m
Statia Teiul Doamnei, linia 66
aprox.
855 m
Statia Soseaua Mihai Bravu, linia 68,85
aprox.
1262 m
Statia Mihai Bravu; Liniile:69, 85,
aprox.
1287 m
Statia Foisorul de Foc linii : 79,86
aprox.
1320 m
Statia Soseaua Pantelimon 85, 69
aprox.
1382 m
Statia Doamna Ghica, linia 66
aprox.
1421 m
Statia Doamna Ghica, linia 66
aprox.
1617 m
Statia Piata Iancului, linia 55
aprox.
1636 m
Statia Calea Dorobantilor; Liniile:79, 86,
aprox.
1645 m
Statia Gara Obor, linia 69,85
aprox.
1704 m
Statia Piata Romana linii : 79,86
aprox.
1840 m
Gara Obor Bucuresti-EST
aprox.
1750 m
Scoala Postliceala Carol Davila (en)
aprox.
305 m
Liceul Tehnologic Special nr. 3
aprox.
579 m
Scoala Pentru Hipoacuzici
aprox.
592 m
Gradinita Magnolia
aprox.
629 m
Scoala Generala nr.28
aprox.
711 m
Scoala Generala nr. 28
aprox.
711 m
Scoala Generala 27
aprox.
769 m
Scoala generala nr. 27
aprox.
776 m
ȘCOALA DE ARTE ȘI MESERII NR. 3
aprox.
800 m
Scoala Nr. 50
aprox.
813 m
Scoala de Arte si Meserii Nr. 3
aprox.
856 m
Colegiul National "Cantemir-Voda"
aprox.
884 m
gradinitza "zori de zi"
aprox.
930 m
Scoala de muzica si arte plastice nr. 4
aprox.
990 m
Scoala generala nr. 24
aprox.
992 m
Universitatea Spiru Haret - Facultatea de Medicina veterinara
aprox.
532 m
UTCB-Laborator de Hidraulica si Protectia Mediului
aprox.
1186 m
Facultatea de Hidrotehnica
aprox.
1258 m
CROS - Universitatea Alternativa
aprox.
1268 m
Universitatea Technică de Construcții (UTCB)
aprox.
1288 m
Universitatea Tehnica de Constructii Bucuresti
aprox.
1304 m
Facultatea de Constructii Civile, Industriale si Agricole
aprox.
1315 m
Facultatea de Constructii Civile
aprox.
1333 m
UTCB - Facultatea de Geodezie
aprox.
1366 m
Facultatea de Cai Ferate Drumuri si Poduri, Facultate de Geodezie
aprox.
1389 m
Athenaeum University (en)
aprox.
1503 m
Universitatea Atenaeum
aprox.
1509 m
Facultatea de Instalatii (en)
aprox.
1528 m
ASE - Cibernetica
aprox.
1665 m
Universitatea din Bucuresti - Facultatea de Stiinte Politice
aprox.
1697 m
Gradinita numarul 135
aprox.
730 m
Gradinita nr. 135
aprox.
736 m
Gradinita numarul 233
aprox.
810 m
Gradinita numarul 8
aprox.
924 m
Gradinita Nr. 234 - Zori de zi
aprox.
955 m
Gradinita Numarul 7
aprox.
957 m
Gradinita nr. 7
aprox.
979 m
Gradinita nr. 138 cu program prelungit
aprox.
1030 m
Coccinelle
aprox.
1110 m
Gradinita nr. 233
aprox.
1170 m
Gradinita Sakura
aprox.
1186 m
Gradinita numarul 133
aprox.
1222 m
Gradinita numarul 257
aprox.
1278 m
Gradinita
aprox.
1379 m
Gradinita numarul 276
aprox.
1391 m
Stock Market
aprox.
64 m
Mega Image Lizeanu Non-Stop
aprox.
116 m
Mega Image Supermarket
aprox.
132 m
Mega Image
aprox.
439 m
Mega Image
aprox.
540 m
Mega Image
aprox.
607 m
Mega Image Fainari
aprox.
624 m
Bucur Obor
aprox.
635 m
Complex Comercial OBOR
aprox.
817 m
Cristim
aprox.
821 m
Kaufland
aprox.
865 m
Mega Image
aprox.
891 m
Veranda Mall
aprox.
921 m
Carrefour Express
aprox.
932 m
Hamudi Star Company
aprox.
933 m
"METROPLIS CENTER"
aprox.
1739 m
Parcare
aprox.
373 m
Parcare
aprox.
387 m
Parcare
aprox.
455 m
Parcare
aprox.
487 m
Parcare
aprox.
487 m
Parcare
aprox.
543 m
Parcare
aprox.
569 m
Parcare
aprox.
610 m
Parcare
aprox.
639 m
Parcare privata
aprox.
655 m
Parcare
aprox.
707 m
Parcare
aprox.
709 m
Parcare
aprox.
718 m
Parcare
aprox.
722 m
Parcare
aprox.
784 m
Respawn B
aprox.
275 m
Gradinita
aprox.
346 m
Etaj 1 - Hala CQB
aprox.
351 m
Parter - Hala mare
aprox.
359 m
Respawn A
aprox.
372 m
Teren sportiv
aprox.
1204 m
Teren sportiv
aprox.
1332 m
Stadionul Dinamo
aprox.
1360 m
Teren sportiv
aprox.
1366 m
Teren sportiv
aprox.
1380 m
Teren sportiv
aprox.
1398 m
Teren sportiv
aprox.
1442 m
Teren sportiv
aprox.
1443 m
Teren sportiv
aprox.
1511 m
Teren sportiv
aprox.
1610 m
Parc
aprox.
423 m
Rond
aprox.
505 m
Parculet
aprox.
512 m
Parc
aprox.
643 m
Cosmos Party
aprox.
643 m
Parc
aprox.
651 m
PARC
aprox.
685 m
Parc
aprox.
720 m
Parc
aprox.
723 m
parculet
aprox.
729 m
Loc de joaca
aprox.
736 m
Parcul Pasarari
aprox.
736 m
Parcul Pasarari
aprox.
736 m
Obor Park (en)
aprox.
762 m
Parcul Obor
aprox.
775 m
Piata Bucur Obor
aprox.
615 m
Piata Latina
aprox.
1644 m
Piata Iancului
aprox.
1685 m
Piața Romană
aprox.
1874 m
Catena
aprox.
27 m
Farmacia Punkt
aprox.
64 m
Unitatea 141
aprox.
96 m
Farmacia Humanitas
aprox.
100 m
Richter
aprox.
105 m
Mako
aprox.
161 m
Farmacia Nr. 3 - Centrofarm
aprox.
174 m
Flavona
aprox.
223 m
Belladonna 43
aprox.
327 m
Catena
aprox.
382 m
Sensiblu Spitalul Colentina
aprox.
397 m
Dalv Farm
aprox.
430 m
Sensiblu
aprox.
466 m
Pharma Life
aprox.
470 m
Farmacia Belladonna 90
aprox.
476 m
Centrul de Sanatate al RATB
aprox.
311 m
Centrul de Sanatate RATB
aprox.
330 m
PAVILIONUL B
aprox.
380 m
PAVILIONUL A
aprox.
384 m
Pavilion D - Policlinica Grozovici
aprox.
408 m
Pavilonul C
aprox.
416 m
PAVILIONUL D
aprox.
421 m
PAVILIONUL E
aprox.
450 m
Sectia Cardiologie
aprox.
454 m
PAVILIONUL F
aprox.
477 m
Facultatea Veterinara (en)
aprox.
528 m
PAVILIONUL G
aprox.
529 m
PAVILIONUL I
aprox.
535 m
POLICLINCA MASINA DE PAINE
aprox.
542 m
Pavilonul J
aprox.
548 m
Kebab Mania
aprox.
55 m
A la Turka Gratar
aprox.
74 m
La Taverna Bar & Grill
aprox.
443 m
Fostul InesBurger
aprox.
460 m
San Marino
aprox.
469 m
PHD by Pizza Hut Obor - 021-210.10.10
aprox.
482 m
Little City
aprox.
482 m
Pizza Hut
aprox.
485 m
Trattoria il Calcio
aprox.
491 m
Dominium
aprox.
512 m
Casa Jienilor
aprox.
520 m
Restaurant Casa Jienilor
aprox.
527 m
Dominium Pizza (en)
aprox.
544 m
Damak
aprox.
555 m
Spring Time (en)
aprox.
557 m
La Baraca
aprox.
498 m
E... Varza
aprox.
690 m
Cup & Cake
aprox.
1138 m
Alan Dala
aprox.
1152 m
MIM Bistro
aprox.
1161 m
Lokal
aprox.
1288 m
Trei Betivi
aprox.
1404 m
Antic Bar
aprox.
1423 m
Voltage Bar
aprox.
1434 m
ACAB Pub
aprox.
1473 m
RSS Pub
aprox.
1568 m
Daniel
aprox.
1629 m
Zappa Rock & More
aprox.
1645 m
Piua Book Bar
aprox.
1678 m
Geo Bar
aprox.
1700 m
Slot Cafe
aprox.
601 m
Cappucini
aprox.
777 m
Shiva
aprox.
1126 m
Smart Change
aprox.
1144 m
Ganesha Cafe
aprox.
1181 m
Caffe Tabiet
aprox.
1243 m
OstrawVegan
aprox.
1283 m
Cafe Lautrec
aprox.
1423 m
Tana de lupo
aprox.
1470 m
Hathor Cafe
aprox.
1584 m
Fitto Cafe
aprox.
1594 m
Tucano Coffee
aprox.
1624 m
Tucano Coffee - Dorobanti
aprox.
1625 m
5 To Go Lahovari
aprox.
1645 m
Mon Amour
aprox.
1653 m
Restaurant-pizzerie BONA DA ELENA
aprox.
972 m
Open Pub
aprox.
1077 m
Waldo's
aprox.
1262 m
Smart's Pub & Bistro
aprox.
1307 m
Terasa Rustica Foisor
aprox.
1358 m
Bluzz
aprox.
1466 m
Panik & Pub
aprox.
1515 m
OLD NICK PUB
aprox.
1659 m
Studio Martin
aprox.
1678 m
La Pierde Tren
aprox.
1788 m
Le Boutique Food Concept Store
aprox.
1812 m
Have a Cigar
aprox.
1896 m
BCR
aprox.
37 m
ING Stefan cel Mare - Lizeanu
aprox.
73 m
BRD Lizeanu
aprox.
79 m
Sucursala ING Bank (en)
aprox.
79 m
Banca Romaneasca
aprox.
129 m
Banca Transilvania - Ag. Lizeanu
aprox.
138 m
UniCredit Bank - Ag. Lizeanu
aprox.
144 m
Raiffeisen Bank - Agentia Lizeanu
aprox.
271 m
Credit Europe Bank
aprox.
467 m
Raiffaisen bank
aprox.
482 m
Raiffeisen Bank
aprox.
484 m
CEC Bank
aprox.
502 m
BRD Bucur Obor
aprox.
586 m
Credit Europe Bank
aprox.
587 m
Credit Europe Bank
aprox.
593 m
Zona Ștefan cel Mare - Dacia - Eminescu - Armenească este destul de bine conectată cu alte cartiere din București prin intermediul mijloacelor de transport în comun. Printre acestea amintim autobuzul 605 pe care îl poți lua pentru a ajunge la mall-ul Băneasa Shopping City, tramvaiul 16 care te poate ajuta să ajungi la Piața Sf. Vineri și troleibuzul 86 care oferă o legătură directă cu Gara de Nord. Mai multe stații de metrou sunt și ele disponibile în apropiere. Este vorba despre Ștefan cel Mare și Obor, aflate pe magistrala 1 Dristor - Pantelimon, și despre Piața Romană și Universitate situate pe traseul magistralei 2 Berceni-Pipera. Consultă harta pentru a afla poziționarea exactă a stațiilor mijloacelor de transport în comun.
În zona Ștefan cel Mare - Dacia - Eminescu - Armenească vei găsi mai multe unități de învățământ, de stat și private. Amintim astfel Colegiul Național Școala Centrală de lângă Parcul Grădina Icoanei, Colegiul Național "Spiru Haret" de pe Strada Italiană, Colegiul Național "Cantemir Vodă" și Liceul Economic "Virgil Madgearu", ambele situate pe Bulevardul Dacia. Școala Sanitară Postliceală "Carol Davila" se află și ea în această zonă, iar Academia de Studii Economice din București poate fi găsită în apropiere, la Piața Romană. Consultă harta pentru a vedea care vor fi cele mai apropiate grădinițe, școli și licee de viitoarea ta locuință.
În această zonă vei găsi, în principal, magazine mici și câteva supermarketuri. La intersecția dintre Bulevardul Dacia și Strada Vasile Lascăr vei avea la dispoziție Piața Gemeni și un concept store Mega Image. Cel mai apropiat mall este situat în zona Obor. Este vorba despre Veranda Mall, unul dintre cele mai noi astfel de centre comerciale din București. Tot aici găsești magazinul Bucur Obor și o piață. Cu mașina poți ajunge destul de rapid și la mall-ul Promenada sau la complexul comercial cu magazin Kaufland și Carrefour Market de pe Strada Barbu Văcărescu. Consultă harta și află ce alte opțiuni mai ai aproape de viitoarea ta casă, dar și în împrejurimi.
Îți recomandăm să verifici dacă există posibilitatea închirierii unui loc de parcare în apropierea locuinței de care ești interesat. Poți face acest lucru apelând la Serviciul Parcări din cadrul ADP Sector 2. Atunci îți aducem în atenție faptul că Bulevardul Dacia, Strada Mihai Eminescu și Strada Polonă sunt unele dintre cele mai circulate din această zonă. Trafic intens vei întâlni, totodată, la intersecția dintre Calea Dorobanți, Bulevardul Dacia și Strada Mihai Eminescu. Aglomerație vei găsi și pe Bulevardul Ștefan cel Mare, mai ales la orele de vârf și în zilele în care se organizează evenimente sportive în cadrul stadionului Dinamo. Consultă harta și vezi unde se găsesc principalele parcări din această zonă.
În zona Ștefan cel Mare - Dacia - Eminescu - Armenească se organizează periodic diferite evenimente, de la ateliere, la festivaluri și demonstrații de artă stradală. Dacă te vei muta în această parte a orașului, vei avea la doi pași de casă mai multe ceainării, restaurante, spații unde se organizează jocuri de tip escape room și trei teatre - Țăndărică, Metropolis și Bulandra. Pentru evenimente culturale și seri de film vei putea merge pe Bulevardul Dacia, la Institutul Francez din București. Ajungi repede și în centru, unde poți fi spectatorul unei piese puse în scenă de actorii Teatrului Național București. Parcurile Grădina Icoanei și Ioanid, deși sunt destul de restrânse ca suprafață, sunt unele dintre cele mai frumoase din această parte a orașului. Totodată, în nordul acestei zone, în imediata apropiere a Șoselei Ștefan cel Mare, vei găsi Circul Metropolitan București și parcul acestuia, iar în vecinătatea lor Stadionul Dinamo și complexul său sportiv. Nu uita, totodată, că din această zonă vei ajunge destul de rapid în Centrul Vechi, unde pe lângă terase și restaurante găsești și câteva obiective turistice care merită vizitate măcar o dată. Află ce alte puncte de interes găsești în zona Ștefan cel Mare - Dacia - Eminescu - Armenească și din vecinătatea acesteia. Consultă harta.
Dacă te vei muta în această zonă, vei avea la dispoziție mai multe spitale și clinici private. Printre acestea se numără Spitalul Clinic Dr. Ion Cantacuzino din zona Pieței Gemeni și Spitalul Ion Stroia . Alte unități sanitare din vecinătate sunt Spitalul Clinic Colentina, Spitalul Sf. Ștefan, Spitalul Clinic de Urgență București (cunoscut și ca Floreasca) și Spitalul Euroclinic din rețeaua privată de sănătate Regina Maria. Toate acestea sunt concentrate în nordul zonei Ștefan cel Mare - Dacia - Eminescu - Armenească, în vecinătatea Stadionului Dinamo și a Parcului Circului. Vezi pe hartă localizarea exactă a unităților medicale de mai sus.
Presărate pe străzile din această zonă găsești mai multe terase și restaurante mici. Câteva dintre cele mai cochete se află în vechiul cartier Armenesc. De aici ajungi extrem de repede și în Centrul Vechi al orașului, pentru mai multă diversitate. Fiind atât de aproape de centrul orașului, vei avea la dispoziție extrem de multe opțiuni. Restaurantele și cafenelele din Dorobanți sau de pe Calea Floreasca pot fi cu siguranță pe gustul tău. Dacă vrei să faci și o plimbare, să admiri arhitectura frumoasă a vechilor clădiri din București și să te oprești la o cafea sau la o prăjitură, atunci Calea Victoriei poate fi ideală. Pentru o mică gustare sau un meniu fast food ai mai multe variante în zona Obor, iar dacă te grăbești atunci poți încerca drive through-ul McDonald"™s de pe Strada Barbu Văcărescu. Aruncă o privire pe hartă și vezi ce alte restaurante, terase sau cafenele ai în zonă.
Găsești mai multe sucursale bancare și ATM-uri în special pe Șoseaua Ștefan cel Mare. Aruncă o privire pe hartă și vezi ce alte opțiuni găsești în apropierea viitoarei tale locuințe.
Înainte să pleci...
Ești sigur că ai văzut și aceste proprietăți?
5.997 € / lună
București, Ștefan cel Mare
402,5 mp utili
Spațiu stradal
11E
6.018 € / lună
București, Ștefan cel Mare
177 mp utili
Spațiu stradal
5.500 € / lună
București, Ștefan cel Mare
250 mp utili
Clădire de birouri
18E
Creează alertă
Salvează căutarea ca să primești pe email ultimele anunțuri publicate
Spații comerciale de închiriat în zona Ștefan cel Mare, Sector 2
Cere detalii prin email
*
*
*
*
Detaliile tale de contact vor fi partajate cu Expert Diplomatic Fest