Investitie Strategica: Spatiu Comercial 150 mp pe Calea Bucuresti

350.000 € + TVA

Calea București, Brașov

Sup. utilă / mp. utili:
150 mp
Niv.:
10
An constr.:
1986 (Există)
  • • Locație aproximativă
  • • Vizionare prin apel video

Descriere spațiu comercial

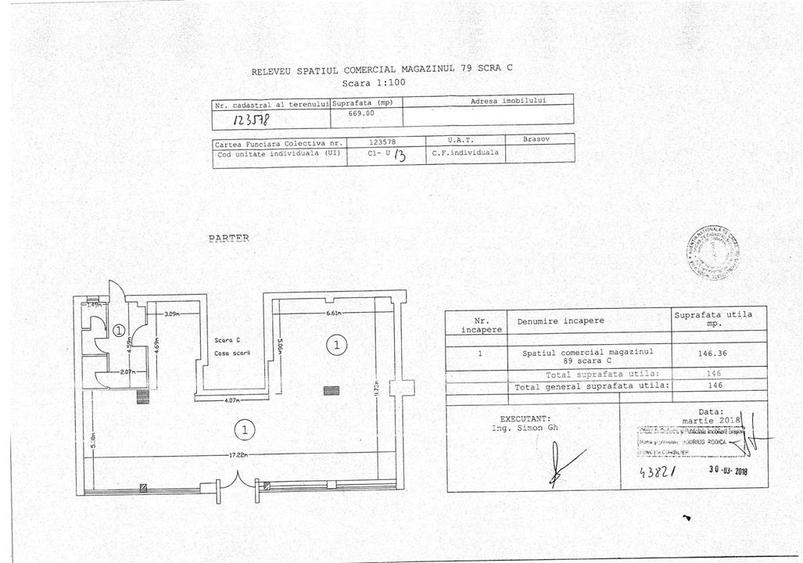
Agenția imobiliară Sweet House vă propune spre vânzare un spațiu comercial de excepție, situat într-una dintre cele mai vizibile și tranzitate locații din Brașov: intersecția Calea București cu strada Soarelui. Această proprietate reprezintă o oportunitate rară de a achiziționa un spațiu cu vad comercial deja format, fiind poziționat strategic într-un hub de interes major, chiar lângă Profi. ?? Caracteristici Principale: Suprafață utilă: 150 mp, cu o compartimentare versatilă ce permite adaptarea pentru diverse activități comerciale sau de servicii. Vizibilitate Maximă: Vitrină generoasă cu expunere directă la Calea București, asigurând un impact vizual puternic pentru orice brand. Dotări Tehnice: Locația este echipată cu curent trifazic, un avantaj esențial pentru activități care necesită un consum energetic ridicat (cabinete medicale, laboratoare, cafenele sau retail specializat). Accesibilitate: Acces facil pentru clienți și zonă de aprovizionare funcțională. ?? Avantajele Locației: Vad Comercial Garantat: Amplasarea lângă o ancoră precum Profi generează un flux pietonal constant pe tot parcursul zilei. Conectivitate: Situat pe principala arteră de intrare în oraș, spațiul beneficiază de un trafic auto intens și de proximitatea stațiilor de transport în comun. Potențial ridicat: Pretabil pentru showroom, clinică medicală stomatologică, sediu bancar, farmacie sau magazin de prezentare. Nota Agentului: "Calea București rămâne 'kilometrul zero' al comerțului brașovean. Un spațiu de 150 mp la o astfel de intersecție, dotat cu curent trifazic, este o investiție sigură care garantează o randabilitate pe termen lung, fie prin exploatare proprie, fie prin închiriere." Preț: 350.000 EUR + TVA (negociabil)
Citește mai mult Citește mai puțin
Căldură

Detalii spațiu comercial

ID anunț: XDM11401B Copiat! 275323956 Copiat!
Actualizat în: 20 Martie 2026
Regim înălțime: P+10E
Stadiu construcție: Există

Utilități

Utilități
Apă Curent Gaze Canalizare

Certificat energetic:

Clasa energetică: B

Vecinătăți:

Restaurant/pub, Benzinarie, Intersectie circulata, Supermarket, Banca, Zona comerciala, Autobuz

Puncte de interes

Mijloace transport
bus-station
Berzei
Stații autobuz aprox. 231 m
bus-station
Statia "Berzei", linia 5,17,35
Stații autobuz aprox. 275 m
bus-station
Statia "Berzei", linia 5
Stații autobuz aprox. 277 m
bus-station
Berzei
Stații autobuz aprox. 288 m
Școală
school
Scoala Generala 28
Școli aprox. 233 m
school
Scoala Generala nr 23
Școli aprox. 236 m
kindergarten
Gradinita 23
Gradinițe aprox. 299 m
university
Universitatea "George Baritiu"
Universități aprox. 871 m
Recreere
sports-ground
Teren sportiv
Terenuri sport aprox. 189 m
park
Parcul Someșul
Parcuri aprox. 244 m
supermarket
Mega Image
Supermarket aprox. 296 m
bar
Queen's Pub
Bar aprox. 431 m

Proprietăți similare

Spațiu comercial, 250 mp în Griviței
330.000 €
Brașov, Griviței
250 mp utili
Casă/Vilă
2E
Spațiu comercial, de 519 mp, în Exterior Est
318.000 €
Brașov, Exterior Est
519 mp utili
Casă/Vilă
2E
Birou, 105 mp în 13 Decembrie
319.000 €
Brașov, 13 Decembrie
105 mp utili
Bloc de apartamente
9E

Detalii de contact

SWEET HOUSE GENARDIS

Dan Moldovan Consultant imobiliar

SWEET HOUSE GENARDIS
PRO

Abonează-te la newsletter să fii primul care primește cele mai noi recomandări de proprietăți și sfaturi de la experți.

CONTACT

Creează alertă

Salvează căutarea ca să primești pe email ultimele anunțuri publicate

Spații comerciale cu o cameră de vânzare în zona Calea București, Brașov