Tomis Plus, SPATIU COMERCIAL 128 mp.

220.000 € + TVA

Tomis Plus, Constanța

Sup. utilă / mp. utili:
83 mp
Tip prop.:
data_properties.building_type.shopping-center
An constr.:
2013 (Finalizată)
  • • Locație aproximativă

Descriere spațiu comercial

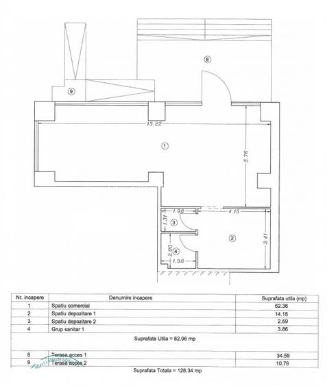
Agenția Zig-Zag vă propune spre închiriere un spațiu comercial cu poziționare strategică, amplasat direct la Bd. Tomis, în zona Tomis Plus – una dintre cele mai dinamice și în continuă dezvoltare zone ale orașului. Cu o suprafață totală de 128 mp, spațiul este compus din: - 83 mp. utili interior, open space, cu posibilitate de re/compartimentare in functie de necesitati; - două terase generoase in proprietate, de 11 mp. și 35 mp.; - vitrină amplă, cu deschidere de 13 ml + 6 ml. Expunerea vitrată impresionantă oferă vizibilitate maximă și lumină naturală abundentă, asigurând un impact vizual puternic pentru orice tip de activitate comercială sau de servicii. Configurația spațiului permite adaptarea pentru: showroom, cafenea / concept store, servicii premium, clinică / cabinet, birou reprezentativ etc. Amplasamentul la bulevard, într-o zonă rezidențială consolidată, garantează trafic constant și potențial comercial ridicat. Proprietar persoana juridic ( pret+TVA). Pentru informații suplimentare și stabilirea unei vizionări, vă invităm să ne contactați.
Citește mai mult Citește mai puțin

Detalii spațiu comercial

ID anunț: XECR140FJ Copiat! 275204488 Copiat!
Actualizat în: 09 Martie 2026
Suprafață utilă: 128 mp
Structură rezistență: Beton
Stadiu construcție: Finalizată

Utilități

Utilități
Curent Apă Canalizare

Puncte de interes

Mijloace transport
bus-station
Statia Carrefour, autobuzele 100C, 43C
Stații autobuz aprox. 1188 m
bus-station
Carrefour [43C 100C]
Stații autobuz aprox. 1251 m
bus-station
Sanatoriu [3]
Stații autobuz aprox. 1397 m
bus-station
Sere[3 43C 100C]
Stații autobuz aprox. 1546 m
Școală
school
Școala cu Clasele I-VIII Nr.14
Școli aprox. 1188 m
school
Scoala Nr. 14
Școli aprox. 1189 m
kindergarten
Gradinita Nr.39
Gradinițe aprox. 1206 m
university
Baza nautica UMC
Universități aprox. 1823 m
Recreere
supermarket
Carrefour
Supermarket aprox. 1010 m
supermarket
Centrul Comercial Tom
Supermarket aprox. 1068 m
park
Parc
Parcuri aprox. 1881 m
restaurant
Popasul Cismea Restaurant (en)
Restaurant aprox. 1954 m

Proprietăți recomandate

Detalii de contact

ZIG ZAG INTERMED

Oana Barbieru

4.80(5 review-uri)

ZIG ZAG INTERMED
PRO

Abonează-te la newsletter să fii primul care primește cele mai noi recomandări de proprietăți și sfaturi de la experți.

CONTACT

Creează alertă

Salvează căutarea ca să primești pe email ultimele anunțuri publicate

Spații comerciale cu o cameră de vânzare în zona Tomis Plus, Constanța