Spatiu comercial, 252.70 mp, zona Centru

556.000 € + TVA

Central, Craiova

Sup. utilă / mp. utili:
252,7 mp
Tip prop.:
Centru comercial
Niv.:
4
  • • Locație aproximativă

Descriere spațiu comercial

Blitz va propunem spre vanzare un spatiu comercial situat intr-o zona semicentrala, cu acces facil si vizibilitate buna, avand o suprafata totala de 252.70 mp. Spatiul este nou si se preda la gri, oferind viitorului proprietar libertatea de a-l finisa si compartimenta in functie de propriile nevoi si concept. Datorita suprafetei generoase si a pozitionarii avantajoase, spatiul este potrivit pentru multiple destinatii, precum: birouri, cabinet medical, salon de infrumusetare, showroom, magazin de prezentare, sediu firma sau alte activitati comerciale. Pretul este plus TVA. Cod oferta / ID BLITZ: P162099 Nr grupuri sanitare: 2 Nr incaperi: 1 Utilitati - Sistem incalzire (Centrala proprie); Utilitati generale (Curent,Apa,Canalizare,Gaz) Finisaje - Izolatii termice (Exterior); Ferestre cu geam termopan (PVC) pret vanzare: 556000 moneda vanzare: EUR Disponibilitate proprietate: imediat
Citește mai mult Citește mai puțin

Detalii spațiu comercial

ID anunț: X3SH143NI Copiat! 275240595 Copiat!
Actualizat în: 10 Martie 2026
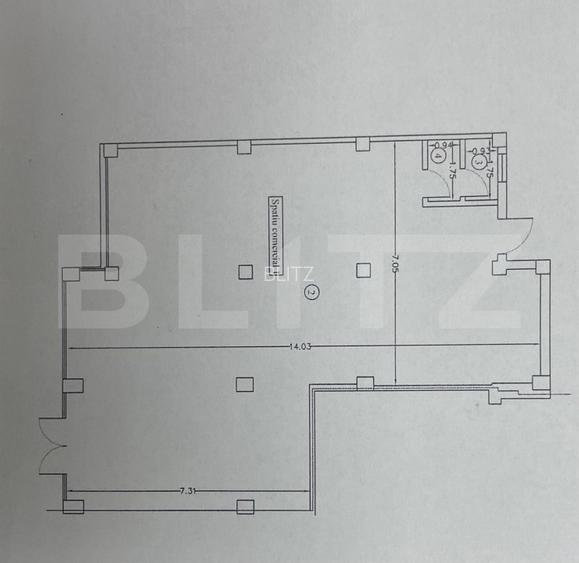
Suprafață utilă: 252.7 mp
Regim înălțime: P+4E

Utilități

Utilități
Curent Apă Canalizare Gaze
Sistem încălzire
Centrală proprie
Mobilat
Nemobilat
Izolații termice
Exterior
Ferestre cu geam termopan
PVC
Comision
%

Puncte de interes

Mijloace transport
bus-station
Drumul Fabricii
Stații autobuz aprox. 410 m
bus-station
Aprozar
Stații autobuz aprox. 684 m
tram-station
Casa Tineretului
Stații tramvai aprox. 1809 m
tram-station
Casa Tineretului
Stații tramvai aprox. 1809 m
Școală
school
Liceul Charles Laugier
Școli aprox. 1190 m
school
Colegiul Tehnic de Industrie Alimentara
Școli aprox. 1447 m
university
Campus Agronomie
Universități aprox. 1479 m
kindergarten
Gradinita Micul Print
Gradinițe aprox. 1530 m
Recreere
park
Parc
Parcuri aprox. 807 m
sports-ground
Teren sportiv
Terenuri sport aprox. 933 m
restaurant
Fornetti
Restaurant aprox. 1267 m
supermarket
Cocosul Vesel
Supermarket aprox. 1574 m

Proprietăți similare

Spațiu comercial, de 240 mp, în Ultracentral
520.000 €
Craiova, Ultracentral
240 mp utili
Casă/Vilă
1E
Spațiu comercial, de 172.3 mp, în Brazda lui Novac
528.000 €
Craiova, Brazda lui Novac
172,3 mp utili
Centru comercial
Spațiu comercial, de 377 mp, în 1 Mai
565.500 €
Craiova, 1 Mai
377 mp utili
Casă/Vilă
2E

Detalii de contact

Abonează-te la newsletter să fii primul care primește cele mai noi recomandări de proprietăți și sfaturi de la experți.

CONTACT

Creează alertă

Salvează căutarea ca să primești pe email ultimele anunțuri publicate

Spații comerciale de vânzare în zona Central, Craiova