Oportunitate reala de investitie, zona Ultracentrala, str. Iosif Vulcan

80.000 € + TVA

Ultracentral, Oradea

Sup. utilă / mp. utili:
175,4 mp
Tip prop.:
Bloc de apartamente
  • • Comision 0%
  • • Exclusivitate
  • • Locație exactă

Descriere spațiu comercial

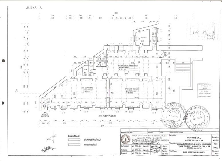
Nu o sa te mint, iti prezint o proprietate in care va trebui sa investesti. Cat? Depinde doar de tine, dar cu siguranta nu vei mai gasi o alta proprietate la 450 euro/mp, mai ales in zona ultracentrala. Pe strada Iosif Vulcan nr. 14, la demisol, vis-a-vis de Casa Darvas-La Roche si in imediata vecinatate a parcarii etajate, vei gasi acest spatiu comercial cu o suprafata UTILA de 175,4 mp. Locatia beneficiaza de trafic intens, atat pietonal, cat si auto. Iti voi prezenta in prima instanta toate "minusurile" proprietatii: 1. Este la demisol. 2. Fiind si in zona ultracentrala, panza freatica este la un nivel ridicat, deci vom gasi urme de infiltratii. 3. Atunci cand intri in imobil, va trebui sa ai grija sa nu dai cu capul in bolta de caramida. 4. Cand vom viziona proprietatea, vom merge cu lanterna de la telefoane deoarece racordul la curent a fost intrerupt. DAR.... Ne intoarcem la zona - ultracentrala. Locurile de parcare sunt la cativa metri distanta. Suprafata utila a proprietatii este de 175,4 mp. Exista a doua iesire de urgenta, necesara pentru eventualitatea obtinerii unor autorizatii viitoare. Proprietatea este compartimentata astfel: -3 incaperi principale, -magazie, -vestiar, -2 grupuri sanitare, atat pentru clienti cat si pentru personal. Spatiul este potrivit atat pentru investitie (avand potential de randament ridicat), cat si pentru desfasurarea de activitati comerciale proprii. Pentru informatii suplimentare si programarea unei vizionari, va rugam sa ne contactati. Nr grupuri sanitare: 2 Nr incaperi: 4 pret vanzare: 80000 moneda vanzare: EUR Disponibilitate proprietate: imediat
Citește mai mult Citește mai puțin

Detalii spațiu comercial

ID anunț: XE4C1400F Copiat! 275111788 Copiat!
Actualizat în: 25 Februarie 2026
Suprafață utilă: 175.4 mp
Regim înălțime: D+P

Puncte de interes

Mijloace transport
tram-station
Piata 1 Decembrie
Stații tramvai aprox. 233 m
tram-station
Primarie
Stații tramvai aprox. 258 m
bus-station
Statie Decebal
Stații autobuz aprox. 1150 m
bus-station
Bus 11
Stații autobuz aprox. 1552 m
Școală
school
Scoala Generala
Școli aprox. 395 m
school
Colegiul National Mihai Eminescu
Școli aprox. 529 m
university
Universitatea Crestina Partium - Cladirea Sulyok
Universități aprox. 788 m
university
Universitatea Oradea
Universități aprox. 1704 m
Recreere
bar
Lokal
Bar aprox. 108 m
park
Piata Libertatii
Parcuri aprox. 192 m
sports-ground
Teren sportiv
Terenuri sport aprox. 477 m
supermarket
Billa
Supermarket aprox. 722 m

Proprietăți similare

Spațiu industrial, 49.77 mp în Calea Clujului
78.000 €
Oradea, Calea Clujului
49,77 mp utili
Logistică
1E
Spațiu comercial, 88 mp în Centru Civic
80.000 €
Oradea, Centru Civic
88 mp utili
Bloc de apartamente
Spațiu comercial, de 54 mp, în Ineu
80.000 €
Județul Bihor, Ineu
54 mp utili
4E
1980

Detalii de contact

Blanc Imobiliare

Cristian Lazar BrokerOwner

Blanc Imobiliare
PRO

Abonează-te la newsletter să fii primul care primește cele mai noi recomandări de proprietăți și sfaturi de la experți.

CONTACT

Creează alertă

Salvează căutarea ca să primești pe email ultimele anunțuri publicate

Spații comerciale de vânzare în zona Ultracentral, Oradea