3

OCAZIE / SPATIU COMERCIAL GARA DE NORD / RANDAMENT BUN

175.000 €

Gara de Nord, București

Sup. utilă / mp. utili:
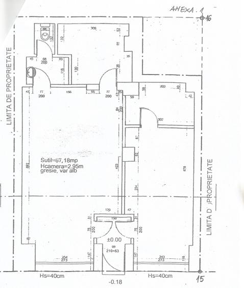
67 mp
Tip prop.:
Bloc de apartamente
Niv.:
5
An constr.:
1940 (Există)
  • • Comision 0%
  • • Exclusivitate
  • • Locație exactă

Descriere spațiu comercial

*Spațiu comercial,situat intr-o zona intens circulata in zona Gării de Nord, în imediata apropiere a Garii de Nord și Ministerului Transporturilor. Amplasat la parterul unui imobil cu iesire directa in strada ,acest spatiu beneficiaza de o vizibilitate excelenta si de un vad pietonal intens, deschiderea fiind de aproximativ 7 ml. Spatiul dispune de o suprafata de aprox 67 mp (cu posibilitatea recompartimentarii) ,un grup sanitar propriu și o camera/camere depozitare Spatiul este inchiriat de multi ani cu o chirie foarte buna cu un randament foarte bun si pentru investitie Imobilul este incadrat pe u2 Pentru detalii suplimentare și vizionari vă stăm la dispoziție.
Citește mai mult Citește mai puțin
Căldură

Detalii spațiu comercial

ID anunț: X50V0400O Copiat! 275297323 Copiat!
Actualizat în: 19 Martie 2026
Regim înălțime: P+5E
Stadiu construcție: Există
Grad de ocupare: 100%
Vitrină: Da
Recomandare utilizare: Pentru investiție

Utilități

Utilități
Canalizare Curent Apă Gaze
Comision
0%

Puncte de interes

Mijloace transport
metro-station
Gara de Nord 1
Stații metrou aprox. 27 m
bus-station
Gara de Nord 1 (M1)
Stații autobuz aprox. 54 m
tram-station
Gara de Nord
Stații tramvai aprox. 123 m
train-station
Vechea "Gara a Targovistei" astazi parte din Gara de Nord
Stații tren aprox. 197 m
Școală
university
Corp A
Universități aprox. 102 m
university
Facultatea de Inginerie Medicala
Universități aprox. 132 m
school
Scoala Nr. 1 Sfintii Voievozi
Școli aprox. 244 m
kindergarten
Gradinita nr. 206
Gradinițe aprox. 382 m
Recreere
supermarket
Mega Image
Supermarket aprox. 156 m
park
Spațiu verde Gara de Nord
Parcuri aprox. 156 m
hypermarket
Intrarea in caminele C si D din grozavesti
Hipermarket aprox. 1117 m
mall
"METROPLIS CENTER"
Mall aprox. 1713 m

Proprietăți similare

Spațiu comercial, 80 mp în Gara de Nord
162.900 €
București, Gara de Nord
80 mp utili
Centru comercial
1965
Spațiu comercial, de 65.54 mp, în Dămăroaia
170.000 €
București, Dămăroaia
65,54 mp utili
Spațiu stradal
2010
Spațiu comercial, 24 mp în Dorobanți
167.900 €
București, Dorobanți
24 mp utili
Casă/Vilă
1E

Detalii de contact

CONFORT IMOB ESTATE

DRAGOS MIHAI SENIOR BROKER

5.00(3 review-uri)

CONFORT IMOB ESTATE
PRO

Abonează-te la newsletter să fii primul care primește cele mai noi recomandări de proprietăți și sfaturi de la experți.

CONTACT

Creează alertă

Salvează căutarea ca să primești pe email ultimele anunțuri publicate

Spații comerciale de vânzare în zona Gara de Nord, Sector 1