Va propunem spre cumpărare, in zona sectorului 2, Ramuri Tei - Barbu Vacarescu Kaufland 5 min,
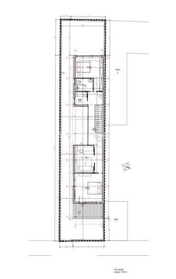
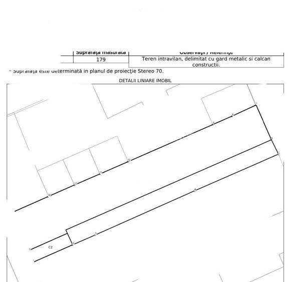
- Constructie P+M, pozitionată în imediata apropriere a Strazii Barbu Vacarescu, structura metalica cu fundație din beton, construita pe toata lungimea terenului in anul 1996 pe un teren de 179 mp, cu o deschidere catre strada de 6 ML.
- Conform certificatului de Urbanism imobilul se afla in subzona L1a, locuinte individuale și colective mici P+2 niveluri.
- Utilizari admise: Locuinte individuale și colective cu maxim P+2 niveluri în regim de construire continuu (însiruit) sau discontinuu (cuplat sau izolat). Posibilitate mansardare constructie existente.
- Amprenta 118 mp, parter 93 mp + magazie 25 mp, pivnita 5 mp, mansarda 81 mp, înaltime 7 m
- Imobilul este pretabil pentru locuinta cat si birouri sau diverse activitati de productie.
- Necesita renovare integrala,
- Regim juridic : constructii industriale si edilitare,
- Dispune de toate utilitățile, curent electric trifazic, incalzire cu cetrală termică pe gaze, apa, canalizare,
- Acces rapid Barbu Vacarescu 5 min, Calea Floreasca 10 Min de mers pe jos cat si alte puncte de inters ale zonei.
- Situatie juridica clară, certificat energetic in lucru,
- Agentie, comision standard,
- Rog si ofer maxima seriozitate !
-Pentru detalii suplimentare si vizionare, ne puteti contacta la numarul Aurelian ACI
Sediul central - Timișoara
Bulevardul Victor Babeș nr. 2, 300230, Timișoara, România
Tel: +40.374.40.44.98 / Fax: +40.256.401.179
Email: suport@imobiliare.ro
Luni - Vineri 08:00 - 20:00
Punct de lucru - București: Iride Business Park, Bld. Dimitrie
Pompeiu 9-9A, Clădirea B2B,
020335, Sector 2, București, România
CONTACT
Sediul central - Timișoara
Bulevardul Victor Babeș nr. 2, 300230, Timișoara, România
Tel: +40.374.40.44.98 / Fax: +40.256.401.179
Email: suport@imobiliare.ro
Luni - Vineri 08:00 - 20:00
Punct de lucru - București: Iride Business Park, Bld. Dimitrie
Pompeiu 9-9A, Clădirea B2B,
020335, Sector 2, București, România
Statia Soseaua Stefan cel Mare / Stadion Dinamo, linia N123,1, 5, 46
aprox.
1093 m
Stefan cel Mare
aprox.
1112 m
Statia Soseaua Stefan cel Mare / Stadion Dinamo, linia 1, 5, 46, N123
aprox.
1129 m
Stefan cel Mare
aprox.
1161 m
Statia Liceul Ion Luca Caragiale, linia 131, 182, 330, 331, 335, N113, 301
aprox.
1164 m
Statia Institutul de Constructii, linia 182, 282, N123
aprox.
1184 m
Metrorex. Stația Ștefan cel Mare (M1)(1989)
aprox.
1120 m
Piata Aviatorilor (M2)
aprox.
1811 m
Statia Metrou Piata Obor(M1)Metrorex
aprox.
1834 m
Statie metrou Aviatorilor
aprox.
1872 m
Metrorex. Stația Obor (M1)(1989)(Fosta statie de tramvai subterana)
aprox.
1916 m
Aurel Vlaicu (M2)
aprox.
1970 m
Metrorex. Stația Aurel Vlaicu (M2)(1987)
aprox.
1993 m
Statia Teiul Doamnei, linia 66
aprox.
1757 m
Statia Calea Dorobantilor; Liniile:79, 86,
aprox.
1836 m
Statia Doamna Ghica, linia 66
aprox.
1879 m
Statia Doamna Ghica, linia 66
aprox.
1915 m
Statia Piata Romana linii : 79,86
aprox.
1961 m
Athenaeum University (en)
aprox.
339 m
Universitatea Atenaeum
aprox.
346 m
Facultatea de Hidrotehnica
aprox.
1171 m
UTCB-Laborator de Hidraulica si Protectia Mediului
aprox.
1209 m
Universitatea Technică de Construcții (UTCB)
aprox.
1235 m
Facultatea de Constructii Civile
aprox.
1246 m
Universitatea Tehnica de Constructii Bucuresti
aprox.
1251 m
Facultatea de Constructii Civile, Industriale si Agricole
aprox.
1252 m
UTCB - Facultatea de Geodezie
aprox.
1311 m
Facultatea de Cai Ferate Drumuri si Poduri, Facultate de Geodezie
aprox.
1321 m
Universitatea Spiru Haret - Facultatea de Medicina veterinara
aprox.
1574 m
CROS - Universitatea Alternativa
aprox.
1581 m
ASE - Cibernetica
aprox.
1819 m
SNSPA
aprox.
1835 m
Scoala Nationala de Studii Politice si Administrative (SNSPA)
aprox.
1844 m
Gradinita numarul 12 Albinuta
aprox.
371 m
Gradinita nr. 12 Albinuta
aprox.
383 m
Paradisul Copiilor
aprox.
489 m
Gradinita nr. 7
aprox.
786 m
Gradinita nr. 7
aprox.
789 m
Gradinita Numarul 7
aprox.
793 m
Gradinita cu program normal si prelungit Happy Kids
aprox.
853 m
Gradinita Nr. 234 - Zori de zi
aprox.
1015 m
Gradinita nr. 138 cu program prelungit
aprox.
1269 m
Gradinita numarul 233
aprox.
1428 m
Gradinita SOS Satul Copiilor
aprox.
1444 m
Gradinita nr. 252 cu program prelungit
aprox.
1502 m
Gradinita de copii nr.251
aprox.
1563 m
Gradinita numarul 135
aprox.
1576 m
Gradinita nr. 135
aprox.
1584 m
Colegiul Tehnic "Traian"
aprox.
377 m
ȘCOALA CU CLASELE I-VIII NR. 10
aprox.
377 m
Maria Rosetti
aprox.
377 m
Liceul Tehnic Traian
aprox.
385 m
Gradinita Floreasca Rahmaninov
aprox.
505 m
LICEUL TEORETIC "C.A. ROSETTI"
aprox.
624 m
Liceul C.A. Rosetti
aprox.
624 m
Scoala de muzica si arte plastice nr. 4
aprox.
779 m
Scoala Gimnaziala de Arte nr. 4
aprox.
792 m
Scoala Generala nr.28
aprox.
923 m
Scoala Generala nr. 28
aprox.
923 m
Scoala nr. 15
aprox.
1046 m
Liceul Teoretic "Alexandru Vlahuta"
aprox.
1053 m
gradinitza "zori de zi"
aprox.
1053 m
Liceul Alexandru Vlahuta + Scoala 15 (en)
aprox.
1096 m
Kaufland Barbu Vacarescu
aprox.
195 m
BILLA - B. Vacarescu
aprox.
224 m
Mega Image
aprox.
463 m
Domino Plaza
aprox.
773 m
Issa Supermarket
aprox.
829 m
Mega Image Maica Domnului Non-Stop
aprox.
907 m
Mega Image
aprox.
1157 m
Mario Plaza
aprox.
1161 m
Nic Dorobanti Non-Stop
aprox.
1166 m
Mega Image
aprox.
1374 m
Mega Image - IANCU DE HUNEDOARA
aprox.
1439 m
Best Supermarket
aprox.
1443 m
Ethos supermarket
aprox.
1445 m
Stock Market
aprox.
1452 m
Mega Image Lizeanu Non-Stop
aprox.
1502 m
"METROPLIS CENTER"
aprox.
1468 m
Parcare
aprox.
97 m
Parcare
aprox.
176 m
Parcare
aprox.
422 m
Parcare
aprox.
568 m
Parcare
aprox.
585 m
Parcare privata
aprox.
721 m
Parcare
aprox.
724 m
Parcare
aprox.
777 m
Small parking
aprox.
785 m
Parcare
aprox.
785 m
Parcare
aprox.
918 m
Parcare
aprox.
923 m
Parcare
aprox.
946 m
Parcare
aprox.
959 m
Parcare
aprox.
960 m
Teren sportiv
aprox.
337 m
ICSIM
aprox.
368 m
Teren sportiv
aprox.
626 m
Teren sportiv
aprox.
725 m
Teren sportiv
aprox.
778 m
Teren sportiv
aprox.
826 m
Teren sportiv
aprox.
857 m
Teren sportiv
aprox.
858 m
Teren sportiv
aprox.
872 m
Teren sportiv
aprox.
887 m
Teren sportiv
aprox.
887 m
Teren sportiv
aprox.
893 m
Teren sportiv
aprox.
895 m
Teren sportiv
aprox.
897 m
Teren sportiv
aprox.
899 m
Parc
aprox.
363 m
Parcul Floreasca Cinema
aprox.
371 m
Parc
aprox.
487 m
Parcul Circului
aprox.
605 m
Parc
aprox.
648 m
Automatica Park (en)
aprox.
648 m
Parcul Circului(1961)
aprox.
690 m
Spatii verzi
aprox.
785 m
Parcul Verdi
aprox.
849 m
Parcul Verdi
aprox.
861 m
Parcul Floreasca(1963)
aprox.
866 m
Parc
aprox.
891 m
Parc
aprox.
1110 m
Parc
aprox.
1125 m
George Calinescu Round (en)
aprox.
1205 m
Piața Aviatorilor
aprox.
1848 m
Piata Bucur Obor
aprox.
1968 m
Piața Romană
aprox.
1986 m
Dispensar floreasca
aprox.
322 m
Syromed+
aprox.
874 m
PROVITA
aprox.
895 m
Scorseze Medical Grup
aprox.
913 m
ProEstetica
aprox.
929 m
Pavilonul J
aprox.
962 m
Clinica de Boli Profesionale
aprox.
989 m
PAVILIONUL I
aprox.
994 m
PAVILIONUL D
aprox.
996 m
Spitalul de Pneumoftiziologie Sfantul Stefan
aprox.
1000 m
Pavilion D - Policlinica Grozovici
aprox.
1009 m
PAVILIONUL H
aprox.
1022 m
Sectia Cardiologie
aprox.
1023 m
Pavilonul C
aprox.
1025 m
Centrul Medical Hiperdia
aprox.
1031 m
Farmacia Richter
aprox.
420 m
Farmacia Tei
aprox.
448 m
Catena Farmacie
aprox.
456 m
Sante
aprox.
463 m
Sensiblu
aprox.
472 m
Farmacia Tei
aprox.
495 m
Bebe Tei
aprox.
508 m
Farmacia Nr. 17
aprox.
522 m
Farmaplus
aprox.
649 m
Panaceea
aprox.
724 m
Help Net Farma
aprox.
745 m
Farmacia Dona
aprox.
762 m
BellaDona
aprox.
776 m
City Pharma
aprox.
786 m
Sensiblu
aprox.
806 m
McDonald's
aprox.
146 m
Restaurant Balbek
aprox.
408 m
Circus Pub
aprox.
420 m
Restaurant BUGATTI 2000
aprox.
590 m
Bun si Tot
aprox.
609 m
Spring Time
aprox.
617 m
Ganesha Garden
aprox.
681 m
Don Carlos
aprox.
713 m
Restaurant arabesc
aprox.
750 m
Kanpai
aprox.
777 m
Restaurant Diesel
aprox.
810 m
Restaurant by the lake (en)
aprox.
830 m
Issa kebap
aprox.
844 m
Vivo Fusion Food Bar
aprox.
868 m
Trattoria Cavallino
aprox.
914 m
Restaurant-pizzerie BONA DA ELENA
aprox.
421 m
Barletto
aprox.
1144 m
Open Pub
aprox.
1268 m
Doncafe Brasserie
aprox.
1319 m
Studio Martin
aprox.
1359 m
Panik & Pub
aprox.
1792 m
Waldo's
aprox.
1835 m
Cup & Cake
aprox.
663 m
La Baraca
aprox.
892 m
Sky Bar
aprox.
1196 m
ACAB Pub
aprox.
1622 m
Alan Dala
aprox.
1666 m
Lokal
aprox.
1674 m
Happy Pub
aprox.
1745 m
Zappa Rock & More
aprox.
1775 m
Ganesha Cafe
aprox.
681 m
Fitto Cafe
aprox.
814 m
Ambiance Caffe
aprox.
1061 m
Randez Vous
aprox.
1098 m
The Eatery
aprox.
1109 m
Nuba Cafe
aprox.
1142 m
High Heels
aprox.
1149 m
Reader's Cafe
aprox.
1473 m
Smart Change
aprox.
1542 m
Shiva
aprox.
1620 m
Cafe Centro
aprox.
1687 m
Spazi Caffe Promenada
aprox.
1727 m
Tucano Coffee - Dorobanti
aprox.
1775 m
Filicori Promenada
aprox.
1785 m
Tucano Coffee
aprox.
1792 m
ING Kaufland Barbu Vacarescu
aprox.
145 m
CEC BANK
aprox.
423 m
Raiffeisen Bank
aprox.
504 m
Centrul de perfectionare BRD
aprox.
505 m
Garanti Bank
aprox.
647 m
Banca Romaneasca
aprox.
651 m
Garanti Bank
aprox.
691 m
Raiffeisen Bank
aprox.
701 m
Raiffaisen Bank
aprox.
750 m
Banca Transilvania - Ag. Lacul Tei
aprox.
761 m
Banca Romaneasca
aprox.
821 m
BCR Lacul Tei
aprox.
883 m
ING Lacul tei
aprox.
923 m
Banca Comerciala Carpatica
aprox.
1053 m
ProCredit Bank
aprox.
1095 m
Dacă te vei muta în zona Tei, vei avea la dispoziție mai multe mijloace de transport în comun. Printre acestea se numără tramvaiele 16 și 36. Primul oferă o conexiune rapidă cu zona Pipera sau te poate ajuta să ajungi la doi pași de Piața Unirii. Cel de-al doilea merge până în cartierul Titan. Cu autobuzul 182 poți să te deplasezi până în zona Gării de Nord, iar cu autobuzul 282 până la Gara Basarab. Cele mai apropiate stații de metrou pe care le vei alea la dispoziție, dacă te vei muta în Tei, sunt Ștefan cel Mare și Obor, ambele aflate pe traseul magistralei 1 Dristor - Pantelimon. Este important de menționat și faptul că în zona Fabrica de Glucoză - Petricani de la marginea cartierului există autostrada urbană. Practic, ai o legătură directă cu A3 București-Ploiești. Consultă harta pentru a afla unde sunt poziționate stațiile mijloacelor de transport în comun.
În zona Tei găsești mai multe grădinițe și școli. Printre unitățile de învățământ din cartier se numără Școala Gimnazială nr. 28 din zona Parcului Circului și Școala Gimnazială nr. 31 de pe Bulevardul Lacul Tei. Tot aici se află și Liceul Teoretic Traian și Universitatea Tehnică de Construcții din București, una dintre cele mai importante instituții de învățământ superior din Capitală. Consultă harta pentru mai multe opțiuni.
Dacă te muți în cartierul Tei, cel mai ușor îți poi face cumpărăturile în zona Obor. Ai acolo atât magazinul Bucur Obor, cât și halele și piața Obor. Imediat lângă acestea se află mall-ul Veranda care include un hipermarket Carrefour. La doi pași găsești și magazinul Kaufland Colentina. O altă zonă comercială, care include un magazin Kaufland cu o mică galerie comercială și un Carrefour Market, este localizată pe Strada Barbu Văcărescu. De aici ajungi foarte repede și la mall-ul Promenada. Centrul comercial Pipera Plaza poate fi, de asemenea, o opțiune bună pentru tine, mai ales dacă lucrezi în zona Pipera. Cuprinde mai mulți retaileri, câteva restaurante și cafenele. Consultă harta și vezi unde poți să-ți faci cumpărăturile, dacă te muți în cartierul Tei.
Îți recomandăm să te interesezi dacă poți închiria un loc de parcare în apropierea locuinței dorite. Trebuie să apelezi în acest sens la Biroul Parcări din cadrul ADP Sector 2. Este important, totodată, să știi că dacă te deplasezi cu mașina vei întâlni aglomerație în trafic în zona Străzii Doamna Ghica, în special la intersecția dintre aceasta, Bulevardul Lacul Tei și Strada Petricani. Intersecția se află pe ruta directă spre polul de business Pipera. De menționat este și faptul că în zona Fabrica de Glucoză - Petricani de la marginea cartierului există autostrada urbană. Practic, ai o legătură directă cu A3 București - Ploiești. Trafic îngreunat apare și la intersecția dintre Șoseaua Ștefan cel Mare și Strada Lizeanu, iar în zona intersecției Doamna Ghica există un proiect extensiv în lucru pentru realizarea unui pasaj rutier suprateran.
Dacă te vei muta în zona Tei, vei avea în apropierea casei tale mai multe parcuri și locuri de joacă. Parcul Lacul Tei cuprinde numeroase atracții pentru cei mici și o roată mare de unde te poți bucura de priveliști frumoase ale orașului. În zona Parcului Studențesc Tei vei găsi săli de fitness, cluburi de lux, terenuri sportive și Stadionul Studențesc, iar în partea de sud a cartierului Parcul Circului și Circul Metropolitan București (fostul Globus). În vecinătatea lor se află Stadionul Dinamo. Parcul Plumbuita poate fi o altă opțiune pentru a petrece o după-amiază liniștită în aer liber. Cel mai apropiat mall la care vei avea acces este Veranda. Aici vei putea merge la un cinema VR sau îți vei putea duce copilul la un loc de joacă indoor. Ajungi destul de rapid și la mall-ul Promenada. Dacă nu te deranjează să mergi câteva minute cu mașina, atunci trebuie să știi că ajungi destul de rapid la mall-ul Promenda, dar și în Piața Victoriei unde găsești mai multe muzee. Îți poți lăsa mașina în parcarea publică aflată aici și poți face o mică plimbare pe Calea Victoriei. Găsești destul de multe obiective de vizitat în zonă și ai și unde să faci un popas la o cafea. Pentru o experiență inedită îți recomandăm o scurtă plimbare cu mașina până în cartierul Primăverii. Aici vei putea să vizitezi Palatul Primăverii, fosta reședință grandioasă a lui Nicolae Ceaușescu. Atenție, însă, ai nevoie de rezervare în avans. Află ce alte puncte de interes găsești în zona Tei și în împrejurimi de pe hartă.
Printre cele mai apropiate unități medicale la care vei putea apela, dacă te vei muta în zona Tei, se numără Spitalul Clinic Colentina și Institutul Național de Boli Infecțioase Prof. Dr. Matei Balș, ambele situate în vecinătatea Parcului Circului. La intersecția dintre Strada Barbu Văcărescu și Șoseaua Ștefan cel Mare vei găsi, totodată, Spitalul Sf. Ștefan. În imediata apropiere a acestuia se află și Spitalul Clinic de Urgență București și Spitalul Euroclinic din rețeaua privată Regina Maria. Consultă harta pentru a vedea unde sunt localizate clinicile private din cartier și din împrejurimi.
Găsești o serie de restaurante și baruri în zona Parcului Verdi și pe malul Lacului Tei. De altfel, există și mai multe săli de evenimente cu ieșire la lac sau situate în imediata sa vecinătate. Din zona Tei ajungi foarte rapid și la numeroasele terase, cafenele și restaurante aflate pe Calea Floreasca sau în Dorobanți. Restaurante de tip fast food găsești în zona Obor din apropiere. Ai câteva opțiuni pentru o gustare și în incinta Veranda Mall. Iar dacă îți dorești mai multă diversitate, poți oricând să mergi cu mașina până la Promenada Mall. Ajungi în doar câteva minute. Consultă harta. Află care este cel mai apropiat local de viitoarea ta locuință din zona Tei.
Găsești mai multe sucursale bancare în zona intersecției Doamna Ghica, lângă intrarea în Parcul Plumbuita. Altele pe Bulevardul Lacul Tei care traversează cartierul. Consultă harta și află unde găsești cel mai apropiat bancomat.
Înainte să pleci...
Ești sigur că ai văzut și aceste proprietăți?
199.999 €
București, Ștefan cel Mare
200 mp utili
Bloc de apartamente
4E
250.000 €
București, Giulești
180 mp utili
Centru comercial
2025
178.000 €
București, Petricani
155,39 mp utili
Bloc de apartamente
160.000 €
București, Pantelimon
200 mp utili
Showroom
1965
189.000 €
București, Herăstrău
188 mp utili
Bloc de apartamente
5E
299.000 €
București, Sisești
105 mp utili
Bloc de apartamente
8E
Creează alertă
Salvează căutarea ca să primești pe email ultimele anunțuri publicate
Spații comerciale de vânzare în zona Barbu Văcărescu, Sector 2
Cere detalii prin email
*
*
*
*
Detaliile tale de contact vor fi partajate cu Aci Activ Imobiliare