1

Spatiu comercial de vanzare pe Soseaua Mihai Bravu 451-471

3.100.000 €

Vitan, București

Sup. utilă / mp. utili:
1.571 mp
Tip prop.:
Bloc de apartamente
Niv.:
9
An constr.:
2021 (Există)
  • • Locație exactă

Descriere spațiu comercial

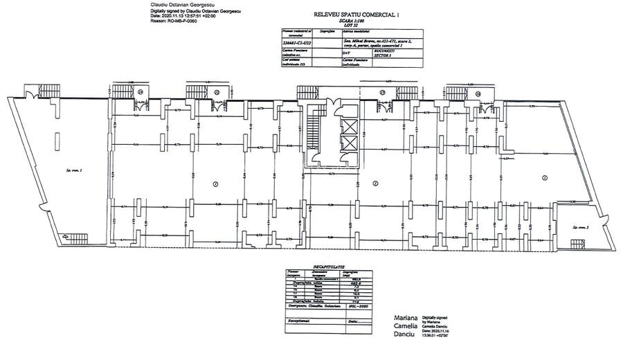
Spatiul comercial propus spre vanzare este situat pe Soseaua Mihai Bravu 451-471, la parterul unui bloc construit in anul 2021. Acesta are o suprafata de 1.571 m2 utili (1.806 m2 construiti) si este disponibil la vanzare la pretul de 3.100.000 euro taxare inversa (include 30 de locuri de parcare in proprietate). Spatiul comercial se afla langa supermarketul Profi, vis-a-vis de metrou Mihai Bravu, in fata trecerii de pietoni dintre cele 2 statii de tramvai. Pe langa aceste beneficii, spatiul mai are ca si vecinatati cafenea, benzinarie, diverse firme pe domeniul tehnic, magazine de bricolaj etc. Datorita faptului ca imobilul se afla pe una din principalele artere de circulatie ale Capitalei, proprietatea beneficiaza de trafic auto si pietonal intens. Transportul public este reprezentat de numeroase statii de tramvai si autobuz, dar si de statia de metrou Mihai Bravu, amplasata vis-a-vis de cladire. In acest spatiu s-au facut numeroase investitii de catre fostul chirias precum climatizarea HVAC, pardoseala
Citește mai mult Citește mai puțin

Detalii spațiu comercial

ID anunț: X5F8041FN Copiat! 245766060 Copiat!
Actualizat în: 16 Aprilie 2025
Nume proprietate: Soseaua Mihai Bravu 451-471
Regim înălțime: 1S+P+9E
Stadiu construcție: Există
Vitrină: Da

Puncte de interes

Mijloace transport
bus-station
RATB: Penes Curcanul: Autobuz 124
Stații autobuz aprox. 14 m
tram-station
Penes Curcanul
Stații tramvai aprox. 51 m
metro-station
Metrorex. Stația Mihai Bravu (M1) , (M3).
Stații metrou aprox. 125 m
bus-station
Mihai Bravu
Stații autobuz aprox. 272 m
Școală
school
Scoala Generala nr. 84
Școli aprox. 476 m
school
Scoala Generala nr.84 "Nicolae Balcescu"
Școli aprox. 481 m
kindergarten
Gradinita de copii nr.161
Gradinițe aprox. 546 m
university
Universitatea Titu Maiorescu - Rectorat
Universități aprox. 1013 m
Recreere
sports-ground
Teren sportiv
Terenuri sport aprox. 372 m
park
Parculet pentru copii
Parcuri aprox. 376 m
supermarket
Mega Image Dambovita Non-Stop
Supermarket aprox. 383 m
mall
Bucharest, Calea Vitan nr. 8, Bl V51, near VITAN Mall
Mall aprox. 1145 m

Proprietăți recomandate

Detalii de contact

Activ Property Services

Valentin Manu Agent Imobiliar

Activ Property Services
PRO

Abonează-te la newsletter să fii primul care primește cele mai noi recomandări de proprietăți și sfaturi de la experți.

CONTACT

Creează alertă

Salvează căutarea ca să primești pe email ultimele anunțuri publicate

Spații comerciale de vânzare în zona Vitan, Sector 3