1

Spatiu comercial 223 mp, vitrina 13 ml, acces dublu, Bd. Metalurgiei

700.000 € + TVA

Berceni, București

Sup. utilă / mp. utili:
223,27 mp
Tip prop.:
Bloc de apartamente
Niv.:
11
An constr.:
2025 (Există)
  • • Locație exactă

Descriere spațiu comercial

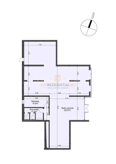
Spatiu comercial 223.27 mp, vitrina 13 m, acces dublu si 5 locuri de parcare – parter Vienna Parkside Residence, Sectorul 4, Bucuresti Spatiul propus spre vanzare este situat la parterul unui imobil nou, parte din ansamblul Vienna Parkside Residence – componenta a Fazei II a dezvoltarii Metalurgiei Park Residence, zona Bd. Metalurgiei – Parcul Tudor Arghezi, Sector 4. - Suprafata totala utila: 223.27 mp - Structura open-space cu inaltime libera 4.00 m, compatibila cu o varietate de solutii de compartimentare interioara - Vitrina cu expunere dubla, insumand aproximativ 13 metri liniari – catre zona de promenada si catre drumul secundar de acces - Acces principal dedicat clientilor, pozitionat frontal, si acces secundar pozitionat lateral, destinat operatiunilor logistice (aprovizionare, acces angajati) - Spatiu prevazut cu:  - grup sanitar propriu (11.33 mp), conform normativelor pentru spatii comerciale cu acces public  - zona de depozitare separata (14.23 mp), cu acces direct din spatiul principal - Instalatii trase pe pozitii, bransamente finalizate pentru toate utilitatile: apa, canalizare, curent electric trifazic, gaze naturale - Predare la stadiul de gri, oferind flexibilitate maxima pentru personalizarea finisajelor in functie de cerintele domeniului de activitate - 5 locuri de parcare alocate (contracost), cu posibilitatea de suplimentare Ansamblul rezidential are un total de 620 unitati locative, toate conectate la zona pietonala si spatiile comerciale de la parter. Constructia este realizata pe structura din beton armat, cu inchideri exterioare termoizolate, compartimentari interioare din BCA, tamplarie cu geam tripan si spatii vitrate extinse la nivelul partii comerciale. Alimentarea cu energie electrica este trifazica, iar evacuarea apelor uzate este conectata la sistemul centralizat. Imobilul este pre-certificat GREEN HOMES, fiind primul proiect din Metalurgiei Park Residence care implementeaza criterii reale de sustenabilitate si eficienta energetica:  - consum redus de resurse  - confort termic si acustic superior  - infrastructura tehnica optimizata pentru consumuri controlate Spatiul este situat central, la parterul ansamblului Vienna Parkside Residence, cu expunere directa si vizibilitate excelenta din Bd. Metalurgiei – una dintre cele mai circulate artere din sudul Bucurestiului. Pozitia in axul central al fatadei comerciale asigura acces facil pentru clienti si personal, fiind ideala pentru branding vizibil. Proiectul face parte din Metalurgiei Park Residence – Faza II, cel mai mare ansamblu rezidential din zona. Avantaje locatie: - Parcul Tudor Arghezi la limita proprietatii - Acces rapid la retele comerciale: Lidl, Kaufland, Auchan, Metro, Carrefour, Selgros - Infrastructura moderna: drumuri asfaltate, iluminat, trotuare, zone verzi si alei pietonale largi - Statii STB in apropiere, legaturi directe catre metrou Constantin Brancoveanu si Aparatorii Patriei - Conexiuni rapide catre centrul orasului, soseaua de centura si iesirile din Bucuresti In pretul afisat nu este inclusa cota de TVA.
Citește mai mult Citește mai puțin
5 Parcări

Detalii spațiu comercial

ID anunț: X53U1403M Copiat! 266987216 Copiat!
Actualizat în: 02 Martie 2026
Suprafață utilă: 223.27 mp
Înălțime spațiu (m): 4
Regim înălțime: 1S+P+11E
Stadiu construcție: Există
Vitrină: Da

Utilități

Destinație
Birouri Comercial Rezidențial
Utilități
Curent Apă Canalizare Gaze
Comision
standard

Disponibilitate proprietate:

Imediat

Puncte de interes

Mijloace transport
bus-station
Statia Metro Berceni linii : 125, 141, 220, 232, 312
Stații autobuz aprox. 180 m
bus-station
Statia Metro Berceni, linia 125, 141, 220, 232, 312
Stații autobuz aprox. 366 m
metro-station
Statia Dimitrie Leonida (I.M.G.B) statie metrou M2
Stații metrou aprox. 1436 m
metro-station
Dimitrie Leonida (M2)
Stații metrou aprox. 1512 m
Școală
school
Colegiul Tehnic Miron Nicolescu
Școli aprox. 1222 m
kindergarten
Gradinita nr. 149
Gradinițe aprox. 1444 m
university
Universitatea Spiru Haret
Universități aprox. 1599 m
school
ȘCOALA CU CLASELE I-VIII NR. 130
Școli aprox. 1636 m
Recreere
park
Sere
Parcuri aprox. 318 m
hypermarket
Metro Berceni
Hipermarket aprox. 471 m
supermarket
Metro Berceni
Supermarket aprox. 471 m
sports-ground
Sala de sport
Terenuri sport aprox. 1753 m

Proprietăți recomandate

Detalii de contact

SUD REZIDENTIAL

Catalin Isache Manager proiect

SUD REZIDENTIAL
PRO

Abonează-te la newsletter să fii primul care primește cele mai noi recomandări de proprietăți și sfaturi de la experți.

CONTACT

Creează alertă

Salvează căutarea ca să primești pe email ultimele anunțuri publicate

Spații comerciale de vânzare în zona Berceni, Sector 4