Vand spatiu comercial Drumul Taberei nr. 92

250.000 €

Drumul Taberei, București

Sup. utilă / mp. utili:
54 mp
Tip prop.:
Bloc de apartamente
  • • Comision 0%
  • • Locație exactă

Descriere spațiu comercial

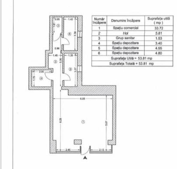
Vand spatiu comercial cu o suprafata de 54 mp situat in Drumul Taberei nr. 92 . Zona circulata intens , vad comercial. Spatiul este complet renovat , momentan este inchiriat
Citește mai mult Citește mai puțin

Detalii spațiu comercial

ID anunț: XV100415G Copiat! 275260191 Copiat!
Actualizat în: 12 Martie 2026
Suprafață utilă: 54 mp

Utilități

Comision
0%

Puncte de interes

Mijloace transport
bus-station
Aleea Vlasiei
Stații autobuz aprox. 295 m
metro-station
Râul Doamnei (M5)
Stații metrou aprox. 304 m
tram-station
Tricodava
Stații tramvai aprox. 817 m
trolleybus-station
Depoul de troleibuze Bujoreni
Stații troleibuz aprox. 1333 m
Școală
kindergarten
Grădinița 209
Gradinițe aprox. 75 m
kindergarten
Gradinita nr. 209 cu program prelungit
Gradinițe aprox. 75 m
school
Curtea gradinitei nr. 209
Școli aprox. 79 m
school
Colegiul National "Elena Cuza"
Școli aprox. 143 m
Recreere
park
Parcul Targu Neamt
Parcuri aprox. 177 m
sports-ground
Teren sportiv
Terenuri sport aprox. 252 m
restaurant
Azurro
Restaurant aprox. 322 m
supermarket
Mega Image
Supermarket aprox. 333 m

Proprietăți similare

Spațiu comercial, 147.31 mp în Drumul Taberei
230.000 €
București, Drumul Taberei
147,31 mp utili
Bloc de apartamente
5E
Spațiu comercial, de 111 mp, în Drumul Taberei
275.000 €
București, Drumul Taberei
111 mp utili
Centru comercial
5E
Spațiu comercial, 13 mp în Drumul Taberei
244.500 €
București, Drumul Taberei
13 mp utili
Spațiu stradal
1975

Detalii de contact

mihaela.baban

Mihaela Baban

Abonează-te la newsletter să fii primul care primește cele mai noi recomandări de proprietăți și sfaturi de la experți.

CONTACT

Creează alertă

Salvează căutarea ca să primești pe email ultimele anunțuri publicate

Spații comerciale de vânzare în zona Drumul Taberei, Sector 6