Spatiu Coemrcial/Cabinet Stomatologic de Vanzare, Zona 7 Noiembrie

420.000 €

7 Noiembrie, Târgu Mureș

Sup. utilă / mp. utili:
133 mp
Tip prop.:
Bloc de apartamente
An constr.:
2014 (Există)
  • • Locație aproximativă

Descriere spațiu comercial

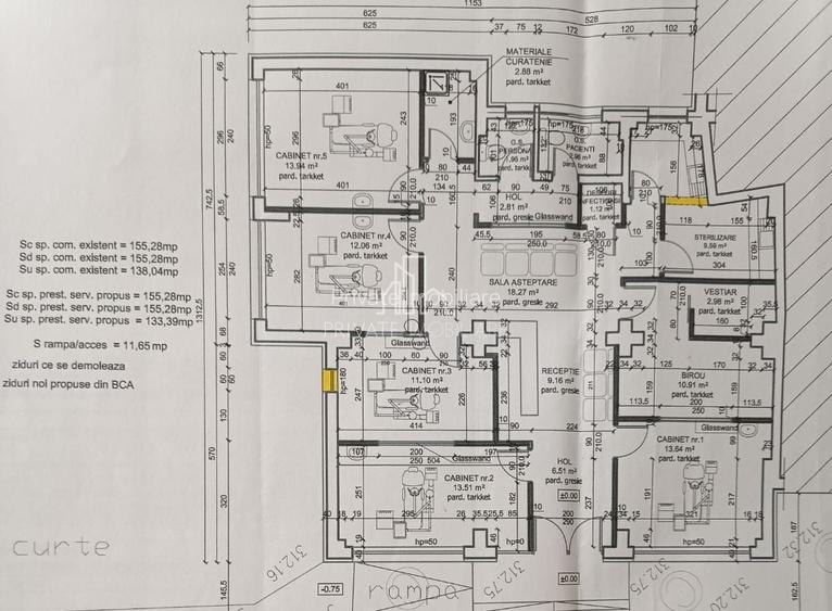
Va oferim spre vanzare un spatiu comercial, momentan functioneaza un cabinet stomatologic, recent amenajat( in anul 2021), toate dotarile si toata aparatura fiind de ultima generatie. Acesta are o suprafata utila de 133 Mp si desfasurata de 155 Mp, este situat la parterul unui bloc nou construit. Cabinetul este amenajat si dotata cu 3 scaune de stomatologie, 1 scaun (made in Germany) maca Sirona estetica faciala, birou, receptie, vestiar, sala de asteptare, toalete, etc. Cei interesati pot achizitiona doar spatiul gol la pretul de 420 000 euro. Cei interesati pot achizitiona spatiul si cu toate dotarile cabinetului stomatologic la pretul de 550 000 Euro. Se poate si inchiria cabinetul stomatologic la pretul de 12 euro/mp. Pentru clienții cumpărători, comisionul este 0%. Compania Private Imobiliare a ales cei mai buni și experimentați parteneri în realizarea tranzacțiilor: notar, avocat, evaluator imobiliar, eliberator Certificate Energetice, consultant credite imobiliare, astfel încât o dată cu cea mai bună alegere imobiliară vei primi la pachet și cele mai bune servicii necesare în tot acest proces. Dându-ne tot interesul în a fi de ajutor maxim clienților noștri... ne ajută să obținem rezultate mai bune și, ulterior, să ne bucurăm de recomandările clienților. Crezi că această proprietate nu corespunde în totalitate nevoilor tale? Dacă dorești să găsești PROPRIETATEA PERFECTĂ pentru tine și nu ai prea mult timp la dispoziție, CERE AJUTORUL AGENTULUI. Acesta iți va oferi alte SOLUȚII AVANTAJOASE. CONTACTEAZĂ-NE ACUM, nu am dat greș cu nici un client!
Citește mai mult Citește mai puțin

Detalii spațiu comercial

ID anunț: X6R0140B3 Copiat! 274266246 Copiat!
Actualizat în: 19 Ianuarie 2026
Suprafață utilă: 133 mp
Regim înălțime: P
Stadiu construcție: Există
Vitrină: Da

Utilități

Utilități
Curent Apă Canalizare Gaze

Disponibilitate proprietate:

Imediat

Puncte de interes

Mijloace transport
bus-station
Darina
Stații autobuz aprox. 264 m
bus-station
Aleea Carpati
Stații autobuz aprox. 306 m
bus-station
Gara Targu Mures Nord
Stații autobuz aprox. 311 m
bus-station
Gara Mica
Stații autobuz aprox. 434 m
Școală
school
Liceul cu Program Sportiv Szasz Adalbert
Școli aprox. 165 m
kindergarten
Gradinita nr. 6
Gradinițe aprox. 256 m
university
Universitatea Babes Bolyai
Universități aprox. 468 m
school
Gimnaziul Friedrich Schiller
Școli aprox. 483 m
Recreere
restaurant
Pizza Sole
Restaurant aprox. 128 m
park
Piata Marasesti
Parcuri aprox. 232 m
supermarket
Lidl
Supermarket aprox. 256 m
sports-ground
Teren sportiv
Terenuri sport aprox. 336 m

Proprietăți similare

Spațiu industrial, 900 mp în Libertății
390.000 €
Târgu Mureș, Libertății
900 mp utili
Producție/Servicii
Spațiu comercial, de 203 mp, în Tudor
385.000 €
Târgu Mureș, Tudor
203 mp utili
Clădire de birouri
1950
Spațiu comercial, 700 mp în Libertății
430.000 €
Târgu Mureș, Libertății
700 mp utili
Spațiu stradal
2E

Detalii de contact

Private Imobiliare

Ovidiu Husar Consultant Imobiliar

Private Imobiliare

Abonează-te la newsletter să fii primul care primește cele mai noi recomandări de proprietăți și sfaturi de la experți.

CONTACT

Creează alertă

Salvează căutarea ca să primești pe email ultimele anunțuri publicate

Spații comerciale cu 4+ camere de vânzare în zona 7 Noiembrie, Târgu Mureș