Am placerea sa va ofer spre vanzare acest spatiu comercial situat central, in Calea Plevnei nr 11-13, in apropiere de parcul Cismigiu si Izvor, Piata Kogalniceanu, cu trafic pietonal intens si acces la mijloace de transport in comun.
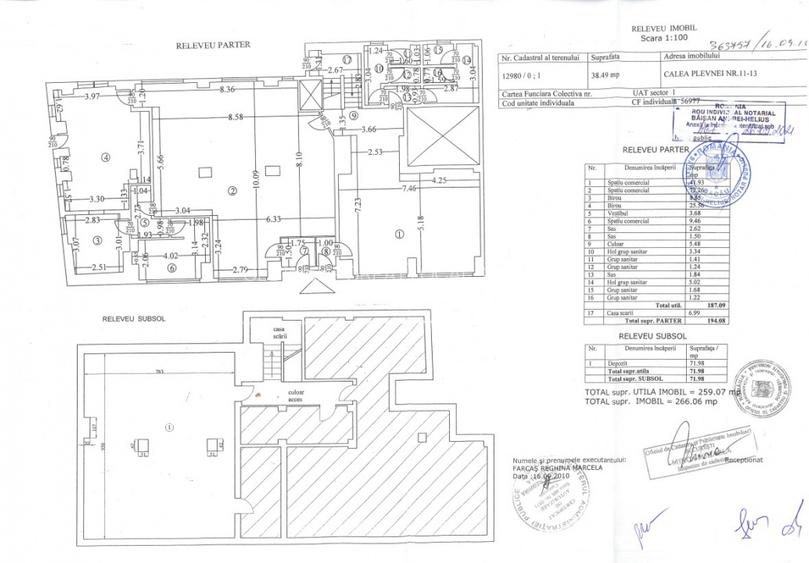
Spatiul este situat la Parter si Subsol de bloc (fara clasa de risc seismic sau urgente), cu 3 cai de acces (1 stradala si 3 laterale), are o suprafata utila de 266 mp din care 194 mp (Parter) si 72 mp (Subsol), parterul comunica cu subsolul printr-o scara interioara insa au si acces separat, o vitrina generoasa de 14 mp si tubulatura hota scoasa pe bloc.
Spatiul este functional, bransat la toate utilitatile (inclusiv 380V) si contorizat separat. Are de asemnea centrala proprie pe gaz.
Spatiul este inchiriat in acest moment si se solicita pastrarea contractului de inchiriere care are valabilitate pana in Noiembrie 2027 cu posibilitate de prelungire.
Este ideal pentru investitie !
*Informațiile și specificațiile prezentate sunt sau pot fi cu titlu informativ și nu reprezintă o obligație contractuală. Acestea pot fi modificate fără notificare prealabilă. Recomandăm verificarea tuturor detaliilor înainte de încheierea unei tranzacții.
Pentru mai multe detalii nu ezitati sa ma contactati.
Sediul central - Timișoara
Bulevardul Victor Babeș nr. 2, 300230, Timișoara, România
Tel: +40.374.40.44.98 / Fax: +40.256.401.179
Email: suport@imobiliare.ro
Luni - Vineri 08:00 - 20:00
Punct de lucru - București: Iride Business Park, Bld. Dimitrie
Pompeiu 9-9A, Clădirea B2B,
020335, Sector 2, București, România
CONTACT
Sediul central - Timișoara
Bulevardul Victor Babeș nr. 2, 300230, Timișoara, România
Tel: +40.374.40.44.98 / Fax: +40.256.401.179
Email: suport@imobiliare.ro
Luni - Vineri 08:00 - 20:00
Punct de lucru - București: Iride Business Park, Bld. Dimitrie
Pompeiu 9-9A, Clădirea B2B,
020335, Sector 2, București, România
Vechea "Gara a Targovistei" astazi parte din Gara de Nord
aprox.
1586 m
Gara Bucuresti Nord
aprox.
1762 m
Facultatea de Medicina Dentara
aprox.
125 m
Clinica de Protetica si Ocluzologie si Clinica de Pedodontie
aprox.
136 m
Facultatea de Sociologie și Asistență Socială
aprox.
216 m
Facultatea de Sociologie si Asistenta Sociala
aprox.
222 m
Universitatea din Bucuresti
aprox.
260 m
Rectoratul Universitatii din București și sediul Facultății de Drept
aprox.
343 m
Rectoratul Univ. Bucuresti
aprox.
343 m
UTCB - Facultatea de Utilaj Tehnologic pentru Constructii
aprox.
381 m
Facultatea de Utilaj Tehnologic (UTCB)
aprox.
423 m
Camin C
aprox.
457 m
Camin A
aprox.
462 m
Facultatea de Medicina Veterinara
aprox.
481 m
Camin B
aprox.
486 m
Universitatea Nationala de Muzica Conservator
aprox.
596 m
Universitatea Nationala de Muzica Bucuresti
aprox.
596 m
Gradinita nr. 73
aprox.
129 m
Gradinita Nr. 78 Miguel de Cervantes
aprox.
187 m
Gradinita nr. 248
aprox.
197 m
Gradinita MAPN
aprox.
492 m
Gradinita Smiley
aprox.
833 m
Gradinita Olga Gudynn
aprox.
848 m
Gradinita MAPN nr.1
aprox.
1331 m
Gradinita nr. 116
aprox.
1348 m
Gradinita nr. 268
aprox.
1350 m
Gradinita nr. 271
aprox.
1363 m
Gradinita Prikindel
aprox.
1368 m
Gradinita nr.192, "Pisicile Aristocrate"
aprox.
1376 m
Gradinita nr. 192 (Pisicile aristocrate)
aprox.
1380 m
Gradinita de copii nr. 285
aprox.
1452 m
Gradinita nr. 203 program prelungit
aprox.
1471 m
Liceul Cervantes
aprox.
294 m
Credis - Academia CISCO Credis (en)
aprox.
457 m
Scoala de Muzica Nr.3
aprox.
668 m
Institutul Cervantes
aprox.
682 m
Scoala Nr. 118 Vasile Alecsandri
aprox.
693 m
Liceul "Nicolae Tonitza"
aprox.
699 m
Colegiul National Sfantul Sava
aprox.
766 m
Scoala speciala nr. 10
aprox.
811 m
Scoala special nr. 10
aprox.
895 m
ȘCOALA CU CLASELE I-VIII NR. 150
aprox.
954 m
Fostul Liceu de Arte Plastice Nicolae Tonitza - Sediul
aprox.
957 m
Scoala Generala Nr. 5 Corneliu M. Popescu
aprox.
1088 m
Ateneul roman, Bucuresti
aprox.
1126 m
Liceul Bulgar Hristo Botev
aprox.
1202 m
Clubul Sportiv Scolar nr.5
aprox.
1274 m
Mega Image Elisabeta Non-Stop
aprox.
247 m
Mega Image Brezoianu
aprox.
653 m
Mag.Victoria
aprox.
874 m
Mega Image
aprox.
1044 m
Economat
aprox.
1191 m
Mega Image Amzei Non-Stop
aprox.
1193 m
Mega Image
aprox.
1201 m
Carrefour Express
aprox.
1201 m
Mega Image
aprox.
1232 m
Pravalia Maestrului
aprox.
1239 m
Nik Non-Stop
aprox.
1258 m
Mega Image Rosetti Non-Stop
aprox.
1277 m
Mega Image Magheru
aprox.
1290 m
ilanplant
aprox.
1292 m
dm
aprox.
1357 m
Parcare
aprox.
347 m
Parcare
aprox.
538 m
Parcare
aprox.
602 m
Parcare cu plata
aprox.
609 m
Parcare
aprox.
640 m
Parcare
aprox.
641 m
Parcare
aprox.
660 m
Parcare
aprox.
687 m
Parcare
aprox.
696 m
Parcare
aprox.
698 m
Parcare
aprox.
719 m
Parcare privata
aprox.
725 m
Parcare
aprox.
735 m
Parcare
aprox.
744 m
Parcare
aprox.
744 m
Loc de joaca
aprox.
11 m
Parc
aprox.
174 m
Parcul Tosca
aprox.
231 m
Parculet
aprox.
253 m
Parc
aprox.
253 m
Miniparc
aprox.
343 m
Parc
aprox.
364 m
Parcul Izvor
aprox.
368 m
Parcul Izvor
aprox.
368 m
Parcul Cismigiu
aprox.
394 m
Parcul Cismigiu
aprox.
400 m
Loc de Joaca
aprox.
460 m
Parc de joaca
aprox.
482 m
Parc
aprox.
487 m
Parc
aprox.
536 m
Baza sportiva Universitatea Bucuresti
aprox.
278 m
Teren sportiv
aprox.
286 m
teren tenis
aprox.
339 m
Teren sportiv
aprox.
452 m
Teren sportiv
aprox.
518 m
Teren sportiv
aprox.
783 m
Teren sportiv
aprox.
802 m
Teren sportiv
aprox.
815 m
Teren sportiv
aprox.
827 m
Teren sportiv
aprox.
828 m
Teren sportiv
aprox.
842 m
Teren sportiv
aprox.
861 m
Teren sportiv
aprox.
897 m
Teren sportiv
aprox.
906 m
Teren sportiv
aprox.
908 m
Piata Emil Cioran (Vergilius) (en)
aprox.
753 m
Piața Drapelului (Tricolorului)
aprox.
904 m
Piața Constituției
aprox.
950 m
Piata Natiunilor Unite
aprox.
969 m
Piata Revolutiei
aprox.
998 m
Piata Arsenalului
aprox.
1272 m
Piata Universitatii
aprox.
1290 m
Piata Roma
aprox.
1383 m
Piața Sfântul Anton
aprox.
1405 m
Piata Timpului
aprox.
1484 m
Piața Regina Maria
aprox.
1532 m
Piața Eroilor
aprox.
1540 m
Piata Bibescu
aprox.
1560 m
Piața Romană
aprox.
1565 m
Piata Rosetti
aprox.
1601 m
Spitalul Clinic de Chirurgie Oro-Maxilo-Faciala
aprox.
105 m
Institutul Victor Babes
aprox.
383 m
Clinica ORL Dr. Mocanu
aprox.
568 m
Regina Maria - clinica pentru copii
aprox.
639 m
Policlinica Ministerului de Interne
aprox.
706 m
Institutul National de Recuperare
aprox.
1060 m
Spitalul Clinic Prof. Dr. Doc Ovidiu Marina
aprox.
1063 m
Policlinica Cotroceni
aprox.
1077 m
Spitalul Carol Davila de urologie
aprox.
1090 m
Spitalul Clinic de Nefrologie Dr. Carol Davila
aprox.
1090 m
Medsana Cotroceni
aprox.
1105 m
Clinica Medsana
aprox.
1115 m
Spitalul clinic de nefrologie "Dr. Carol Davila"
aprox.
1131 m
Ambulatoriu SUUB
aprox.
1145 m
Heliport Emergency University Hospital of Bucharest
aprox.
1169 m
Farmaciile 2NA
aprox.
204 m
Plafar
aprox.
252 m
Urgent Farm
aprox.
258 m
Farmacia Sfanta Ecaterina
aprox.
274 m
Farmacia Reteta
aprox.
635 m
Sibpharmed
aprox.
674 m
Farmaplus
aprox.
680 m
BellaDonna
aprox.
684 m
SensiBlu
aprox.
699 m
Farmacia Help Net
aprox.
743 m
Catena
aprox.
747 m
Sensiblu
aprox.
763 m
Sensiblu
aprox.
930 m
Farmnicol
aprox.
931 m
Farmacia Dona 6
aprox.
952 m
Restaurant Excalibur - Locul Cavalerilor
aprox.
81 m
Shaorma
aprox.
127 m
KEBAB MANIA
aprox.
155 m
Hotel Epoque *****
aprox.
204 m
Fast Food La izvor
aprox.
245 m
Hotel *** TRIANON
aprox.
260 m
Bistro de la Joie
aprox.
273 m
Shaorma
aprox.
282 m
Fast food
aprox.
304 m
Caffe & Latte (restaurant,bar,cafe)
aprox.
364 m
Classic
aprox.
368 m
Restaurant Monte Carlo (en)
aprox.
400 m
Restaurant Monte Carlo
aprox.
400 m
Restaurant CAREDY
aprox.
414 m
Tulin
aprox.
479 m
Letters Bar
aprox.
189 m
Stuf Vama Veche
aprox.
589 m
LondonPhone
aprox.
634 m
Gambrinus
aprox.
666 m
Energiea
aprox.
700 m
Marvin bar&more
aprox.
765 m
Interbelic Victoria
aprox.
836 m
Control Club
aprox.
843 m
Opium Stage Club
aprox.
955 m
Beer o'clock
aprox.
970 m
Caffe No. 35
aprox.
1005 m
Yellow Bar
aprox.
1017 m
A1
aprox.
1082 m
La Comedie
aprox.
1100 m
Laboratorul de Cocktailuri
aprox.
1121 m
Kafeterya Cafe
aprox.
288 m
Dolce Baccio
aprox.
321 m
Dante Cafe
aprox.
357 m
Caffeine & Latte
aprox.
379 m
Bouche Bee
aprox.
567 m
Roland 1811 cafe
aprox.
697 m
Origo
aprox.
734 m
Nana
aprox.
879 m
Vol Cafe
aprox.
952 m
Aida Caffe
aprox.
957 m
INDIEpendent
aprox.
965 m
Blues Cafe
aprox.
978 m
Nirvana
aprox.
980 m
Valea Regilor
aprox.
988 m
Demmers Teahouse
aprox.
1026 m
James Joyce's Pub & Restaurant
aprox.
604 m
Club Expirat and Other Side
aprox.
692 m
Nexus Gamers Pub
aprox.
707 m
Question Mark Social Club
aprox.
966 m
D`eight Pub
aprox.
977 m
Edgar`s Pub
aprox.
1026 m
Coloseum
aprox.
1029 m
Charlatans Irish Pub
aprox.
1039 m
Oktoberfest 3
aprox.
1113 m
Charme
aprox.
1117 m
Old City
aprox.
1125 m
Explorer's Irish Pub
aprox.
1132 m
Beraria Smardan
aprox.
1132 m
Vault
aprox.
1134 m
Queen and Clown Pub
aprox.
1142 m
Bancomat BRD
aprox.
105 m
BRD Piata Mihail Kogalniceanu
aprox.
141 m
BRD AGENTIA PIATA MIHAIL KOGALNICEANU
aprox.
149 m
Piraeus Bank Romania - Agentia Kogalniceanu
aprox.
159 m
Bank Piraeus
aprox.
161 m
Banca Pireusbank
aprox.
161 m
Alpha Bank
aprox.
216 m
Emporki Bank
aprox.
453 m
CEC Bank
aprox.
560 m
BCR Izvor
aprox.
598 m
Alpha Bank
aprox.
601 m
ING Opera
aprox.
611 m
Banc Post
aprox.
612 m
Banca Carpatica
aprox.
640 m
Banca Carpatica
aprox.
640 m
Dacă te vei muta aici, vei avea la dispoziție mai multe stații de metrou, în funcție de poziționarea noii tale locuințe. De la intersecția dintre Șoseaua Grozăvești și Splaiul Independenței vei putea lua metroul din stația Grozăvești. Aflată pe Magistrala 1, aceasta oferă o conexiune rapidă cu Piața Victoriei, de unde poți continua călătoria pe Magistrala 2 și poți ajunge chiar și în 10 minute în zona Pipera. Vis-a-vis de Parcul Venus găsești stația de metrou Eroilor. De aici poți merge, evitând aglomerația din trafic, atât în cartierul Militari, cât și Drumul Taberei și în zona 1 Decembrie 1918 din sud - estul orașului. Alte stații de metrou la care ai putea ajunge destul de rapid sunt Basarab și Gara de Nord. Această zonă a orașului este traversată și de rutele mai multor mijloace de transport în comun de suprafață. Amintim astfel autobuzul 123 cu care poți ajunge în cartierul Vitan și tramvaiul 24 pe care îl poți lua de pe Calea Plevnei dacă vrei să mergi în cartierul Dămăroaia. Consultă harta și află unde sunt poziționate stațiile mijloacelor de transport în comun.
În această zonă a Capitalei se află sediile mai multor instituții de învățământ superior. Pe Splaiul Independenței, de exemplu, găsim Universitatea Națională de Educație Fizică și Sport, iar chiar lângă Opera Națională București este amplasată Facultatea de Drept. În vecinătate găsim campusul Universității Politehnice București, Facultatea de Medicină Veterinară și Universitatea de Medicină și Farmacie "Carol Davila". Vezi ce alte unități de învățământ ai în apropierea viitoarei tale locuințe. Consultă harta.
Dacă te vei muta în zona Plevnei îți vei face, cel mai probabil, cumpărăturile la Centrul Comercial Orhideea sau la hipermarketul Kaufland de lângă Pasajul Basarab. Există însă și alte variante disponibile în vecinătate, precum centrul comercial IDM Basarab și Piața Matache. Pentru mai multă diversitate vei avea, de asemenea, în apropiere mall-ul AFI Palace Cotroceni. Cu mașina poți să ajungi în doar câteva minute în Piața Unirii unde ai la dispoziție centrul comercial Unirea Shopping Center și un hipermarket Carrefour. Verifică harta și află ce alte magazine ai la dispoziție în apropierea casei.
O parcare publică poate fi găsită în intersecția din fața Operei Naționale București. Alte opțiuni găsești pe hartă.
Dacă te vei muta în zona Plevnei, vei avea la dispoziție numeroase opțiuni de petrecere a timpului liber. Îți plac plimbările prin parc? Cel mai apropiat astfel de spațiu verde este Parcul Venus, cunoscut și ca Parcul Operei. Vis-a vis găsești Parcul Eroilor, iar la câteva minute de mers pe jos, Grădina Botanică București. Alte opțiuni din vecinătatea zonei Plevnei sunt și parcurile Grozăvești, Cișmigiu sau Izvor. Baruri și terase vei găsi în zona Complexului Studențesc Grozăvești, dar și în Regie, unde ajungi foarte ușor pe jos. În spatele Parcului Venus vei descoperi un club. În plus, poți să ajungi destul de rapid și în Centrul Vechi al orașului. Restaurante și ceainării cochete pot fi găsite în cartierul Cotroceni. Vrei să mergi la cinema? Nimic mai simplu. În vecinătatea zonei Plevnei se află cel mai mare mall din România, AFI Palace Cotroceni. O seară petrecută la un spectacol pus în scenă de Opera Națională București și o vizită la Muzeul Militar sau chiar și la Muzeul CFR aflat în apropiere pot fi alte idei potrivite pentru petrecerea timpului liber. Vezi pe hartă ce alte puncte de interes ai la dispoziție în zona Plevnei și în împrejurimi.
Principalele unități medicale din zona Plevnei sunt Spitalul CF Witting și Spitalul Militar București. Foarte aproape se află și Spitalul Universitar de Urgență București. Vezi pe hartă unde sunt localizate clinicile private.
Din zona Plevnei ajungi imediat la cochetele restaurante și ceainării din cartierul Cotroceni. În doar câteva minute te poți plimba și pe Calea Victoriei în căutarea terasei perfecte sau, de ce nu, în Centrul Vechi. Alte câteva restaurante pot fi găsite în cadrul centrului comercial Unirea Shopping Center. Dacă ai poftă de fast food, poți încerca restaurantele din Centrul Comercial Orhideea sau pe cele din food court-ul mall-ului AFI Cotroceni din apropiere. Tot aici găsești și câteva cafenele unde îți poți savura cafeaua în aer liber. Verifică pe hartă unde găsești cel mai potrivit local în apropierea casei tale.
Câteva sucursale bancare pot fi găsite în Piața Operei, altele pe Calea Plevnei și în cadrul Centrului Comercial Orhideea. Aruncă o privire pe hartă și vezi care ar fi cel mai apropiat de viitoarea ta locuință.
Înainte să pleci...
Ești sigur că ai văzut și aceste proprietăți?
650.000 €
București, Dacia
400 mp utili
Casă/Vilă
1E
550.000 €
București, Știrbei Vodă
174,04 mp utili
Bloc de apartamente
275.000 €
București, P-ța Operei
500 mp utili
Spațiu stradal
567.000 €
București, Dacia
250 mp utili
Spațiu stradal
1E
950.000 €
București, Rosetti
236 mp utili
Casă/Vilă
1E
330.000 €
București, Gara de Nord
300 mp utili
Bloc de apartamente
10E
Creează alertă
Salvează căutarea ca să primești pe email ultimele anunțuri publicate
Spații comerciale cu 3 camere de vânzare în zona Calea Plevnei, Ultracentral
Cere detalii prin email
*
*
*
*
Detaliile tale de contact vor fi partajate cu Gls Imob - Great Local Services