4

spatiu multifunctional,comercial,productie,birouri

1.600.000 €

Voluntari, Județul Ilfov

Sup. utilă / mp. utili:
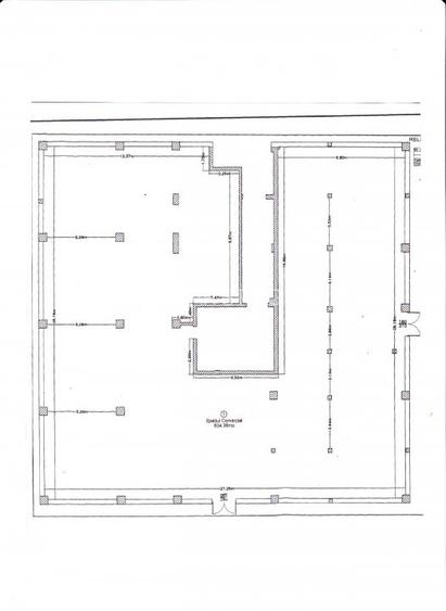
630 mp
Tip prop.:
Spațiu stradal
  • • Locație exactă

Descriere spațiu comercial

Pipera,emil racovita,prezentam spatiu comercial pretabil pentru activitati multiple:comercial,showroom,birouri,depozitare,productie s.a;Spatiul este la parter de bloc,accesul in spatiul comercial se face pe trepte,exista posibilitate si deschidere pentru rampa marfuri,exista rampa pentru persoane cu dizabilitati,are 2 grupuri sanitare,este amenajat asa cum se vede in prezentare. Spatiul este bransat si contorizat individual la curent,gaze,net,tv,apa si canal. Spatiul are o inaltime de 3,5metrii,suprafta mare vitrata, pe toate laturile,30 m liniari,are si aer conditionat,dar si ventilatie naturala. Arata exact ca in prezentarea foto si este disponibil imediat.
Citește mai mult Citește mai puțin

Detalii spațiu comercial

ID anunț: X8JA04003 Copiat! 2569019 Copiat!
Actualizat în: 18 Iulie 2025
Nume proprietate: Pipera,spatiu multifunctional,comercial,productie,
Înălțime spațiu (m): 35
Regim înălțime: P
Vitrină: Da
Recomandare utilizare: Pentru investiție

Utilități

Comision
1%

Puncte de interes

Mijloace transport
bus-station
Pipera Drumul Bisericii
Stații autobuz aprox. 652 m
bus-station
Statia Mentiunii, linia 682
Stații autobuz aprox. 1492 m
tram-station
Statia Gelcap, linia 16, 36
Stații tramvai aprox. 1857 m
tram-station
Gelcap
Stații tramvai aprox. 1914 m
Școală
school
Gradinita Happy Univers
Școli aprox. 172 m
school
Scoala Nr.3 Voluntari
Școli aprox. 541 m
kindergarten
Echilibria 1
Gradinițe aprox. 548 m
kindergarten
Gradinita Zece
Gradinițe aprox. 1138 m
Recreere
sports-ground
Teren sportiv
Terenuri sport aprox. 536 m
restaurant
Bodega Vraja Lacului
Restaurant aprox. 636 m
park
Pipera
Parcuri aprox. 646 m
supermarket
Mega Image Pipera
Supermarket aprox. 673 m

Proprietăți recomandate

Detalii de contact

STAR STING

NEGERA PETRU BOGDAN

4.00(3 review-uri)

STAR STING

Abonează-te la newsletter să fii primul care primește cele mai noi recomandări de proprietăți și sfaturi de la experți.

CONTACT

Creează alertă

Salvează căutarea ca să primești pe email ultimele anunțuri publicate

Spații comerciale de vânzare în Voluntari, Județul Ilfov