Showroom 457mp langa Carrefour, Kaufland, magazine tehnice

3.427 € / lună
7.50 € / mp / lună

Baza 3, Iași

Sup. prop / mp. prop.:
457 mp
Tip prop.:
Producție/Servicii
Niv.:
1
  • • Locație exactă

Descriere spațiu comercial

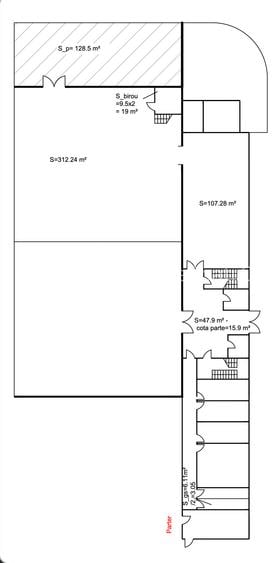
Showroom 457mp langa Carrefour, Kaufland, magazine tehnice Spatiu comercial de inchiriat pentru magazin scule, instalatii, mobila, arhitectura, auto; Spatiu cu dotari/ finisaje si dupa cerinte, situat pe coltul dintre str. Bucium si o viitoare strada; Hala/ spatiu 457,47mp, str. Bucium 34, proprietatea Arhiconstruct; 457,47mp = 312,24mp depozit + 19mp birou + 107,28mp birou/ showroom + 15,9mp cota parte hol + 3,05mp cota parte GS; Hala: 5,2mH grinda; 2,5ml*2,2mh usa; birouri: 2,4mh grinda; 2,9mh placa; Tavan: vata minerala 50mm; Acces TIR; Retea apa, canalizare, gaz, 380V, internet - retelele cu fibra RDS, Orange, Vodafone; centrala termica pe gaz; 2 cai de acces; pereti din zidarie si sandwich; Eventual in depozite se face elicopterizare si se schimba tamplaria; Orientativ: 7,5-9 Eur+TVA, oferta personalizata la cerere; Lucian Creanga - consultant imobiliar cu 400+ oferte spatii si 100.000mp+ tranzactionati - iti sunt aproape! 400+, tocmai ca sa cunosti mai bine piata, sa-ti clarifici criteriile de selectie si sa-ti optimizezi termenii tranzactiei! Comision zero pentru aceasta oferta, daca nu am mai analizat alte oferte impreuna. Esti agent imobiliar? Colaboram.
Citește mai mult Citește mai puțin
5 Parcări Electricitate Apă Gaz Acces TIR

Detalii spațiu comercial

ID anunț: XB8Q040MB Copiat! 275317556 Copiat!
Actualizat în: 19 Martie 2026
Stadiu construcție: Există
An construcție: 1980 (Există)
Structură rezistență: BCA
Regim înălțime: P+1E

Utilități

Acces
Cale rutieră
Dotări
Instalație încălzire Iluminat Ferestre/luminatoare

Vecinătăți:

Carrefour Felicia

Subspații disponibile

Showroom 457mp langa Carrefour, Kaufland, magazine tehnice

Chirie / u.m. / lună:
7.5 EUR/mp (total: 3427.5 EUR/lună)
Înălțime spațiu (m):
5.2
Suprafață disponibilă:
457
Disponibilitate spațiu:
imediat
Tip podea:
Pardoseli pe bază de rășini epoxidice

Puncte de interes

Mijloace transport
bus-station
Moldomobila
Stații autobuz aprox. 74 m
bus-station
Moldomobila
Stații autobuz aprox. 107 m
tram-station
Baza 3
Stații tramvai aprox. 424 m
train-station
Gara Iasi-Socola
Stații tren aprox. 590 m
Școală
school
Colegiul Tehnic de Electronica si Telecomunicatii Iasi
Școli aprox. 293 m
school
Grupul Scolar Anghel Saligny ( Constructii )
Școli aprox. 302 m
kindergarten
Gradinita cu program prelungit Nr. 26
Gradinițe aprox. 885 m
university
Rectoratul Universitatii Politehnice Iasi
Universități aprox. 1238 m
Recreere
park
Parc
Parcuri aprox. 143 m
supermarket
Media Galaxy (Carrefour (Felicia))
Supermarket aprox. 469 m
sports-ground
Teren sportiv
Terenuri sport aprox. 469 m
mall
Iulius Mall
Mall aprox. 1238 m

Proprietăți similare

Spațiu comercial, 457 mp în Baza 3
3.427 € / lună
Iași, Baza 3
457 mp utili
Showroom
1E
Spațiu comercial, de 330 mp, în Nicolina
3.300 € / lună
Iași, Nicolina
330 mp utili
2009
Spațiu comercial, 111 mp în Central
3.108 € / lună
Iași, Central
111 mp utili
Spațiu stradal
1E

Detalii de contact

Abonează-te la newsletter să fii primul care primește cele mai noi recomandări de proprietăți și sfaturi de la experți.

CONTACT

Creează alertă

Salvează căutarea ca să primești pe email ultimele anunțuri publicate

Spații comerciale de închiriat în zona Baza 3, Iași