Spatiu logistic cu birouri InCity - Bulevardul Metalurgiei IASI Comision 0%

4.258 € + TVA / lună
4.50 € + TVA / mp / lună

Metalurgie, Iași

Sup. prop / mp. prop.:
946,24 mp
Tip prop.:
Producție/Servicii
Niv.:
1
  • • Locație exactă

Descriere spațiu comercial

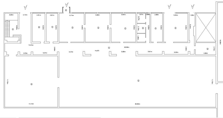
Spatiu logistic cu birouri – 946 mp Disponibil pentru inchiriere, acest spatiu logistic de 946 mp este situat intr-o zona foarte bine conectata din Iasi, la doar 850 m de Egros Shopping si 1 km de Centrul Comercial Felicia, cu acces facil din Bulevardul Metalurgiei. Spatiul este compartimentat functional pentru activitati administrative si logistice: Compartimentare: 5 birouri, in suprafata totala de 165 mp 1 grup sanitar 2 camere tehnice 2 zone de productie sau depozitare cu suprafete de 420 mp si 142 mp, avand inaltime de 6 metri 4 cai de acces in cladire, pentru eficienta operationala Zona este parte a unui ecosistem de afaceri dinamic, in apropiere de supermarketuri, spatii industriale, birouri si unitati de productie, oferind un cadru propice desfasurarii activitatilor logistice si comerciale. La cerere, oferta si compartimentarea pot fi personalizate in functie de nevoile specifice ale chiriasului.
Citește mai mult Citește mai puțin
Electricitate Apă Gaz

Detalii spațiu comercial

ID anunț: XEE70405Q Copiat! 257400208 Copiat!
Actualizat în: 24 Septembrie 2025
Stadiu construcție: Există
Structură rezistență: Beton
Regim înălțime: P+1E

Utilități

Acces
Cale rutieră
Dotări
Iluminat

Subspații disponibile

Spatiu logistic cu birouri - Bulevardul Metalurgiei IASI

Spatiu logistic cu birouri – 946 mp Disponibil pentru inchiriere, acest spatiu logistic de 946 mp este situat intr-o zona foarte bine conectata din Iasi, la doar 850 m de Egros Shopping si 1 km de Centrul Comercial Felicia, cu acces facil din Bulevardul Metalurgiei. Spatiul este compartimentat functional pentru activitati administrative si logistice: Compartimentare: 5 birouri, in suprafata totala de 165 mp 1 grup sanitar 2 camere tehnice 2 zone de productie sau depozitare cu suprafete de 420 mp si 142 mp, avand inaltime de 6 metri 4 cai de acces in cladire, pentru eficienta operationala Zona este parte a unui ecosistem de afaceri dinamic, in apropiere de supermarketuri, spatii industriale, birouri si unitati de productie, oferind un cadru propice desfasurarii activitatilor logistice si comerciale. La cerere, oferta si compartimentarea pot fi personalizate in functie de nevoile specifice ale chiriasului.

Chirie / u.m. / lună:
4.5 EUR/mp (total: 4258.08 EUR/lună) + TVA
Suprafață disponibilă:
946.24
Suprafață birouri (mp):
165
Disponibilitate spațiu:
imediat

Puncte de interes

Mijloace transport
tram-station
Statia "CFS II", linia 1,11
Stații tramvai aprox. 53 m
bus-station
Statia "CFS II", linia 27
Stații autobuz aprox. 65 m
tram-station
Pod Metalurgie
Stații tramvai aprox. 218 m
train-station
Gara Iasi-Socola
Stații tren aprox. 1448 m
Școală
kindergarten
Gradinita Waldorf Iasi
Gradinițe aprox. 386 m
school
Grupul Scolar Stefan Procopiu
Școli aprox. 436 m
kindergarten
Gradinita
Gradinițe aprox. 1006 m
university
Catedra de Ed Fiz si Sport - Univ Tehn Gh Asachi
Universități aprox. 1034 m
Recreere
public-square
Piata Inginer Virgil Sahleanu
Piețe publice aprox. 292 m
sports-ground
Teren sportiv
Terenuri sport aprox. 412 m
supermarket
eGros
Supermarket aprox. 548 m
mall
Iulius Mall
Mall aprox. 1347 m

Proprietăți recomandate

Detalii de contact

4Biz Properties

Departament Industrial

4Biz Properties
PRO

Abonează-te la newsletter să fii primul care primește cele mai noi recomandări de proprietăți și sfaturi de la experți.

CONTACT

Creează alertă

Salvează căutarea ca să primești pe email ultimele anunțuri publicate

Spații comerciale de închiriat în zona Metalurgie, Iași