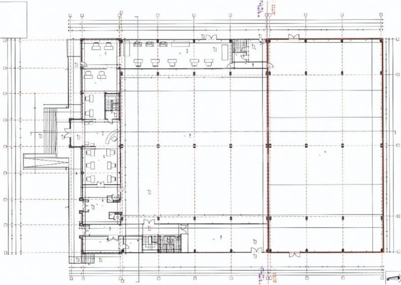
Va propunem spre vanzare 2 hale industriale cu amprentă totala la sol de 2081mp (extensibilă la 3500mp) si suprafata utila prezentă de 3024mp (extensibilă la peste 4500mp), edificate pe un teren de 5847mp in Parcul Industrial Tetarom 1. Un punct forte al amplasarii halelor este dat de accesibilitatea fata de punctele de interes, in proximitate existand mijloace de transport in comun, restaurante cu auto-servire, punct comercial alimentar si cafea, locuri de joacă, etc.
Locatia se preteaza pentru activitatile care necesita cu număr mare de personal, fiind ideale pentru producție, centru tehnologic de inovare-cercetare, depozitare, birouri, ateliere si activități logistice, firme de catering, tipografii, arhivare, activități comerciale, show-room Auto, Service Auto etc.
DIn punct de vedere tehnic, construcțiile au o structură metalică de tip SIN, cu inălțime max. utilă de 9,5m la coamă si 6,6m la streașina, submezanin de 3.20m si mezanin de la 3,22/ 4,2m, rampa tir, curent electric de forta, acoperiș din panouri sandwich 15cm si perete comun antifoc. Halele sunt concepute unitar, fiind despărțite printr-un perete antifoc si au un cadru de travee comun fiind gandite intr-o complementaritate functională.
Pentru mai multe detalii sau programarea unei vizionari, nu ezitati sa ne contactati! Garantam castigul reciproc! [ID P10904]
Sediul central - Timișoara
Bulevardul Victor Babeș nr. 2, 300230, Timișoara, România
Tel: +40.374.40.44.98 / Fax: +40.256.401.179
Email: suport@imobiliare.ro
Luni - Vineri 08:00 - 20:00
Punct de lucru - București: Iride Business Park, Bld. Dimitrie
Pompeiu 9-9A, Clădirea B2B,
020335, Sector 2, București, România
CONTACT
Sediul central - Timișoara
Bulevardul Victor Babeș nr. 2, 300230, Timișoara, România
Tel: +40.374.40.44.98 / Fax: +40.256.401.179
Email: suport@imobiliare.ro
Luni - Vineri 08:00 - 20:00
Punct de lucru - București: Iride Business Park, Bld. Dimitrie
Pompeiu 9-9A, Clădirea B2B,
020335, Sector 2, București, România
Școala de Agenți de Poliție "Septimiu Mureșan" Cluj Napoca
aprox.
1049 m
Scoala Speciala pentru Deficienti de Auz Nr. 2
aprox.
1074 m
Liceul Teologic Baptist "Emanuel"
aprox.
1173 m
Liceul Teologic Emanuel
aprox.
1189 m
Scoala Generala si Liceul Waldorf
aprox.
1576 m
Colegiul Național George Barițiu
aprox.
1626 m
Scoala generala nr. 7 / Emil Isac
aprox.
1701 m
Scoala Generala "Horea"
aprox.
1834 m
Școala de Muzică Augustin Bena
aprox.
1885 m
Scoala de Muzica
aprox.
1893 m
Scoala Horea
aprox.
1896 m
Colegiul Tehnic de Comunicatii Augustin Maior
aprox.
1903 m
Institutul de cercetari in chimie Raluca Ripan
aprox.
1456 m
UBB Educatie Fizica si Sport
aprox.
1475 m
Facultatea de Educatie Fizica si Sport
aprox.
1487 m
Facultatea de Farmacie
aprox.
1491 m
Pictura (Academia de arte vizuale "Ion Andreescu" Cluj-Napoca)
aprox.
1624 m
Universitatea de Arta si Design
aprox.
1624 m
Universitatea "Sapientia"
aprox.
1787 m
UBB Chimie si Inginerie Chimica
aprox.
1841 m
Facultatea de litere
aprox.
1858 m
Facultatea de Chimie (UBB)
aprox.
1858 m
Universitatea Tehnică din Cluj-Napoca
aprox.
1926 m
Faculty of Automation and Computer Science
aprox.
1934 m
UBB Teologie Reformata
aprox.
1963 m
Faculty of Reformed Theology, BBU (en)
aprox.
1973 m
Universitatea Babeș-Boliay
aprox.
1975 m
Lidl
aprox.
890 m
OUTLET
aprox.
1382 m
La Doi Pasi
aprox.
1584 m
Magazin Profi Grigorescu
aprox.
1696 m
Profi
aprox.
1696 m
Mega Image
aprox.
1830 m
Magazin alimentar
aprox.
1968 m
Parcare
aprox.
163 m
Parcare
aprox.
222 m
Parcare privata
aprox.
688 m
Parcare
aprox.
695 m
Parcare privata
aprox.
738 m
Parcare
aprox.
761 m
Parcare privata
aprox.
789 m
Parcare privata
aprox.
832 m
Parcare privata
aprox.
849 m
Parcare pentru clienti cu plata
aprox.
911 m
Parcare privata
aprox.
921 m
Parcare
aprox.
939 m
Parcare privata
aprox.
978 m
Parcare
aprox.
993 m
Parcare privata
aprox.
1008 m
Fabrica de Sport
aprox.
362 m
Teren sportiv
aprox.
890 m
Teren sportiv
aprox.
1009 m
Teren sportiv
aprox.
1036 m
Teren sportiv
aprox.
1077 m
Teren sportiv
aprox.
1142 m
Teren sportiv
aprox.
1175 m
Teren sportiv
aprox.
1190 m
CFR 1907 Cluj
aprox.
1211 m
Teren sportiv
aprox.
1218 m
Teren sportiv
aprox.
1254 m
Teren sportiv
aprox.
1261 m
Teren sportiv
aprox.
1262 m
Teren sportiv
aprox.
1273 m
Teren sportiv
aprox.
1322 m
Muzeul Etnografic Cluj (en)
aprox.
453 m
Parc
aprox.
724 m
Parc
aprox.
776 m
Parc
aprox.
784 m
Parc
aprox.
795 m
Parc
aprox.
821 m
Parc
aprox.
823 m
Parc
aprox.
836 m
Parc
aprox.
859 m
Parc
aprox.
978 m
Parc :: Spatiu de joaca pentru copii
aprox.
1006 m
Parc
aprox.
1006 m
Parc
aprox.
1012 m
Parc 14 Iulie - Piața 14 Iulie
aprox.
1031 m
Piata 14 Iulie
aprox.
1031 m
Piata Garii-RailwayStation Square (en)
aprox.
1987 m
Farmacia Panaceea
aprox.
787 m
Farmacia Grigorescu
aprox.
1063 m
Farmacia Herba
aprox.
1402 m
Ropharma
aprox.
1602 m
Viva
aprox.
1604 m
Viscum
aprox.
1646 m
Cariatida Drogherie
aprox.
1825 m
Farmacia Catena
aprox.
1955 m
Ducfarm
aprox.
1964 m
Farmacia Calendula
aprox.
1974 m
Farmacia Dona 190
aprox.
1986 m
Sanatatea Verde
aprox.
1997 m
Policlinica Grigorescu
aprox.
1132 m
Euro medical center
aprox.
1628 m
Spitalul Clinic de Urgenta pentru copii Cluj-Napoca Neonatologie-prematuri
aprox.
1728 m
Centrul Medical Halmasan
aprox.
1746 m
Cabinet medical universitar
aprox.
1756 m
Clinica de Chirurgie Maxilo Faciala
aprox.
1816 m
Pediatrie 2
aprox.
1832 m
Pediatrie II + Urgente
aprox.
1868 m
Policlinica de copii nr III.
aprox.
1874 m
Pediatrie III
aprox.
1889 m
Ambulance (en)
aprox.
1934 m
Serviciul de Ambulanta al judetului Cluj
aprox.
1935 m
Spitalul Privat de Chirurgie
aprox.
1963 m
Salina Saltera
aprox.
1977 m
S.C. TERRA MED S.R.L.
aprox.
1999 m
Terasa "Hoia"
aprox.
643 m
Cantina Hoia
aprox.
654 m
Restaurant Lugano
aprox.
866 m
Sunset Hill Rosetti
aprox.
867 m
Vila Lupsa
aprox.
874 m
Fair - Play
aprox.
971 m
Fair Play
aprox.
981 m
Restaurant
aprox.
982 m
Ilinca
aprox.
991 m
Casa Vikingilor
aprox.
1063 m
Pizzeria Mamma Mia (en)
aprox.
1122 m
Restaurant "Sinaia"
aprox.
1173 m
Restaurant Sinaia
aprox.
1184 m
Suete Restaurant-Pizzerie
aprox.
1237 m
Panoramic
aprox.
1289 m
Las Vegas Caffe
aprox.
755 m
Geo & Andi
aprox.
873 m
Infinity Games
aprox.
1061 m
Admiral
aprox.
1148 m
Cotton Club
aprox.
1274 m
La Gazette
aprox.
1672 m
Bar
aprox.
1923 m
Cheaters
aprox.
1979 m
Bookla
aprox.
882 m
Royal cafe
aprox.
1163 m
PLAN Cafe
aprox.
1498 m
bike44
aprox.
1538 m
Samsara Chill-Out & Tea House
aprox.
1738 m
Qui One Quint tea room
aprox.
1758 m
Pergola
aprox.
1780 m
Meron Platinia
aprox.
1834 m
Origine
aprox.
1913 m
Amadeus Mozart Cafe
aprox.
1922 m
Decanat
aprox.
1957 m
34 Caffe
aprox.
1977 m
Ceainaria Sakura
aprox.
1988 m
Infinity Games
aprox.
1107 m
Uni Sports Bar
aprox.
1466 m
Infinity Games
aprox.
1591 m
Seven
aprox.
1634 m
Cleo
aprox.
1948 m
Jaxx
aprox.
1951 m
Student Pop
aprox.
1989 m
Irish & Music Pub
aprox.
1992 m
Banca Transilvania
aprox.
789 m
Banca Transilvania
aprox.
1546 m
BCR
aprox.
1598 m
Millenium Bank
aprox.
1607 m
Banca Transilvania
aprox.
1620 m
ING
aprox.
1631 m
BRS, Banca Transilvania, BCR, UPC
aprox.
1635 m
BRD
aprox.
1648 m
CEC Bank
aprox.
1654 m
BRD
aprox.
1691 m
BRD
aprox.
1691 m
Banca Transilvania
aprox.
1723 m
Banca Transilvania
aprox.
1742 m
Banca Transilvania
aprox.
1900 m
ATE Bank
aprox.
1915 m
Printre principalele artere care străbat această zonă a Clujului se numără, în partea de sud, strada Septimiu Mureșan (aceasta merge, pe bună parte din lungimea sa, paralel cu râul Nadăș); în centrul cartierului se află Strada Dâmbul Rotund "“ de unde îi vine, de fapt, și numele; în nord, Strada Gheorghe Sion și Strada Viile Dâmbul Rotund marchează, practic, limita nordică a cartierului. Comparativ cu alte zone ale Clujului, Dâmbul Rotund este, pe alocuri, destul de deficitar în ceea ce privește infrastructura rutieră. Deși este deservit, ca și alte zone clujene, de o serie de mijloace de transport în comun, zona de nord a cartierului ar necesita extinderea liniilor parcurse de acestea. Dacă vrei să cumperi o proprietate aici, interesează-te, așadar, ce distanță ai de parcurs până la cele mai apropiate stații.
Dacă ești părinte "“ sau deocamdată doar îți dorești să devii "“, cu siguranță că, atunci când vine vorba de alegerea unei locuințe, un aspect important la care te gândești este reprezentat de oportunitățile de educație disponibile într-o zonă sau alta. În această privință, poți să stai liniștit: în Dâmbul Rotund se găsesc, ca și în celelalte subdiviziuni ale orașului de pe Someș, mai multe unități de învățământ. O școală cu tradiție din cartier este Școala Gimnazială "Emil Isac", situată chiar în apropiere de Strada Dâmbul Rotund, din zona centrală. În ceea ce privește oportunitățile de continuare a studiilor după liceu, de menționat este Școala de Agenți de Poliție "Septimiu Mureșan" "“ localizată în zona de sud a cartierului, dar dincolo de cursul râului Nadăș.
Ca și în Gruia, în Dâmbul Rotund nu există, momentan, un mall și nici un hipermarket (lucru cât se poate de firesc, de altfel, ținând cont de faptul că este vorba de un cartier mărginaș și cu o densitate a populației relativ redusă). Locuitorii acestei zone nu sunt, însă, lipsiți de alternative când vine vorba de cumpărături "“ astfel, pentru nevoile de zi cu zi există o serie de magazine de dimensiuni mai reduse, dintre care unele afiliate unor rețele internaționale. Chiar dacă nu strict între granițele cartierului, opțiuni există și pentru aceia care sunt pasionați de shopping. Fără prea mare efort, aceștia pot ajunge rapid în zona Centrală a orașului, unde pot vizita numeroasele magazine existente în materie de fashion (și nu numai).
Dacă ai "“ sau intenționezi să-ți achiziționezi "“ o mașină, parcarea nu ar trebui să reprezinte, în mod normal, o problemă, dată fiind densitatea redusă a populației din acest cartier. Dacă dorești, totuși, să închiriezi un spațiu al tău de la autoritățile locale, te poți interesa la sediul central al Primăriei Clujului (amplasat pe Strada Moților, nr. 3).
Spre deosebire de locuitorii altor zone ale Clujului, cei din Dâmbul Rotund nu au la dispoziție un parc în toată puterea cuvântului, cartierul fiind, în general, deficitar și la capitolul locuri de joacă pentru copii. Totuși, având în vedere multitudinea zonelor verzi, poți spera să găsești câteva trasee bune de plimbare. Dacă ești pasionat de sport, iar mersul pe jos și joggingul nu sunt suficiente pentru tine, în Dâmbul Rotund găsești o oportunitate importantă, cunoscută localnicilor sub numele "Fabrica de Sport". Amplasat în sudul cartierului, în fosta zonă industrială, acesta este considerat a fi unul dintre cele mai moderne complexuri sportive din oraș, fiind deschis atât amatorilor de fotbal, cât și celor de fitness, aerobic, kickboxing etc.
Dacă te gândești să te muți în Dâmbul Rotund, poate că vei fi dezamăgit să afli că aici nu există niciun spital de stat. Nu e cazul, însă, să te descurajezi: având în vedere proximitatea față de Centru, pentru serviciile medicale de urgență poți ajunge rapid la multitudinea de spitale care se găsesc în "inima" orașului: Spitalul Clinic Județean de Urgență Cluj-Napoca, Spitalul Clinic Municipal Cluj-Napoca, Spitalul Universitar C.F. Cluj-Napoca etc. Nu sunt de neglijat, desigur, nici cele câteva cabinete medicale particulare ce pot fi găsite în cartier "“ pe acest segment vei găsi atât câteva opțiuni în materie de medicină de familie, cât și în ceea ce privește anumite servicii medicale de specialitate (stomatologie, spre exemplu).
În afară de câteva fast food-uri de cartier, locuitorii cartierului Dâmbul Rotund beneficiază, în apropierea casei, și de câteva oportunități demne de luat în seamă la capitolul restaurante. De menționat este restaurantul "Stejarul", amplasat pe Strada Corneliu Coposu, nr. 95, ce dispune de terasă și oferă și servicii de livrare la domiciliu, dar și restaurantul "Fabrica", de pe Strada Tudor Vladimirescu, nr. 22, unde pot fi organizate și evenimente. Pentru a beneficia de o gamă mai largă de opțiuni pentru ieșirile în oraș cu prietenii, locuitorii acestui cartier au la dispoziție, desigur, și zona Centrală.
Dacă ai nevoie să efectuezi o operațiune bancară, trebuie să știi că strict între granițele acestui cartier nu prea ai opțiuni la acest capitol. Cu toate acestea, imediat sub limita sudică a cartierului, la granița dintre Gruia și zona Centrală (reprezentată de Strada Horea), se găsesc trei sucursale bancare: una din rețeaua BCR, o Banca Transilvania, alături de un sediu Raiffeisen Bank. Consultă harta și află unde sunt localizate și alte bănci sau ATM-uri în cartierul Dâmbul Rotund:
Înainte să pleci...
Ești sigur că ai văzut și aceste proprietăți?
1.500.000 €
Cluj-Napoca, Grigorescu
3.024 mp utili
Logistică
2.100.000 €
Cluj-Napoca, Iris
2.000 mp utili
Logistică
1.600.000 €
Cluj-Napoca, Exterior Vest
Logistică
2000
830.000 €
Județul Cluj, Dej
11.600 mp utili
Logistică
1E
1.500.000 €
Cluj-Napoca, Iris
820 mp utili
Logistică
630.000 €
Județul Cluj, Câmpenești
Logistică
2025
Creează alertă
Salvează căutarea ca să primești pe email ultimele anunțuri publicate
Spații comerciale cu 2 camere de vânzare în zona Dâmbul Rotund, Cluj-Napoca
Cere detalii prin email
*
*
*
*
Detaliile tale de contact vor fi partajate cu Win Imobiliare