Parcelă 872.6 mp, intravilan Chinteni, duplex sau casă individuală

33.990 €
38.98 € / mp

Chinteni, Județul Cluj

Sup. teren:
872 mp
Tip:
Construcții
  • • Exclusivitate
  • • Locație exactă
  • • Vizionare prin apel video

Descriere teren

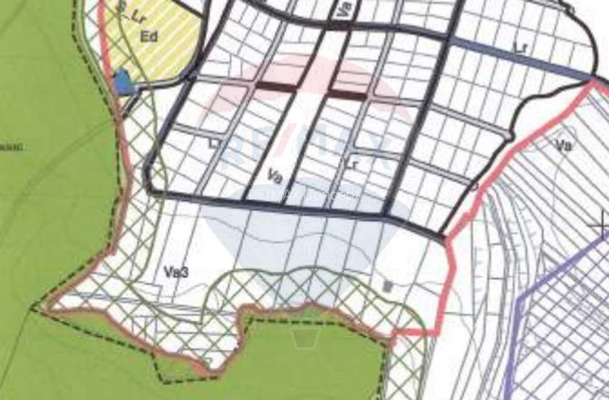
Vă oferim pentru achiziționare o parcelă de teren de 872,60 mp din care nu mai trebuie cedat pentru drum sau alte artificii urbanistice, situată în Chinteni, zonă de locuințe rurale cu regim redus de înălțime (UTR Lr), unde se pot construi locuințe unifamiliale sau de tip duplex, amplasate izolat pe parcelă și anexe ale acestora (garaje, filegorii, împrejmuiri, amenajări exterioare, platforme carosabile și pietonale). Parcela este dimensionată conform regulamentului de urbanism al zonei, urmând să se poată autoriza pentru construire fără alte demersuri de urbanizare (PUZ, PUD etc). Accesul la parcele se face de pe drum cadastrat, actualmente parțial asfaltat, parțial pietruit, iar utilitățile sunt la o distanță de aproximativ 450 m. Ținând cont de: - locație; - stadiu final al reglementărilor de urbanism – revizuire PUG cu implementare certă; - autorizare construcție fără alte demersuri; - preț extrem de accesibil comparativ cu alte oferte; - documente 100% clare și în regulă pentru tranzacționare imediată. Vă invit la analiză și vizionare!
Citește mai mult Citește mai puțin

Detalii teren

ID anunț: X79E1308T Copiat! 236375655 Copiat!
Actualizat în: 23 Februarie 2026
Clasificare teren: Intravilan

Utilități

Comision
standard

Puncte de interes

Mijloace transport
bus-station
M-Xamus V
Stații autobuz aprox. 947 m
bus-station
M-Xamus
Stații autobuz aprox. 947 m
bus-station
M-Xamus E
Stații autobuz aprox. 953 m
bus-station
M-Garden V
Stații autobuz aprox. 1373 m

Proprietăți recomandate

Detalii de contact

RE/MAX Concept

Emil Chirila Sales Associate

RE/MAX Concept
PRO

Abonează-te la newsletter să fii primul care primește cele mai noi recomandări de proprietăți și sfaturi de la experți.

CONTACT

Creează alertă

Salvează căutarea ca să primești pe email ultimele anunțuri publicate

Terenuri construcții de vânzare în Chinteni, Județul Cluj