Teren in curs de autorizare pentru bloc - oportunitate excelenta de investitie!
Va oferim spre vanzare un teren situat intr-o zona accesibila si in plina dezvoltare din Manastur. Acest teren cu suprafata de 1082 mp reprezinta o oportunitate deosebita pentru investitori si dezvoltatori imobiliari.
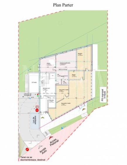
- Front generos de 27 m la drum public;
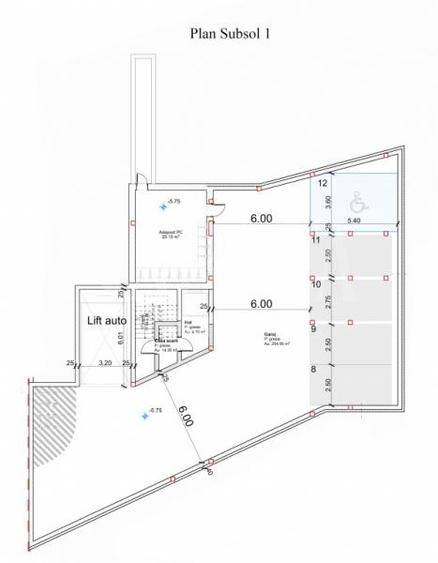
- Regim de inaltime propus: 2S+P+3E+Er;
- Amprenta la sol: cca. 315 mp;
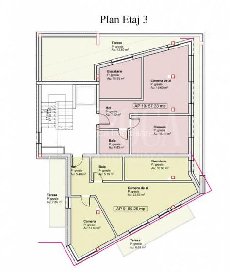
- Suprafata utila totala: cca. 790 mp;
- Suprafata terase: 210 mp;
- Proiect propus pentru 11 apartamente si 2 spatii;
- 12 locuri de parcare subterane.
Terenul se afla in proces de autorizare, ceea ce faciliteaza demararea constructiei intr-un timp scurt.
Locatia si caracteristicile sale il fac ideal pentru un proiect rezidential mixt, adaptat cerintelor actuale ale pietei imobiliare.
Pentru mai multe detalii sau pentru a programa o vizionare la acest imobil, contactati-ne cu incredere!
echipa Napoca Imobiliare
ID oferta: 151694
Sediul central - Timișoara
Bulevardul Victor Babeș nr. 2, 300230, Timișoara, România
Tel: +40.374.40.44.98 / Fax: +40.256.401.179
Email: suport@imobiliare.ro
Luni - Vineri 08:00 - 20:00
Punct de lucru - București: Iride Business Park, Bld. Dimitrie
Pompeiu 9-9A, Clădirea B2B,
020335, Sector 2, București, România
CONTACT
Sediul central - Timișoara
Bulevardul Victor Babeș nr. 2, 300230, Timișoara, România
Tel: +40.374.40.44.98 / Fax: +40.256.401.179
Email: suport@imobiliare.ro
Luni - Vineri 08:00 - 20:00
Punct de lucru - București: Iride Business Park, Bld. Dimitrie
Pompeiu 9-9A, Clădirea B2B,
020335, Sector 2, București, România
Sună acum și cere detalii sau programează o vizionare.
Cere detalii prin email
*
*
*
*
Stații autobuz
Stații tramvai
Școli
Gradinițe
Universități
Supermarket
Parcări
Terenuri sport
Parcuri
Spital
Farmacie
Restaurant
Pub
Bar
Cafenea
Bancă
19
aprox.
627 m
Edgar Quinet Vest
aprox.
632 m
Eugen Lovinescu Est
aprox.
667 m
Eugen Lovinescu Vest
aprox.
668 m
Balea
aprox.
757 m
Vidraru
aprox.
760 m
Gradinita Mehedinti
aprox.
774 m
Balea Vest
aprox.
780 m
Balea Est
aprox.
793 m
Grigore Antipa Vest
aprox.
916 m
Grigore Antipa Est
aprox.
923 m
Statia Minerva, Liniile: 43,43b,1,6,25,101,102
aprox.
952 m
Minerva
aprox.
958 m
Statia MInerva I -dus Linia 1, 102
aprox.
961 m
Peana
aprox.
971 m
Parang
aprox.
959 m
Minerva
aprox.
972 m
Ravasului
aprox.
1041 m
Statia Gr. Alexandrescu, Linia 6
aprox.
1118 m
Clabucet
aprox.
1191 m
Clabucet
aprox.
1302 m
Statia Gr Alexandrescu1TRV, 102
aprox.
1426 m
Calvaria
aprox.
1438 m
Grigore Alexandrescu
aprox.
1447 m
Statia Plopilor 2 TRV, Linia 102
aprox.
1820 m
Plopilor Nord
aprox.
1820 m
Plopilor Sud
aprox.
1820 m
Liceul Teologic Adventist
aprox.
514 m
Liceul Edmond Nicolau
aprox.
519 m
Scoala Generala Nr. 3
aprox.
614 m
Scoala Constantin Brancoveanu
aprox.
625 m
Școala Liviu Rebreanu / Liceul Liviu Rebreanu
aprox.
831 m
Scoala Liviu Rebreanu
aprox.
831 m
Colegiul Tehnic Edmond Nicolau
aprox.
1114 m
Scoala Ion Creanga
aprox.
1134 m
Scoala Generala Nr.17, Ion Creangă
aprox.
1136 m
Scoala Octavian Goga
aprox.
1171 m
Școala Generală Nr. 29 / "Octavian Goga"
aprox.
1176 m
Liceul Teologic Adventist Maranatha
aprox.
1232 m
Liceul Teoretic Eugen Pora
aprox.
1327 m
Scoala Iuliu Hatieganu
aprox.
1335 m
Scoala Generala Eugen Pora
aprox.
1336 m
Gradinita Speciala
aprox.
575 m
Grăd.Buburuzastr.1
aprox.
650 m
Grăd.Universul copiilor
aprox.
707 m
Gradinita cu orar prelungit nr. 72
aprox.
768 m
Grăd.Buburuza
aprox.
778 m
Gradinita Buburuza
aprox.
780 m
Grăd.Academia piticilor
aprox.
808 m
Grăd.Rază de soare str. 2
aprox.
1049 m
Grăd.Dumbrava minunată
aprox.
1154 m
Grăd.Căsuța poveștilor2 / Grigore Alexandrescu 21
aprox.
1215 m
Grădinița "Albinuța"
aprox.
1230 m
Gradinita Albinuta
aprox.
1230 m
Gradinita Dumbrava Minunata
aprox.
1388 m
Grăd.Albinuța
aprox.
1431 m
Gradinita Liceului Waldorf
aprox.
1478 m
USAMV Cluj-Napoca
aprox.
1714 m
Universitatea de Stiinte Agricole si Medicina Veterinara
aprox.
1837 m
Platforma De Biotehnologie Bazata Pe Cunoastere
aprox.
1870 m
Universitatea de Stiinte Agricole si Medicina Veterinara
aprox.
1940 m
Facultatea de Zootehnie si Biotehnologii
aprox.
1973 m
La doi Pasi
aprox.
407 m
Complex Nora
aprox.
418 m
Olimpia
aprox.
504 m
Profi
aprox.
511 m
NONstop
aprox.
737 m
Winmarkt
aprox.
943 m
Carrefour Market
aprox.
977 m
Profi City
aprox.
1082 m
Profi
aprox.
1143 m
Profi
aprox.
1153 m
Lidl
aprox.
1224 m
Profi
aprox.
1431 m
Complex Comercial Flora
aprox.
1435 m
Kaufland
aprox.
1478 m
Penny Market
aprox.
1666 m
Parcare
aprox.
636 m
Parcare
aprox.
636 m
Parcare
aprox.
1242 m
Parcare
aprox.
1242 m
Parcare
aprox.
1253 m
Parcare
aprox.
1260 m
Parcare
aprox.
1286 m
Parcare
aprox.
1352 m
Parcare privata
aprox.
1370 m
Parcare privata
aprox.
1388 m
Parcare
aprox.
1393 m
Parcare 2 Kaufland
aprox.
1428 m
Parcare privata
aprox.
1444 m
Parcare privata
aprox.
1472 m
Parcare privata
aprox.
1476 m
Teren sportiv
aprox.
467 m
Teren sportiv
aprox.
507 m
Teren sportiv
aprox.
627 m
Teren sportiv
aprox.
677 m
Teren sportiv
aprox.
1163 m
Teren sportiv
aprox.
1172 m
Teren sportiv
aprox.
1304 m
Teren sportiv
aprox.
1315 m
Teren sportiv
aprox.
1338 m
Teren sportiv
aprox.
1361 m
Teren sportiv
aprox.
1378 m
Teren sportiv
aprox.
1386 m
Teren sportiv
aprox.
1409 m
Teren sportiv
aprox.
1438 m
Teren sportiv
aprox.
1494 m
Parc
aprox.
506 m
Parc Mehedinti
aprox.
525 m
Teren de joaca Manastur nr.1
aprox.
566 m
Parc
aprox.
657 m
Parc
aprox.
690 m
Parc
aprox.
723 m
Parc
aprox.
932 m
Parc
aprox.
972 m
Parc
aprox.
983 m
pădurea Făget-Manăștur (Galicer)
aprox.
1028 m
Parc
aprox.
1239 m
Parcul Primaverii
aprox.
1247 m
Parc
aprox.
1278 m
Parc
aprox.
1284 m
Parc
aprox.
1290 m
Farmacie
aprox.
411 m
Clădirea Spitalului de Urgență nefinalizata
aprox.
1447 m
Smile Dental Clinic
aprox.
1604 m
Medical Cor
aprox.
1623 m
Cabinetul Medical Zormed
aprox.
1660 m
Clinica Bendis
aprox.
1885 m
Cabinet medical universitar
aprox.
1901 m
Spitalul de Recuperare
aprox.
1992 m
Farmacia Richter
aprox.
895 m
Farmacia Viva
aprox.
898 m
Farmacia Europa
aprox.
956 m
Help Net
aprox.
1016 m
Catena
aprox.
1177 m
Galenus 2
aprox.
1253 m
Donna
aprox.
1441 m
Cynara
aprox.
1485 m
Farmacia Salvie
aprox.
1583 m
Dona
aprox.
1608 m
Catena
aprox.
1621 m
Farmacia Balanis
aprox.
1661 m
Farmacia Zorilor
aprox.
1696 m
Farmacia Veroli
aprox.
1728 m
Farmacie
aprox.
1761 m
La Tina Bistro Manastur
aprox.
348 m
McDonald's
aprox.
928 m
Fast-Food "Big Lunch" (en)
aprox.
987 m
Restaurant Casa Piratilor
aprox.
1198 m
Casa Piratilor (en)
aprox.
1213 m
Vila Rosa
aprox.
1243 m
Restaurant Faget Izvor
aprox.
1285 m
Valahia
aprox.
1363 m
Restaurant Valahia
aprox.
1371 m
EX Cafe
aprox.
1420 m
Gradina de Vara Pedas
aprox.
1449 m
Restaurant & Pizza Daniel Berar
aprox.
1472 m
Pizza X
aprox.
1474 m
Restaurant Sophia
aprox.
1516 m
Restaurant Ianis
aprox.
1548 m
Old Pub
aprox.
490 m
Cafe Bar
aprox.
699 m
G94
aprox.
1918 m
Bistro
aprox.
1073 m
Banca Transilvania
aprox.
413 m
BRD
aprox.
445 m
Raiffeisen Bank
aprox.
900 m
Banca Comerciala Carpatica
aprox.
911 m
OTP Bank
aprox.
949 m
Millenium Bank
aprox.
951 m
Piraeus Bank
aprox.
951 m
UniCredit
aprox.
965 m
BCR
aprox.
967 m
Intesa Sanpaolo Bank
aprox.
968 m
Volksbank
aprox.
970 m
Banca Romaneasca
aprox.
972 m
Alpha Bank
aprox.
973 m
Banca Transilvania
aprox.
974 m
ING
aprox.
1012 m
Una dintre principalele artere care străbate Mănășturul, pe direcția vest "“ nord-est, este Strada Primăverii; acesteia i se adaugă și Strada Câmpului și Strada Frunzișului, ambele pe direcția nord "“ sud-est. Cartierul este deservit de numeroase linii de transport în comun (atât autobuze, cât și troleibuze și tramvaie), menite să facă legătura cu celelalte zone ale orașului "“ și în mod special cu centrul.
Cartierul Mănăștur reprezintă o bună alegere pe termen lung din punctul de vedere al oportunităților de educație. În primă fază, în această zonă a orașului vei găsi numeroase grădinițe, atât de stat, cât și particulare. Ulterior, aici vei putea alege între numeroase școli (primare și gimnaziale), dar și licee. Pentru cei interesați, cartierul oferă și opțiuni în materie de învățământ superior. Este vorba, în primul rând, de Universitatea de Științe Agricole și Medicină Veterinară din Cluj-Napoca, amplasată în extrema de nord-est a cartierului, aproape de granița cu Plopilor. De menționat este și Universitatea "Bogdan Vodă", al cărei sediu se găsește pe strada Grigore Alexandrescu .
În ciuda faptului că poate fi considerat cel mai mare cartier al Clujului, în Mănăștur nu se găsește niciun mall propriu-zis. Cu toate acestea, de aici se poate ajunge cu ușurință atât la mallul Vivo!, din Florești, cât și la Platinia Shopping Center (amplasat în Plopilor, însă foarte aproape de granița cu Mănășturul și Centrul). În interiorul cartierului, o destinație mai apropiată de cumpărături poate fi centrul comercial Winmarkt Cluj (fostul "Big" Mănăștur), atât pe partea de fashion și cosmetice, cât și în materie de mobilă și electrocasnice. Tot aici se află și un Carrefour Market, o farmacie Sensiblu, precum și o sală de fitness. Alte opțiuni ar fi centrele comerciale Sirena (din apropierea stației Clabucet) și Flora (din vecinătatea pieței cu același nume). În Mănăștur se găsește și un hipermarket Kaufland (în zona Câmpului), alături de numeroase supermarketuri "“ dintre care unele afiliate unor rețele internaționale, precum Lidl, Profi sau Billa. Locuitorii acestei zone beneficiază și de câteva piețe amenajate, precum Flora sau Ion Meșter.
Pentru cei care au mașină, găsirea unui loc de parcare stabil în cartier poate fi o problemă "“ asta mai ales în zonele mai intens circulate și unde se află blocuri cu multe etaje. Dacă vrei să eviți situațiile neplăcute odată mutat aici, poți închiria un loc de parcare de la autoritățile locale (cererile pot fi depuse la Primăria de cartier, de pe Strada Ion Meșter, nr. 10).
Dacă ești pasionat de sport, te vei bucura să afli că în Mănăștur se află cea mai mare bază sportivă din Cluj-Napoca, anume Baza Sportivă "Unirea". Amplasat la marginea vestică a cartierului, un alt important spațiu de agrement este cunoscut sub denumirea "La terenuri". În ciuda amenajării sale deficitare, această zonă continuă să fie frecventată, îndeosebi în weekend, de către cei pasionați de activități în aer liber. Tot în Mănăștur găsești și parcurile "Colina" sau "Primăverii", cel din urmă fiind folosit și pentru organizarea unor evenimente culturale. Cartierul oferă și avantajul unui acces rapid către pădurea Făget "“ care poate fi destinația perfectă pentru o ieșire de weekend.
Dacă te gândești să te muți în Mănăștur, e bine să știi că strict în interiorul acestuia nu vei găsi, din păcate, niciun spital de stat "“ ceea ce nu înseamnă, însă, că vei duce lipsă de opțiuni în materie de servicii medicale. Asta pentru că locuitorii cartierului pot ajunge cu ușurință în zona centrală, unde vor avea acces la o serie de asemenea unități medicale. Un astfel de exemplu este Spitalul Clinic Județean de Urgență Cluj-Napoca, care este deschis 24 de ore din 24 "“ la fel ca și Spitalul Clinic Municipal Cluj-Napoca. De menționat sunt și Spitalul Universitar C.F. Cluj-Napoca, Spitalul de Pediatrie, Spitalul Clinic de Boli Infecțioase Cluj-Napoca, Spitalul de Pneumologie "Leon Daniello", dar și Spitalul Clinic de Recuperare Cluj-Napoca. În cartierul Mănăștur "“ sau în imediata sa apropiere "“ vei găsi, de asemenea, și o serie de clinici private, cum ar fi Medstar, Synevo, Union Medical, Centrul Medical Medexpert sau Centrul Medical "Jamgossian".
La capitolul gastronomie, locuitorii cartierului Mănăștur au la dispoziție, în proximitatea casei, și alte câteva variante demne de luat în seamă. Printre acestea se numără restaurantul "Casa Piraților", amplasat pe Strada Răvașului, nr. 16 (acesta dispune de terasă și oferă și servicii de livrare la domiciliu), dar și restaurantul "Valahia", de pe Strada Govora, nr. 27. În afară de restaurante, în această zonă a Clujului se mai găsesc, desigur, și o serie de fast food-uri, inclusiv o unitate McDonald's (pe Strada Primăverii, nr. 74). Alte opțiuni interesante pentru a lua masa în oraș oferă, desigur, și zona centrală.
La capitolul bănci și ATM-uri, este de așteptat ca această zonă a orașului să fie destul de bine deservită, date fiind dimensiunile sale. Spre exemplu, într-un areal destul de restrâns, anume în apropiere de intersecția dintre Strada Primăverii și Strada Izlazului, vei putea găsi patru sedii de bănci, anume un BRD și un BCR, alături de o sucursală Banca Românească și una a Băncii Transilvania. Consultă harta și află unde sunt localizate și alte bănci sau ATM-uri în cartierul Mănăștur:
Înainte să pleci...
Ești sigur că ai văzut și aceste proprietăți?
999.000 €
Cluj-Napoca, Mănăștur
1.464 mp teren
Construcții
990.000 €
Cluj-Napoca, Mănăștur
1.080 mp teren
Construcții
855.000 €
Cluj-Napoca, Mănăștur
1.082 mp teren
Construcții
Creează alertă
Salvează căutarea ca să primești pe email ultimele anunțuri publicate
Terenuri construcții de vânzare în zona Mănăștur, Cluj-Napoca
Cere detalii prin email
*
*
*
*
Detaliile tale de contact vor fi partajate cu Napoca Imobiliare