Teren intravilan de 5595 mp , constructie blocuri, Soseaua Alba Iulia

1.800.000 €
321.72 € / mp

Turnișor, Sibiu

Sup. teren:
5.595 mp
Tip:
Construcții
  • • Comision 0%
  • • Locație aproximativă

Descriere teren

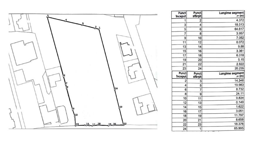
Comision 0% pentru cumparator! Pentru o investitie sigura si profitabila, va propunem la vanzare un teren intravilan situat pe Soseau Alba Iulia, o zona cu mult potential , zona de Vest fiind agreata de catre investitori. Pe langa faptul ca sunt 35 de mari companii care activeaza in zona industriala , iar noul Spital Judetean va fi localizat tot acolo , amplasarea acestui teren permite accesul facil si rapid catre zona de Centru . Terenul are o suprafata de 5595 mp, cu deschidere de 52 mp, are Certificat de Urbanism din 2020, POT 40%, CUT 1.6, cu posibilitatea de a construi locuinte colective cu regim de inaltime : S+P+3+M sau S+P+3+R sau S+D+P+2+M sau S+D+P+2+R Alte detalii ale zonei : -Amenajare strazi: asfaltate -Mijloace de transport -Iluminat stradal Vi se poate pune la dispozitie un proiect creat cu un arhitect sau puteti veni cu o idee proprie.
Citește mai mult Citește mai puțin
Electricitate Apă Gaz Canalizare

Detalii teren

ID anunț: X6590300B Copiat! 81932 Copiat!
Actualizat în: 09 Mai 2024
Clasificare teren: Intravilan
Front stradal: 52 m
Nr. fronturi stradale: 1
P.O.T.: 40%
C.U.T.: 1.6
Sursa coef. urbanistici: Certificat Urbanism

Utilități

Destinație
Rezidențial Comercial
Amenajare străzi
Asfaltate Mijloace de transport în comun Iluminat stradal
Alte caracteristici
Oportunitate de investiție Parcelabil La șosea Acces auto Teren împrejmuit

Puncte de interes

Mijloace transport
bus-station
Bieltz
Stații autobuz aprox. 509 m
bus-station
Brandl 2
Stații autobuz aprox. 564 m
bus-station
Brandl 1
Stații autobuz aprox. 581 m
bus-station
Turnisor
Stații autobuz aprox. 586 m
Școală
kindergarten
Hermania
Gradinițe aprox. 210 m
school
Scoala Gimnaziala Turnisor
Școli aprox. 774 m
kindergarten
Gradinita Nr. 19
Gradinițe aprox. 1752 m
school
Scoala cu Clasele I - VIII NR. 12 Sibiu
Școli aprox. 1781 m
Recreere
park
Alma playground
Parcuri aprox. 295 m
restaurant
Ora Zece
Restaurant aprox. 750 m
supermarket
Metro
Supermarket aprox. 762 m
sports-ground
Teren sportiv
Terenuri sport aprox. 1350 m

Proprietăți similare

Teren Construcții intravilan de 16500 mp, în Turnișor
1.980.000 €
Sibiu, Turnișor
16.500 mp teren
Construcții
Teren Construcții intravilan de 8750 mp, în Lazaret
1.950.000 €
Sibiu, Lazaret
8.750 mp teren
Construcții
Teren Construcții intravilan de 3850 mp, în Hipodrom 1
1.925.000 €
Sibiu, Hipodrom 1
3.850 mp teren
Construcții

Detalii de contact

Maia Imobiliare

Amalia Mateica

Maia Imobiliare

Abonează-te la newsletter să fii primul care primește cele mai noi recomandări de proprietăți și sfaturi de la experți.

CONTACT

Creează alertă

Salvează căutarea ca să primești pe email ultimele anunțuri publicate

Terenuri construcții de vânzare în zona Turnișor, Sibiu