Teren intravilan, 16.800 mp, PUZ aprobat, Valcele – Ideal investitie

1.344.000 €
80 € / mp

Vâlcele, Județul Cluj

Sup. teren:
16.800 mp
Tip:
Construcții
  • • Locație aproximativă

Descriere teren

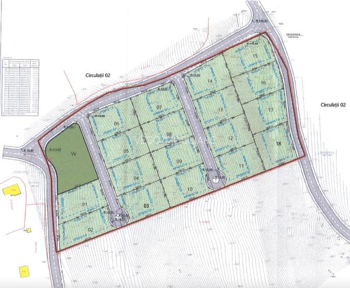
Teren intravilan de 16.800 mp cu PUZ aprobat, Valcele – Ideal pentru dezvoltatori imobiliari, la 14 km de Cluj-Napoca Oportunitate de investitie deosebita in localitatea Valcele, situata la doar 14 km de Cluj-Napoca! Acest teren intravilan, cu o suprafata generoasa de 16.800 mp si PUZ aprobat, reprezinta o optiune ideala pentru dezvoltatorii imobiliari care doresc sa creeze un proiect rezidential modern. Caracteristici cheie: Suprafata utila: 16.800 mp – ideal pentru proiecte rezidentiale de anvergura. PUZ aprobat: Permite constructia a 18 unitati locative, cu optiunea de a construi atat case individuale, cat si case cuplate (duplexuri). Localizare: Valcele, judetul Cluj, la doar 14 km de Cluj-Napoca – o zona in plina dezvoltare, cu acces rapid la facilitatile orasului. Utilitati: Apropierea utilitatilor esentiale (apa, gaz, electricitate) faciliteaza conectarea rapida la retelele necesare. Potential ridicat: Terenul este perfect pentru dezvoltatori care cauta sa construiasca un nou cartier rezidential intr-o locatie strategica. Aceasta oferta se adreseaza in special investitorilor si dezvoltatorilor imobiliari, oferind oportunitatea de a profita de cresterea pietei imobiliare din zona metropolitana a municipiului Cluj-Napoca. Cu un PUZ aprobat si posibilitatea de a dezvolta un ansamblu de 18 locuinte, acest teren poate reprezenta o investitie sigura si profitabila. Pentru mai multe detalii, sau pentru a programa o vizionare, nu ezitati sa ne contactati!
Citește mai mult Citește mai puțin

Detalii teren

ID anunț: XAT013007 Copiat! 238516299 Copiat!
Actualizat în: 22 Ianuarie 2026
Clasificare teren: Intravilan
Nr. fronturi stradale: 2

Utilități

Amenajare străzi
Asfaltate Pietruite
Alte caracteristici
Oportunitate de investiție Parcelabil Acces auto
Comision
2%

Proprietăți recomandate

Detalii de contact

VEGO IMOBILIARE

VEGO Imobiliare

5.00(5 review-uri)

VEGO IMOBILIARE
PRO

Abonează-te la newsletter să fii primul care primește cele mai noi recomandări de proprietăți și sfaturi de la experți.

CONTACT

Creează alertă

Salvează căutarea ca să primești pe email ultimele anunțuri publicate

Terenuri construcții de vânzare în Vâlcele, Județul Cluj