- Ansambluri rezidențiale
- București
- Antracit Coanda
Antracit Coanda, zona Băneasa, București
Băneasa, Sector 1 - Vezi Hartă
Antracit Coanda, zona Băneasa, București
- 144.900 € - 289.900 € + TVABăneasa, Sector 1 - Vezi Hartă
Descriere
Proprietăți
Locație
Timeline
Dezvoltator
Descriere
Ultima actualizare a ansamblului: 27 noiembrie 2025
Proiectul Antracit Coandă este construit urmărind optimizarea costurilor de întreținere și are la bază sistemul nZEB ce contribuie la menținerea unui consum redus de energie.
Înălțimea redusă a imobilului și atenția la detalii recomandă ansamblul Antracit Coandă ca un imobil boutique în care atenția dezvoltatorului, Antracit Residence, s-a concentrat pe a oferi locuitorilor o tipologie aparte de locuințe care să corespundă celor mai rafinate gusturi și necesități.
Tipuri de apartamente
Apartamente 2 camere + birou - Tip A2 sau B2
Am conceput un apartament cu o structură unică, ce acoperă nevoia tot mai acută de a avea un spațiu separat, destinat timpului de lucru. Apartamentul de 2 camere dispune de un birou de 10 mp.
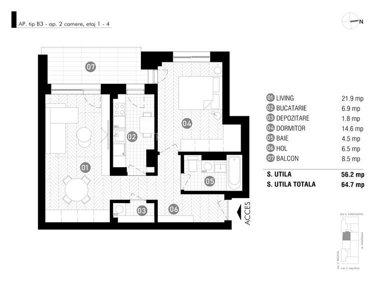
Apartamente 2 camere - Tip A1, B1, A3, B3, B4 si B5
Apartamentele de 2 camere în suprafață totală utilă între 60,9 mp și 64,7 mp, sunt atent compartimentat astfel încât să eficientizeze spațiul și să asigure libertatea de mișcare. Fiecare apartament dispune de camară/depozitare și bucătărie închisă.
Apartamente de 3 camere - Tip A1 si B1
Aceste tipuri de apartamente de 90,5 mp total utili îți oferă 3 camere generoase, completate de 2 băi, o bucătărie închisă, camară/spațiu de depozitare și 2 logii.
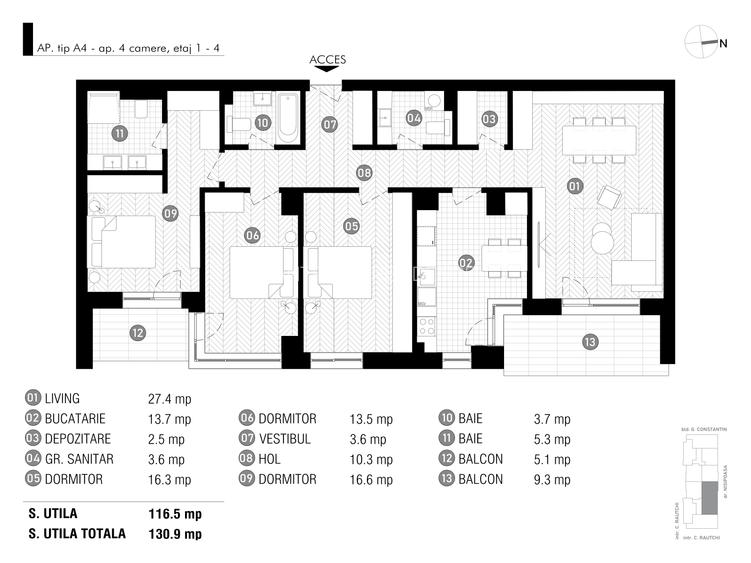
Apartamente de 4 camere - Tip A4
Aceste apartamente de 130,9 mp utili oferă 4 camere generoase, 3 băi, bucătărie închisă, depozitare și 2 logii.
Imobilul "Antracit Coandă" este dezvoltat cu responsabilitate și atenție la detalii de unul dintre cei mai experimentați și binecunoscuți dezvoltatori, Antracit Residence, recunoscut pentru istoricul sau și imobilele livrate cu responsabilitate.
Detalii
IMOBIL ÎNĂLȚIME MICĂ - S+P+4E:
– 36 de apartamente de 2, 3 și 4 camere
– 3 spații comerciale la parterul imobilului
– 31 de boxe de depozitare la parter
– 31 parcări la subsol
– 16 parcări la exterior
– Clădire și apartamente NZEB cu consum redus de energie
– Fiecare apartament dispune de 1 recuperator de caldură
– Fațadă parțial ventilată, cu vata minerală de 15 cm grosime și polistiren grafitat de 15 cm grosime
– Apartamentele de 3 camere dispun de pompă de caldură aer-apă, iar apartamente de 2 și 4 camere dispun de centrală individuală pe gaz
– Obiecte sanitare Grohe
– Gresie și faianță Marazzi
– Parchet Quick-Step
– Folie fonoizolantă montată sub parchet
– Structura imobil pe cadre de beton armat cu cărămidă eficienta termic la exterior, de 30 cm grosime
– Izolare fonică prin utilizare BCA fonic pentru pereții dintre apartamente cu o grosime de 30cm, iar pentru pereții de compartimentare interioară de 12,5 cm grosime
– Tavane false din gipscarton
– Terasa deasupra etajului 4 vă fi termoizolata cu PIR 15cm grosime (echivalent 30cm polistiren)
– Termostate wifi Salus în fiecare apartament
– Încalzire în pardoseala cu minim 15 ani garanție
– Uși interioare cu o gamă largă de modele și culori
– Conexiune pentru mașina de spălat rufe în baie/camăra/depozitare și conexiune pentru mașina de spălat vase în bucătărie
– Apartamentele de 2 dispun de depozitare/camară
– Apartamentele de 3 camere dispun de 2 băi, depozitare/camară și 2 balcoane
– Apartamentele de 4 camere dispun de 3 băi, depozitare/camară și 2 balcoane
– 2 lifturi Kone, de ultimă generație de 6 persoane fiecare cu opțiune pentru handicap
– Internet/TV prin fibră optică de la Digi
– Pregătire pentru aere condiționate
– Adăpost ĂLA
– Termopane Salamander cu 6 camere și geamuri tripan
Progres Construcție
Dezvoltator
Fondatorii Antracit Residence sunt ingineri cu experiență de peste 20 de ani în dezvoltarea proiectelor rezidențiale, comerciale și industriale în România, Franța și încă cinci țări din Europa.
Nu rata ocazia să afli mai multe!
Sună acum și cere detalii sau programează o vizionare.
Nu rata ocazia să afli mai multe!
Sună acum și cere detalii sau programează o vizionare.
Cere detalii prin email
-
Drumul Nisipoasa
aprox. 79 m -
Apicola
aprox. 1229 m -
Piata Baneasa
aprox. 1452 m -
Maguricea
aprox. 1477 m -
Maguricea
aprox. 1523 m -
Statie RATB 5
aprox. 1603 m -
Aeroport Baneasa
aprox. 1650 m -
Aeroport Baneasa
aprox. 1730 m -
Statie RATB 5
aprox. 1743 m -
Soseaua Pipera
aprox. 1873 m -
Soseaua Pipera
aprox. 1942 m
-
Aeroportul Internațional Băneasa (Aurel Vlaicu) - LRBS (BBU)
aprox. 576 m
-
statie Apicola 605, 301, 112
aprox. 1254 m -
Pasaj Baneasa statie 605, 5
aprox. 1390 m -
statie ROMAERO 205, 261, 335, N113
aprox. 1393 m -
Maguricea
aprox. 1451 m -
statie Piata Baneasa 605, 301, 112
aprox. 1471 m -
Maguricea statie 605, 5
aprox. 1497 m -
statie Horia Macelariu 205, 261, 335, N113
aprox. 1551 m -
Capat C.F.R Constanta linii : 112,135,445
aprox. 1589 m -
Statia Pipera S.A., linia 135, N119, 112
aprox. 1594 m -
Carutasilor / Pasajul Aviatiei statie 301, 112
aprox. 1649 m -
statie Bd. Ficusului 205, 261, 335, N113
aprox. 1680 m -
Statia Complex Comercial Baneasa, linia 131, 261, 335, 605
aprox. 1727 m -
Aeroportul Baneasa statie 131, 148, 149, 335, 605, 301, 304 780, 783
aprox. 1737 m -
Statia Marin Dracea, linia 135, N119, 112
aprox. 1756 m -
Aeroportul Baneasa / Soseaua Bucuresti-Ploiesti statie 205, 261, 605, 301, 112
aprox. 1814 m
-
Grupul Școlar de Aeronautică "Henri Coandă".
aprox. 754 m -
Parc avioane Grup Scolar de Aeronautica "H. Coanda"
aprox. 787 m -
Grup Scolar Industrial Henri Coanda
aprox. 840 m -
Scoala primara si gimnaziala MEA
aprox. 1014 m -
Gradinita nr.283
aprox. 1445 m -
Grupul Scolar "Viaceslav Harnaj"
aprox. 1480 m -
Scoala nr. 7
aprox. 1674 m -
Scoala generala nr. 7
aprox. 1689 m -
Sala de sport Sc. Gen. 7
aprox. 1718 m -
Scoala cu clasele I-VIII nr.12 "Herastrau"
aprox. 1779 m -
Scoala Generala Nr. 12
aprox. 1801 m
-
Gradinita
aprox. 1436 m -
Gradinita 238 Bucuresti
aprox. 1452 m -
Gradinita Rosemary
aprox. 1574 m -
Gradinita de copii nr.122
aprox. 1671 m -
Gradinita nr. 121
aprox. 1716 m -
Gradinita
aprox. 1721 m -
Gradinita Miniterra
aprox. 1753 m -
Grădinița Mary Poppins
aprox. 1773 m
-
Școala Superioară de Aviație Civilă - S.S.Av.C.
aprox. 1584 m
-
Lidl
aprox. 1176 m -
Mega Image
aprox. 1279 m -
Complexul comercial Baneasa
aprox. 1390 m -
Baneasa Shopping City 2
aprox. 1403 m -
Mega Image
aprox. 1408 m -
Baneasa Shopping City
aprox. 1449 m -
Baneasa Shopping City 1
aprox. 1547 m -
Baneasa Shopping City
aprox. 1554 m -
Carrefour Baneasa
aprox. 1708 m -
Gulliver
aprox. 1822 m -
Carrefour Market
aprox. 1837 m -
ART Business Center 5
aprox. 1853 m -
Auto Boca
aprox. 1875 m -
Mega Image Baneasa
aprox. 1931 m -
SELGROS Baneasa
aprox. 1957 m
-
Baneasa Shopping Center
aprox. 1736 m
-
Parcare
aprox. 1186 m -
Parcare
aprox. 1307 m -
Parcare
aprox. 1310 m -
Parcare
aprox. 1326 m -
Parcare
aprox. 1396 m -
Parcare
aprox. 1426 m -
Parcare
aprox. 1466 m -
Parcare
aprox. 1472 m -
Parcare
aprox. 1499 m -
Parcare
aprox. 1502 m -
Parcare
aprox. 1504 m -
Parcare
aprox. 1536 m -
Parcare privata
aprox. 1551 m -
Parcare
aprox. 1552 m -
Parcare
aprox. 1554 m
-
Parc
aprox. 1424 m -
Parc
aprox. 1450 m -
Parc
aprox. 1705 m -
Parc
aprox. 1740 m -
Parc
aprox. 1753 m -
Parc
aprox. 1783 m -
Parc
aprox. 1798 m -
Loc de joaca
aprox. 1933 m -
Park (en)
aprox. 1956 m -
spatiu verde
aprox. 1966 m -
Parcul Scoala Herastrau
aprox. 1992 m -
Parcul Scoala Herastrau
aprox. 1992 m -
Parc
aprox. 1997 m -
Loc de Joaca
aprox. 1997 m
-
Teren sportiv
aprox. 1606 m
-
Farmacie Comunitara
aprox. 1082 m -
Farmacie
aprox. 1251 m -
Pharma-Plant Impex
aprox. 1417 m -
Farmacia Catena Baneasa Non-Stop
aprox. 1459 m -
Farmacia Centrofarm 21
aprox. 1498 m -
Farmacia Laborator Orizont
aprox. 1526 m -
Help Net Farma
aprox. 1533 m -
Farmacia naturista
aprox. 1540 m -
Help Net
aprox. 1602 m -
Afina Farmacie
aprox. 1782 m -
Afina
aprox. 1843 m -
Farmacie
aprox. 1850 m -
Help Net Farma
aprox. 1883 m -
Belladonna
aprox. 1941 m -
Farmacie Help Net
aprox. 1955 m
-
Medicover Hospital Pipera
aprox. 1147 m -
ALIA Medical Center
aprox. 1151 m -
NeoLife Medical Center
aprox. 1349 m -
Ponderas Regina Maria
aprox. 1761 m -
Dispensarul Baneasa
aprox. 1761 m -
Anima
aprox. 1911 m
-
EL BACHA Lebanese Restaurant
aprox. 1302 m -
L.A. Confidential
aprox. 1441 m -
La Gil 1
aprox. 1521 m -
La Cocosatu
aprox. 1539 m -
La Gil 2
aprox. 1560 m -
La Cocosatu'
aprox. 1563 m -
LA MAMA Baneasa
aprox. 1597 m -
Restaurant IKEA Baneasa
aprox. 1643 m -
Cris Garden
aprox. 1727 m -
Le Club
aprox. 1739 m -
Phill
aprox. 1742 m -
KFC Feeria
aprox. 1777 m -
Turabo Grand Ballroom
aprox. 1785 m -
KFC Drive
aprox. 1786 m -
Domino's Pizza
aprox. 1798 m
-
Gelateria MONDOGEL
aprox. 1413 m -
Starbucks Cafe
aprox. 1418 m -
Caffe Glamour
aprox. 1802 m -
Banca Transilvania
aprox. 1862 m -
La Boeru
aprox. 1882 m -
Centro Cafe Baneasa
aprox. 1924 m -
BRICOCAFE Baneasa
aprox. 1932 m
-
Dow Class Bar And Restaurant
aprox. 1624 m -
Simbi's
aprox. 1657 m -
Pizzeria STAR Selgros Baneasa
aprox. 1893 m
-
BRD Metav (en)
aprox. 795 m -
BRD
aprox. 799 m -
LIBRA Bank - Ag. Aviatiei
aprox. 1329 m -
Banca Transilvania - Ag. Galeria Feeria
aprox. 1411 m -
BRD = Banease Shopping Center
aprox. 1425 m -
Citi Bank
aprox. 1433 m -
Banca Transilvania
aprox. 1451 m -
Banca Transilvania - Suc. Aviatiei
aprox. 1464 m -
ING Baneasa Mall
aprox. 1503 m -
BRD (en)
aprox. 1507 m -
BRD - Ag. Aviatiei
aprox. 1520 m -
Piraeus - Suc. Aviatiei
aprox. 1532 m -
Piraeus Bank Romania - Agentia Pipera
aprox. 1569 m -
BCR Agentia Nicolae Caramfil
aprox. 1586 m -
Volksbank
aprox. 1605 m
GĂSEȘTI CASA CU CARE CHIAR TE POTRIVEȘTI
GĂSEȘTI CASA CU CARE CHIAR TE POTRIVEȘTI
SERVICIILE NOASTRE
SERVICIILE NOASTRE
CONTACT
-
Sediul central - Timișoara
Bulevardul Victor Babeș nr. 2, 300230, Timișoara, România
Tel: +40.374.40.44.98 / Fax: +40.256.401.179
Email: suport@imobiliare.ro
Luni - Vineri 08:00 - 20:00
-
Punct de lucru - București: Iride Business Park, Bld. Dimitrie
Pompeiu 9-9A, Clădirea B2B,
020335, Sector 2, București, România
CONTACT
-
Sediul central - Timișoara
Bulevardul Victor Babeș nr. 2, 300230, Timișoara, România
Tel: +40.374.40.44.98 / Fax: +40.256.401.179
Email: suport@imobiliare.ro
Luni - Vineri 08:00 - 20:00
-
Punct de lucru - București: Iride Business Park, Bld. Dimitrie
Pompeiu 9-9A, Clădirea B2B,
020335, Sector 2, București, România