- Ansambluri rezidențiale
- București
- Street 6 Vespasian 50
Street 6 Vespasian 50, zona Plevnei, București
Plevnei, Ultracentral - Vezi Hartă
Street 6 Vespasian 50, zona Plevnei, București
- 174.900 € - 439.900 € + TVAPlevnei, Ultracentral - Vezi Hartă
Descriere
Proprietăți
Locație
Timeline
Dezvoltator
Descriere
Ultima actualizare a ansamblului: 27 mai 2025
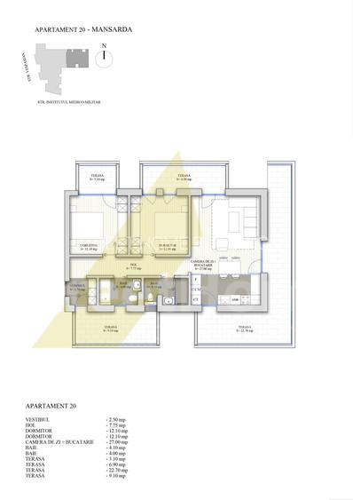
Clădire locuințe colective S+P+2E+3R, cu Lift, având termen de finalizare Decembrie 2025 Proiectul cuprinde 20 de unități: • 3 apartamente tip Duplex P+1E • 3 apartamente tip Penthouse • 14 apartamente de 2 și 3 camere Subsolul cuprinde un garaj cu 24 de Locuri de parcare, 12 boxe depozitare și adăpost de protecție civila (ALA) Clădirea va fi dotată cu sistem de alarmare pentru incendii și vă fi autorizată ISU, iar garajul va avea sistem de desfumare pentru eliberarea noxelor.
Cine suntem?
StreetHome Buildings a luat naștere în 2018, având până în prezent, finalizate și vândute, 5 clădiri de tip Boutique Premium Apartments, în zone semicentrale ale Bucurestiului.
Detalii Proiect Street 6 - Vespasian 50
• Clădire locuințe colective S+P+2E+3R, cu Lift Thyssenkrupp
• Subsolul cuprinde un garaj cu 24 de Locuri de parcare, 12 boxe depozitare și adăpost de protectie civilă (ALA)
• Clădirea va fi dotată cu sistem de alarmare pentru incendii și va fi autorizată ISU, iar garajul va avea sistem de desfumare pentru eliberarea noxelor.
Repere:
• 200 m – Gara de Nord / Metrou
• 400 m – Basarab / Kaufland
• 600 m – Carrefour Orhideea
• 1,4 km – Grădina Botanică
• 1,5 Km – Piața Victoriei
• 2,0 Km – Parcul Kiseleff
Structură și Instalații:
• Structura de rezistență din stâlpi, grinzi și plăci de beton armat (structură pe cadre)
• Blocuri de zidărie Ytong cu termoizolație din Vată bazaltică
• Ȋncălzire prin pardoseală cu sistem TECE
• Centrală termică în condensare Buderus
• Aer Condiționat Inverter
Amenajare Interior:
• Compartimentare interioară cu Rigips, 2 foi pe fiecare parte + vată bazaltică pentru izolare fonică și termică
• Tâmplăria interioară se realizează cu uși albe PINUM
• Parchet SPC (stone plastic composit) – living, dormitor și bucătărie pentru transmitere termică eficientă, izolare fonică ridicată și întreținere ușoară
• Plăci de ceramică de dimensiuni mari
• Duș walk–In sau Cada fibra, WC cu mecanism încastrat (TECE) lavoar și obiecte sanitare din porțelan alb (ROCA/GROHE)
Amenajare Exterior și Casa Scării:
• Clădire izolată termic cu vată bazaltică și fațadă ventilată
• Intrarea în casa scării se va face securizat, cu videointerfon
• Ușă acces apartament metalică, culoare albă/griantracit, antiefracție și antifonică
• Tâmplăria exterioară Reynaers Aluminium cu geam tripan
• Balustrade exterioare din 2 foi sticlă securizată
• Gresie flotantă de exterior pe terase
• Iluminatul exterior/interior se va face cu sisteme LED
• Pe acoperiș se vor monta panouri fotovoltaice pentru alimentarea spațiilor comune
Progres Construcție
Dezvoltator
Nu rata ocazia să afli mai multe!
Sună acum și cere detalii sau programează o vizionare.
Nu rata ocazia să afli mai multe!
Sună acum și cere detalii sau programează o vizionare.
Cere detalii prin email
-
Statia Primaria Sector 6, linia 133, 635
aprox. 173 m -
Statia Witing linia 133,,62,71,85,93
aprox. 352 m -
Capat Gara de Nord linii:62,71,85,93,96,105,282,654,133,123,178,
aprox. 356 m -
Gara de Nord 2
aprox. 396 m -
Statia Gara Basarab, linia 105,178,635
aprox. 406 m -
Gara de Nord 2 (M4)
aprox. 418 m -
Statia Fluviului, linia 105,133,178
aprox. 469 m -
Statia Calea Plevnei / Mircea Vulcanescu 126, 163, 168, 368, 123, 226,93, 62, 85, 96
aprox. 477 m -
Calea Plevnei
aprox. 498 m -
Statie Gara de Nord 133, 182, 205, 282, N117, 105, 65, 97, 79, 86
aprox. 501 m -
Gara de Nord 1 (M1)
aprox. 524 m -
Statia Facultatea de Filosofie, linia 601
aprox. 553 m -
Calea Plevnei
aprox. 580 m -
Autogara Augustina(ptr. tulcea).
aprox. 599 m -
Statia ELCEN liniile: 601, N110, N120
aprox. 606 m
-
Gara Bucuresti Nord
aprox. 350 m -
Vechea "Gara a Targovistei" astazi parte din Gara de Nord
aprox. 363 m -
Gara Basarab
aprox. 815 m -
Fosta Gara Regala Cotroceni (en)
aprox. 1456 m
-
Metrorex. Stația Gara de Nord 2 (M4)(2000)
aprox. 415 m -
Metrorex. Stația Gara de Nord 1 (M1)(1987)
aprox. 524 m -
Gara de Nord 1
aprox. 537 m -
Metrorex. Stația Gara de Nord
aprox. 592 m -
Metrorex. Statia de Gara de Nord
aprox. 593 m -
Basarab m1 m4 station subway
aprox. 630 m -
Metrorex. Stația Basarab
aprox. 706 m -
Metrorex. Stația Basarab 1/2 (M1),(M4)(1992)
aprox. 712 m -
Metrorex. Stația Grozăvești (M1)(1979)
aprox. 869 m -
Statia Metrou Grozavesti
aprox. 903 m -
Acces Stația Eroilor (M3).
aprox. 1035 m -
Metrorex. Stația Eroilor (M1),(M3)(1979)
aprox. 1115 m -
Eroilor
aprox. 1115 m -
Piata Victoriei 2
aprox. 1519 m -
Piata Victoriei 1
aprox. 1521 m
-
Statie Gara Basarab 133, 178, 282, 105, 123, 162, 780
aprox. 597 m -
Statia Pod Cotroceni, linia 93, 62, 96
aprox. 640 m -
Statie Soseaua Nicolae Titulescu 65, 97, 86
aprox. 715 m -
Statia Stirbei Voda, linia 96
aprox. 937 m -
statia RATB Eroilor: 69, 96
aprox. 1056 m -
Statia Piata Operei, linia 61,69,90,91
aprox. 1202 m -
Statia Vasile Parvan 66,70,92
aprox. 1411 m -
Statia Facultatea de Drept, linia 61,69,90,91
aprox. 1428 m -
Statie Pasaj Grant 65, 97, 86
aprox. 1474 m -
Statie Cimitirul Sf. Vineri 65, 97, 86
aprox. 1676 m -
Statie Caraiman 65, 97, 86
aprox. 1942 m
-
Gara de Nord
aprox. 607 m -
Statie Pasaj Basarab Tramvai 1
aprox. 630 m -
Calea Giulesti
aprox. 633 m -
Pasajul Basarab
aprox. 639 m -
Statie de tramvai (1)
aprox. 642 m -
Gara Basarab
aprox. 674 m -
Calea Plevnei
aprox. 709 m -
Statia Pod Grozavesti linia: 1, 11, 35
aprox. 795 m -
Mircea Vulcanescu
aprox. 810 m -
Buzesti
aprox. 823 m -
Pod Grozavesti
aprox. 861 m -
Statia Banu Manta, linia 34,42,46
aprox. 947 m -
Spitalul Panait Sarbu
aprox. 969 m -
Piata Buzesti
aprox. 1001 m -
Doctor Felix
aprox. 1014 m
-
Gradinita Zum-zum
aprox. 96 m -
Gradinita Madeleine
aprox. 99 m -
Gradinita Dreams World
aprox. 147 m -
Gradinita de copii nr. 285
aprox. 184 m -
Gradinita MAPN nr.1
aprox. 390 m -
Gradinita nr. 206
aprox. 783 m -
Gradinita nr. 112
aprox. 861 m -
Gradinita Smiley
aprox. 920 m -
Gradinita cu Program Prelungit Nr. 248
aprox. 1067 m -
Gradinita nr. 248
aprox. 1076 m -
Gradinita nr. 271
aprox. 1171 m -
Gradinita MAPN
aprox. 1196 m -
Gradinita Olga Gudynn
aprox. 1212 m -
Gradinița Dumbrava Fermecată
aprox. 1275 m -
Gradinita nr. 248
aprox. 1449 m
-
Institutul Medico-Militar
aprox. 163 m -
Gradinita nr.285
aprox. 200 m -
Scoala Gimnaziala Uruguay
aprox. 279 m -
Fostul Liceu de Arte Plastice Nicolae Tonitza - Local Cursuri
aprox. 344 m -
Clubul Sportiv Scolar nr.5
aprox. 371 m -
Club Sportiv nr. 5
aprox. 396 m -
Scoala Nr. 1 Sfintii Voievozi
aprox. 643 m -
Gradinita nr.206
aprox. 747 m -
Scoala de Muzica si Arte Plastice nr. 1
aprox. 783 m -
Scoala de Muzica si Arte Plastice 1
aprox. 793 m -
Scoala de Muzica Nr.3
aprox. 946 m -
Complexul Scolar Cronos
aprox. 991 m -
Scoala cu Clasele I-VIII NR. 3
aprox. 1011 m -
Scoala Generala Nr.3 "Nicolae Titulescu"
aprox. 1014 m -
Colegiul Tehnic de Arhitectură și Lucrări Publice Ioan N. Socolescu
aprox. 1039 m
-
Institutul Medico-Militar
aprox. 163 m -
ICECHIM - Institutul National de Cercetare - Dezvoltare pentru Chimie si Petrochimie
aprox. 383 m -
Facultatea de Filosofie, Universitatea din București
aprox. 524 m -
Universitatea Bucuresti - Facultatea de Filosofie
aprox. 524 m -
Institutul de chimie Organica
aprox. 524 m -
ANEFS (en)
aprox. 541 m -
Universitatea Nationala de Educatie Fizica si Sport
aprox. 541 m -
Corp A
aprox. 655 m -
Institutul de Biodinamica
aprox. 675 m -
Facultatea de Inginerie Medicala
aprox. 683 m -
Facultatea de Chimie Industriala
aprox. 693 m -
Facultatea de Inginerie Aerospatiala
aprox. 720 m -
Facultatea de Biologie
aprox. 729 m -
Facultatea de Biologie, Universitatea din București
aprox. 732 m -
Universitatea Politehnica Bucuresti
aprox. 750 m
-
Shop & Go - Mega Image
aprox. 251 m -
Ami Non-Stop
aprox. 425 m -
Kaufland
aprox. 509 m -
Mega Image
aprox. 631 m -
Carrefour Orhideea
aprox. 640 m -
IDM
aprox. 678 m -
Mega Image Titulescu 2
aprox. 735 m -
Best Market 1
aprox. 888 m -
Mega Image
aprox. 937 m -
Mega Image
aprox. 1080 m -
Mega Image
aprox. 1330 m -
Economat
aprox. 1353 m -
Mega Image piata 1Mai Non-Stop
aprox. 1616 m -
Mega Image
aprox. 1619 m -
Mega Image
aprox. 1815 m
-
Intrarea in caminele C si D din grozavesti
aprox. 584 m
-
Parcare
aprox. 217 m -
Parcare
aprox. 395 m -
Parcare Gara de Nord
aprox. 408 m -
Parcare
aprox. 448 m -
Parcare
aprox. 448 m -
Parcare
aprox. 459 m -
Parcare
aprox. 480 m -
Parcare
aprox. 486 m -
Parcare
aprox. 516 m -
Parcare
aprox. 585 m -
Parcare
aprox. 588 m -
Parcare
aprox. 624 m -
Parcare
aprox. 635 m -
Parcare
aprox. 659 m -
Parcare
aprox. 681 m
-
Parc
aprox. 258 m -
Parc
aprox. 258 m -
Spațiu verde Gara de Nord
aprox. 402 m -
Parc
aprox. 407 m -
Parcul Garii de Nord
aprox. 413 m -
Parcul Garii de Nord
aprox. 419 m -
Parc
aprox. 460 m -
Loc de joaca
aprox. 460 m -
Parc
aprox. 577 m -
Parcul Duca
aprox. 593 m -
Parculet
aprox. 638 m -
Gradina Italiana
aprox. 717 m -
Gradina Italiana
aprox. 727 m -
Parc
aprox. 829 m -
Parc
aprox. 838 m
-
Teren sportiv
aprox. 566 m -
Teren sportiv
aprox. 982 m -
Teren sportiv
aprox. 1103 m -
Teren sportiv
aprox. 1119 m -
Teren sportiv
aprox. 1133 m -
teren tenis
aprox. 1281 m -
Baza sportiva Universitatea Bucuresti
aprox. 1348 m -
Teren sportiv
aprox. 1391 m -
Teren sportiv
aprox. 1407 m -
Teren sportiv
aprox. 1572 m -
Teren sportiv
aprox. 1581 m -
Teren sportiv
aprox. 1611 m -
Teren sportiv
aprox. 1619 m -
Teren sportiv
aprox. 1625 m -
Teren sportiv
aprox. 1629 m
-
Piata Emil Cioran (Vergilius) (en)
aprox. 916 m -
Intersectia Leu
aprox. 1441 m -
Piața Eroilor
aprox. 1507 m
-
Life Care Medical
aprox. 89 m -
Munor Cris Medica
aprox. 155 m -
Spitalul Munposan '94
aprox. 180 m -
Munposan 94
aprox. 182 m -
Witting Hospital (Spitalul CFR) (en)
aprox. 203 m -
Spitalul Clinic nr.1 CF Witing
aprox. 203 m -
Spitalul CFR 1 (Witing)
aprox. 249 m -
"Carol Davila"Military Hospital (en)
aprox. 263 m -
cardio, pneumo
aprox. 286 m -
Ama Optimex
aprox. 311 m -
Clinica Universitara de Medicina Interna si Gastroenterologie (en)
aprox. 328 m -
Institutul National de Medicina Aeronautica si Spatiala
aprox. 336 m -
Institutul national de medicina aeronautica si spatiala - INMAS
aprox. 341 m -
oncologie, medicala III, endocrine
aprox. 355 m -
Sectia de Dermatovenerologie (en)
aprox. 393 m
-
Arta Farm Impex
aprox. 253 m -
Help Net Farma
aprox. 278 m -
Rondfarm
aprox. 325 m -
Farmaplus
aprox. 396 m -
Farmacia Catena
aprox. 451 m -
Sensiblu
aprox. 464 m -
Apoteca Farmacie
aprox. 488 m -
Farmacia Centrofarm 55
aprox. 495 m -
Farmalex Total
aprox. 591 m -
Farmacia Apoteca 1
aprox. 602 m -
Catena Farmacie
aprox. 618 m -
Centrofarm
aprox. 661 m -
Lile Farm
aprox. 839 m -
HelpNet
aprox. 876 m -
Farmacia Centrofarm
aprox. 898 m
-
Subway Gara de Nord
aprox. 385 m -
McDonald's
aprox. 385 m -
KFC Gara de Nord
aprox. 452 m -
Pizza
aprox. 522 m -
Filos Pub
aprox. 563 m -
La Haleala
aprox. 618 m -
AZZURRO
aprox. 640 m -
Shaormeria "La Haleala" (en)
aprox. 644 m -
KFC
aprox. 658 m -
McDonald's
aprox. 679 m -
Azzurro
aprox. 684 m -
Subway - Carrefour Orhideea (Bucuresti)
aprox. 685 m -
BALKAN
aprox. 803 m -
Codrul Cosminului
aprox. 822 m -
Chianti Cafe (en)
aprox. 828 m
-
Filos Pub
aprox. 539 m -
Lucky Poin
aprox. 573 m -
The Dubliner
aprox. 1004 m -
Quantic Pub
aprox. 1157 m -
Roxy Pub
aprox. 1163 m -
Le Cafe Inmedio
aprox. 1188 m -
Taverna Bradet
aprox. 1266 m -
The Place
aprox. 1358 m -
Club Piranha
aprox. 1463 m -
James Joyce's Pub & Restaurant
aprox. 1939 m -
StudentPub
aprox. 1998 m
-
Ramayana Cafe
aprox. 667 m -
Sufrageria cu Jocuri
aprox. 1007 m -
J'ai Bistrot
aprox. 1173 m -
Ceainaria Cotroceni
aprox. 1202 m -
Gloria Jean's
aprox. 1217 m -
Starbucks
aprox. 1280 m -
Roland 1811 cafe
aprox. 1301 m -
Bouche Bee
aprox. 1320 m -
Caffe Bordo
aprox. 1345 m -
Meron Coffee
aprox. 1364 m -
Cafe Antipa
aprox. 1396 m -
Dante Cafe
aprox. 1417 m -
CAFEA - La Haig Keskerian
aprox. 1421 m -
Admiral Cafe
aprox. 1479 m -
Caffeine & Latte
aprox. 1483 m
-
Stuf Vama Veche
aprox. 1042 m -
Caffe No. 35
aprox. 1161 m -
Marvin bar&more
aprox. 1263 m -
Rock'n'Regie
aprox. 1321 m -
Letters Bar
aprox. 1423 m -
Clubul Taranului
aprox. 1455 m -
El Bistro
aprox. 1492 m -
La Jeg
aprox. 1651 m -
A1
aprox. 1772 m -
Bar Adesim
aprox. 1784 m
-
BCR Ag Dinicu Golescu
aprox. 355 m -
Banca Romaneasca
aprox. 496 m -
Banca Romaneasca
aprox. 504 m -
BCR
aprox. 504 m -
Banca TRANSILVANIA
aprox. 553 m -
Sucursala Raiffeisen Bank (en)
aprox. 555 m -
Raiffeisen
aprox. 555 m -
Banca Transilvania - Ag. Gara de Nord
aprox. 557 m -
Credit Europe Bank
aprox. 557 m -
Banca Carpatica
aprox. 563 m -
UniCredit Bank - Ag. Gara de Nord
aprox. 563 m -
Intesa Sanpaolo Bank Romania
aprox. 564 m -
Sucursala ING Bank
aprox. 571 m -
ING Gara de Nord
aprox. 571 m -
Credit Europe Bank
aprox. 582 m
GĂSEȘTI CASA CU CARE CHIAR TE POTRIVEȘTI
GĂSEȘTI CASA CU CARE CHIAR TE POTRIVEȘTI
SERVICIILE NOASTRE
SERVICIILE NOASTRE
CONTACT
-
Sediul central - Timișoara
Bulevardul Victor Babeș nr. 2, 300230, Timișoara, România
Tel: +40.374.40.44.98 / Fax: +40.256.401.179
Email: suport@imobiliare.ro
Luni - Vineri 08:00 - 20:00
-
Punct de lucru - București: Iride Business Park, Bld. Dimitrie
Pompeiu 9-9A, Clădirea B2B,
020335, Sector 2, București, România
CONTACT
-
Sediul central - Timișoara
Bulevardul Victor Babeș nr. 2, 300230, Timișoara, România
Tel: +40.374.40.44.98 / Fax: +40.256.401.179
Email: suport@imobiliare.ro
Luni - Vineri 08:00 - 20:00
-
Punct de lucru - București: Iride Business Park, Bld. Dimitrie
Pompeiu 9-9A, Clădirea B2B,
020335, Sector 2, București, România