Teilor 77, Tunari, Județul Ilfov
Tunari - Vezi Hartă
Descriere
Ultima actualizare a ansamblului: 19 noiembrie 2025
Teilor 77 este un ansamblu rezidențial modern, format din 12 vile individuale, grupate câte două.
Proiectul propune locuințe P+1, cu un design minimalist, compartimentare inteligentă și materiale de construcție de calitate superioară.
Localizare
Ansamblul este situat în Tunari, într-o zonă aflată în plină dezvoltare, cu acces facil către principalele puncte de interes. Proiectul se află foarte aproape de strada principală, Ștefan cel Mare, mai exact pe Strada Teiului, la doar 500 m de intrarea în complexul Cosmopolis.La pas, zona dispune centru comercial cu magazine și cafenele.
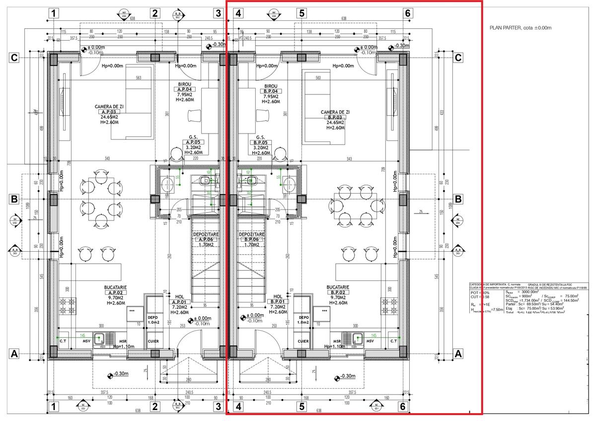
Compartimentarea vilelor:
Parter:
-Hol de acces;
-Living + dining;
-Bucătărie;
-Birou;
-Spațiu de depozitare sub scară;
-Grup sanitar;
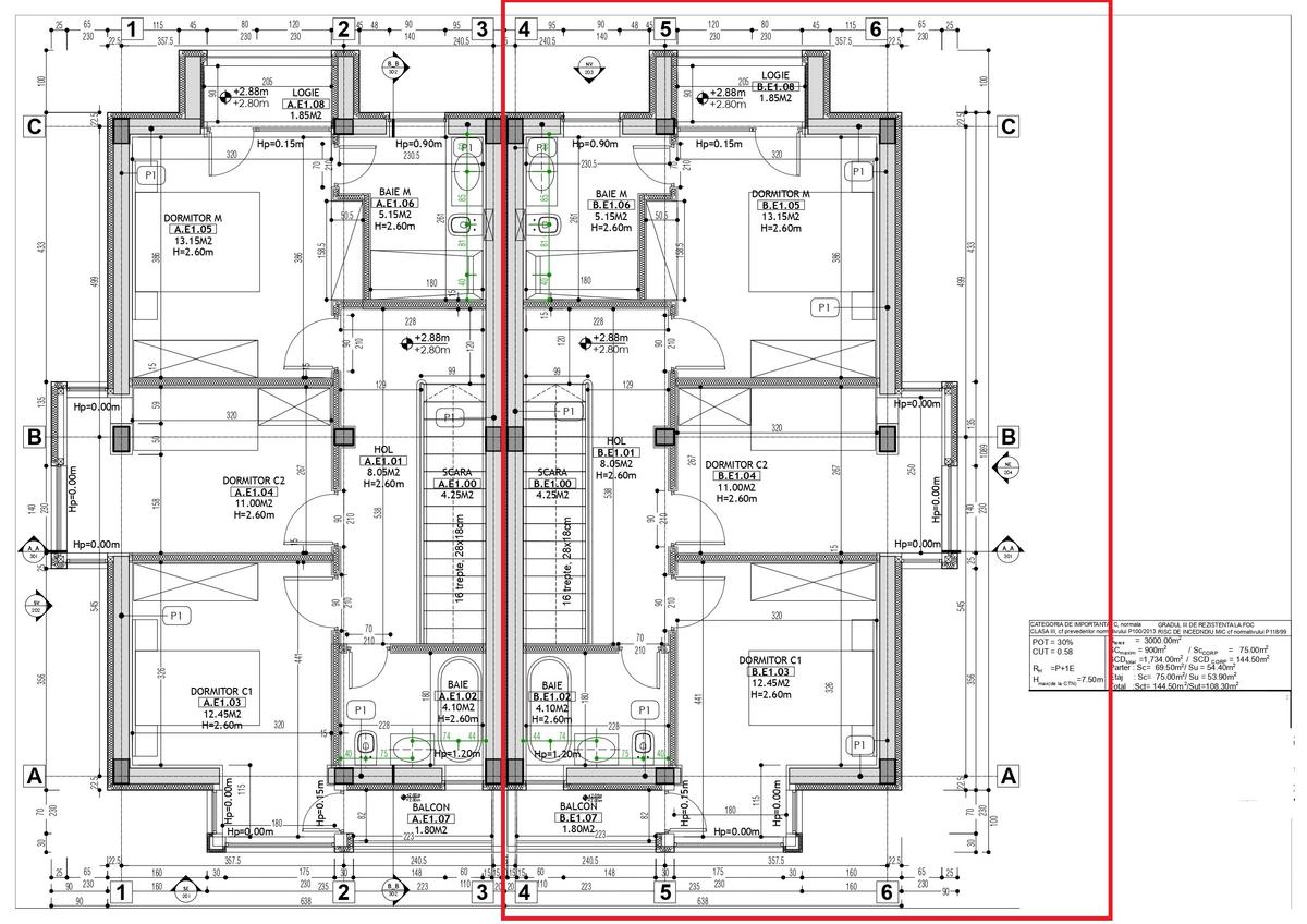
Etaj:
-Hol;
-3 dormitoare, dintre care:
-1 dormitor matrimonial cu baie proprie;
-2 dormitoare deservite de o a două baie;
-2 balcoane.
Spații suplimentare:
-Pod pentru depozitare;
-Grădină proprie;
-Parcare pentru 2 mașini.
Dotări și finisaje:
-Centrală termică proprie Viessmann, 28 KW;
-Tâmplărie premium Salamander;
-Încălzire în pardoseală;
-Suprafețe vitrate mari;
-Finisaje și obiecte sanitare nivel mediu-plus;
-Acoperiș Bilka;
-Fațadă izolată cu polistiren de 15 cm și placaje de cărămidă aparentă.
Facilitățile complexului:
-Complex închis - securizat;
-Poartă de acces cu acționare electrică;
-Iluminat stradal în interiorul ansamblului.
Utilități:
-Gaze naturale;
-Energie electrică;
-Apă și canalizare racordate la rețea;
-Internet prin fibră optică.
Progres Construcție
Dezvoltator
Cere detalii prin email
GĂSEȘTI CASA CU CARE CHIAR TE POTRIVEȘTI
GĂSEȘTI CASA CU CARE CHIAR TE POTRIVEȘTI
SERVICIILE NOASTRE
SERVICIILE NOASTRE
CONTACT
-
Sediul central - Timișoara
Bulevardul Victor Babeș nr. 2, 300230, Timișoara, România
Tel: +40.374.40.44.98 / Fax: +40.256.401.179
Email: suport@imobiliare.ro
Luni - Vineri 08:00 - 20:00
-
Punct de lucru - București: Iride Business Park, Bld. Dimitrie
Pompeiu 9-9A, Clădirea B2B,
020335, Sector 2, București, România
CONTACT
-
Sediul central - Timișoara
Bulevardul Victor Babeș nr. 2, 300230, Timișoara, România
Tel: +40.374.40.44.98 / Fax: +40.256.401.179
Email: suport@imobiliare.ro
Luni - Vineri 08:00 - 20:00
-
Punct de lucru - București: Iride Business Park, Bld. Dimitrie
Pompeiu 9-9A, Clădirea B2B,
020335, Sector 2, București, România