4

Apartament Finisaje Superioare I Central

1.250 € / lună

Central, Brașov

Nr. cam.:
3
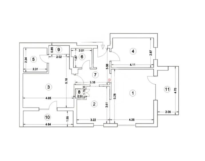
Sup. utilă:
102 mp
Etaj:
2 / 3
An constr.:
2025 (Finalizată)
  • • Locație aproximativă

Descriere apartament

Alpin Real Estate Descopera aceasta proprietate disponibila pentru inchiriere, un apartament cu 3 camere, situata in zona Marzescu, la mica distanta de parcul central. DETALII TEHNICE: - Suprafata utila 85mp + 17mp balcon/terasa - Compartimentare decomandata - Living cu suprafata generoasa si acces la balcon - Bucatarie tip open-space, mobilata si utilata modern - Baie cu dus walkin - Dormitor 1 cu acces din hol - Dormitor matrimonial cu acces la terasa si baie proprie dotata cu cada - Este situat la etaj intermediar, bloc dotat cu lift - Supraveghere video - Acces cu bariera DOTARI: - Incalzire in pardoseala - Televizor smart - Masina de spalat rufe - Masina de spalat vase BENEFICII: - Proprietatea este la prima inchiriere - Finisaje calitative - Suprafata generoasa - Acces facil - Lift - Loc de parcare subteran OFERTA FINANCIARA: - Chiria 1250 Euro I luna + TVA - Contract minim 1 an, se solicita 1 chirie in avans + 1 chirie garantie - Comison 1/2 dintr-o chirie, platibil o singura data Avem cheile proprietatii. Nu se accepta animale de companie. Pentru mai multe detalii sau pentru a programa o vizionare, nu ezitati sa ne contactati. Garantez seriozitate si consultanta personalizata!
Citește mai mult Citește mai puțin
Confort 1 Decomandat Mobilat 1 Balcon / Terasă / Logie Aer condiționat Centrală imobil Încălzire prin pardoseală 1 Parcare

Detalii apartament

ID anunț: XFVO1001V Copiat! 275347210 Copiat!
Actualizat în: 25 Martie 2026
Nr. bucătării: 1
Nr. băi: 2
Structură rezistență: Cărămidă
Tip imobil: Bloc de apartamente
Tip tranzacție: De închiriat prin agent
Regim înălțime: S+P+3E
Nr. terase: 1

Utilități

Pereți
Faianță Tapet Vopsea lavabilă
Podele
Gresie Parchet
Ușă intrare
Metal
Izolații termice
Exterior
Ferestre cu geam termopan
PVC
Contorizare
Apometre Contor căldură Contor gaz
Bucătărie
Mobilată Utilată
Electrocasnice
Aragaz Frigider Hotă Mașină de spălat Mașină spălat vase TV
Diverse
Șemineu Telecomandă poartă acces auto Telecomandă poartă garaj
Alte spații utile
WC Serviciu Terasă
Facilități imobil
Interfon Lift Videointerfon
Utilități
Curent Apă Canalizare CATV Gaze Telefon
Internet
Cablu Wireless
Servicii imobil
Supraveghere video
Amenajare străzi
Iluminat stradal Mijloace de transport în comun Asfaltate
Comision
standard

Disponibilitate proprietate:

Imediat

Puncte de interes

Mijloace transport
bus-station
Statia "Spitalul Marzescu", linia 12,22
Stații autobuz aprox. 39 m
bus-station
Spital Marzescu
Stații autobuz aprox. 115 m
train-station
Gara Brasov Călători CFR
Stații tren aprox. 1803 m
train-station
Statia CFR Brasov
Stații tren aprox. 1820 m
Școală
kindergarten
Gradinita cu program prelungit Nr. 8
Gradinițe aprox. 171 m
school
Scoala generala nr.5
Școli aprox. 274 m
kindergarten
Gradinita 13
Gradinițe aprox. 374 m
university
Corpul A
Universități aprox. 396 m
Recreere
park
Parc
Parcuri aprox. 238 m
sports-ground
Teren sportiv
Terenuri sport aprox. 427 m
supermarket
API Biomania
Supermarket aprox. 492 m
mall
Magazinul Star
Mall aprox. 754 m

Detalii despre preț și costuri

Prețul pe piață

Preț cerut: 1.250 €

Preț min. zonă
Preț max. zonă

i

Proprietate cu prețul cerut în afara intervalului mai multe...

Posibile explicații pentru faptul că prețul proprietății este peste cel maxim: imobil nou cu suprafață mare, are dotări și finisaje de lux.
Bine de știut: prețul unei proprietăți este influențat și de alte caracteristici, cum ar fi: vechime, localizare, vecinătăți, suprafață, compartimentare, amenajări, dotări, etc.
Acces la informații premium după autentificare
Login Gratuit

Proprietăți similare

Apartament cu 3 camere decomandat, mobilat în Drumul Poienii
1.200 € / lună
Brașov, Drumul Poienii
3 camere
129 mp
Etaj 2 / 2
Apartament cu 3 camere decomandat, mobilat în Drumul Poienii
1.200 € / lună
Brașov, Drumul Poienii
3 camere
129 mp
Etaj 2
Apartament cu 3 camere decomandat, mobilat în Drumul Poienii
1.200 € / lună
Brașov, Drumul Poienii
3 camere
129 mp
Etaj 2 / 2

Detalii de contact

Alpin Real Estate

Mircea Danciu Consultant Imobiliar

Alpin Real Estate
PRO

Abonează-te la newsletter să fii primul care primește cele mai noi recomandări de proprietăți și sfaturi de la experți.

CONTACT

Creează alertă

Salvează căutarea ca să primești pe email ultimele anunțuri publicate

Apartamente cu 3 camere de închiriat în zona Central, Brașov