18

Apartament 3 camere inchiriere in Centru, Finisaje High End

1.300 € + TVA / lună

Centrul Istoric, Brașov

Nr. cam.:
3
Sup. utilă:
89 mp
Etaj:
1 / 6
An constr.:
2022 (Finalizată)
  • • Locație aproximativă

Descriere apartament

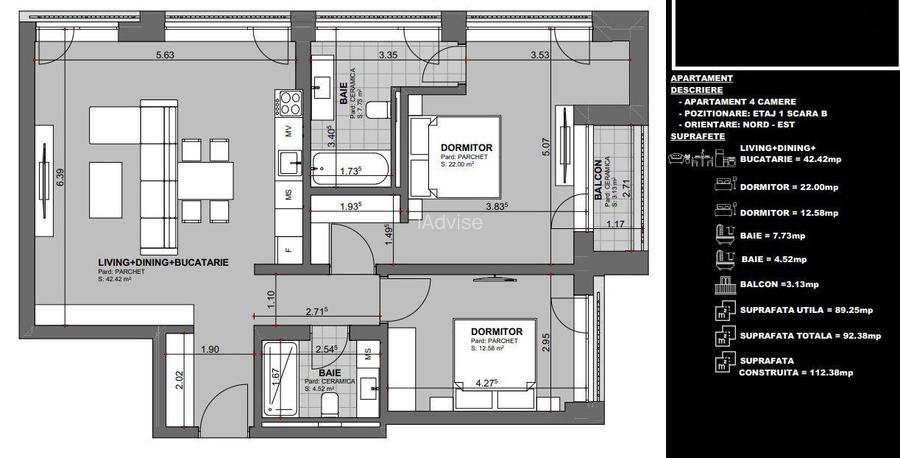
Proprietatea propusa spre inchiriere este situata în inima orașului, la câțiva pași de Centrul Istoric și Centrul Comercial AFI. Descriere Proprietate: Tip compartimentare: Decomandată, cu o compartimentare practică și spații generoase. Design: Suprafațe vitrate ample și finisaje premium, oferind un ambient modern și elegant. Configurație: Living: Zonă de relaxare cu dining și bucătărie open space, perfectă pentru momentele petrecute cu familia sau prietenii. Dormitor matrimonial: Include baie proprie generoasă, zonă de dressing și acces la balcon. Dormitor oaspeți: Ideal pentru vizitatori sau copii. Băi: Două băi complet echipate. Hol: Spațiu de acces eficient și bine organizat. Facilități Incluse: Apartamentul se închiriază complet mobilat și dotat cu aparatură electrocasnică de ultimă generație, conform prezentării. Posibilitate de închiriere a unui loc de parcare subteran (cost suplimentar: 100 EUR/lună). Avantaje: Locație centrală, cu acces rapid la toate punctele de interes din oraș. Design modern și funcțional, ideal pentru confort și relaxare.
Citește mai mult Citește mai puțin
Confort 1 Decomandat Mobilat 1 Balcon / Terasă / Logie Aer condiționat Centrală imobil Încălzire prin pardoseală

Detalii apartament

ID anunț: X6T7101O3 Copiat! 251835359 Copiat!
Actualizat în: 11 Februarie 2026
Suprafață construită: 112 mp
Nr. bucătării: 1
Nr. băi: 2
Structură rezistență: Cărămidă
Tip imobil: Bloc de apartamente
Regim înălțime: P+6E

Utilități

Destinație
Rezidențial
Pereți
Faianță Tapet Vopsea lavabilă
Podele
Gresie Parchet
Ușă intrare
Metal
Izolații termice
Exterior
Ferestre cu geam termopan
PVC
Bucătărie
Mobilată Utilată
Electrocasnice
Aragaz Frigider Hotă Mașină de spălat Mașină spălat vase TV
Diverse
Telecomandă poartă garaj
Alte spații utile
WC Serviciu
Facilități imobil
Interfon Lift Videointerfon
Utilități
Curent Apă Canalizare CATV Gaze Telefon
Internet
Cablu
Servicii imobil
Pază Supraveghere video
Amenajare străzi
Iluminat stradal Mijloace de transport în comun Asfaltate

Disponibilitate proprietate:

Imediat

Puncte de interes

Mijloace transport
bus-station
Sanitas
Stații autobuz aprox. 9 m
bus-station
Statia "sanitas", linia 1,4,34,37,2,31,17,36,6,52,50,50barat,16,51
Stații autobuz aprox. 15 m
train-station
Gara Brasov Călători CFR
Stații tren aprox. 1661 m
train-station
Statia CFR Brasov
Stații tren aprox. 1683 m
Școală
university
Facultatea de Matematica si Informatica. Corp "P"
Universități aprox. 72 m
university
Corp P
Universități aprox. 72 m
school
Scoala Generala Nr. 5
Școli aprox. 77 m
kindergarten
Gradinita 13
Gradinițe aprox. 147 m
Recreere
sports-ground
Teren sportiv
Terenuri sport aprox. 85 m
park
Parc
Parcuri aprox. 143 m
supermarket
API Biomania
Supermarket aprox. 180 m
mall
Magazinul Star
Mall aprox. 678 m

Detalii despre preț și costuri

Prețul pe piață

Preț cerut: 1.300 €

Preț min. zonă
Preț max. zonă

53% dintre proprietățile similare ca zonă și nr. camere au prețul cerut mai mare. mai multe...

Bine de știut: prețul unei proprietăți este influențat și de alte caracteristici, cum ar fi: vechime, localizare, vecinătăți, suprafață, compartimentare, amenajări, dotări, etc. mai puțin...

Insight premium disponibil după login

Proprietăți recomandate

Detalii de contact

iAdvise

Alina Alexa Consultant Imobiliar

4.87(6 review-uri)

iAdvise
PRO

Abonează-te la newsletter să fii primul care primește cele mai noi recomandări de proprietăți și sfaturi de la experți.

CONTACT

Creează alertă

Salvează căutarea ca să primești pe email ultimele anunțuri publicate

Apartamente cu 3 camere de închiriat în zona Centrul Istoric, Brașov