Apartament 2 camere, Scala Frunzisului, 57mp, optional garaj

650 € / lună

Zorilor, Cluj-Napoca

Nr. cam.:
2
Sup. utilă:
57 mp
Etaj:
13 / 14
An constr.:
2022 (Finalizată)
  • • Locație aproximativă

Descriere apartament

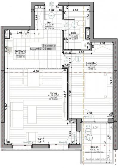
Va propunem spre inchiriere apartament cu 2 camere, situat pe strada Frunzisului, intr-un imobil foarte calitativ, recent finalizat - SCALA Frunzisului. Apartamentul este pozitionat la etajul 13 al imobilului, se desfasoara pe o suprafata generoasa de 57 mp si se ofera complet mobilat si utilat modern. Este compartimentat in living impreuna cu bucataria, 1 dormitor spatios, baie si 1 balcon. Printre dotari, mentionam incalzirea in pardoseala, spatiile de depozitare generoase, instalatia de aer conditionat si tamplaria de aluminiu ce ofera o protectie fonica si termica excelenta. In pretul chiriei este inclus si un loc de parcare in garajul imobilului. Garantia solicitata pentru inchirierea acestui apartament este echivalenta cu 2 luni de chirie. Disponibil incepand cu 01 martie.
Citește mai mult Citește mai puțin
Confort 1 Semidecomandat Mobilat Complet 1 Balcon Curte comună Aer condiționat Centrală proprie Încălzire prin pardoseală

Detalii apartament

ID anunț: XE6J100R9 Copiat! 274758907 Copiat!
Actualizat în: 04 Februarie 2026
Suprafață construită: 65 mp
Nr. bucătării: 1
Nr. băi: 1
Structură rezistență: Cărămidă
Tip imobil: Bloc de apartamente
Regim înălțime: P+14E

Utilități

Destinație
Rezidențial
Pereți
Vopsea lavabilă Faianță
Podele
Parchet Gresie
Ușă intrare
Metal
Uși interior
Lemn
Izolații termice
Bloc izolat termic
Ferestre cu geam termopan
PVC
Contorizare
Apometre Contor gaz
Bucătărie
Mobilată Utilată
Dotări imobil
Interfon Lift
Utilități
Curent Apă Canalizare Gaze CATV
Amenajare străzi
Asfaltate Iluminat stradal Mijloace de transport în comun
Comision
50%

Certificat energetic:

Clasa energetică: A

Vecinătăți:

Lidl, Hotel Golden Tulip

Disponibilitate proprietate:

01.03.2026

Puncte de interes

Mijloace transport
bus-station
Varianta Zorilor
Stații autobuz aprox. 167 m
bus-station
Eugen Lovinescu Est
Stații autobuz aprox. 337 m
tram-station
Statia Gr. Alexandrescu, Linia 6
Stații tramvai aprox. 1508 m
tram-station
Parang
Stații tramvai aprox. 1517 m
Școală
school
Liceul Waldorf
Școli aprox. 457 m
kindergarten
Gradinita Liceului Waldorf
Gradinițe aprox. 529 m
school
Liceul Edmond Nicolau
Școli aprox. 635 m
university
USAMV Cluj-Napoca
Universități aprox. 1317 m
Recreere
supermarket
Lidl
Supermarket aprox. 274 m
sports-ground
Teren sportiv
Terenuri sport aprox. 610 m
park
Parc
Parcuri aprox. 611 m
pub
Old Pub
Pub aprox. 820 m

Detalii despre preț și costuri

Prețul pe piață

Preț cerut: 650 €

Preț min. zonă 440 €
Preț max. zonă 800 €

54% dintre proprietățile similare ca zonă și nr. camere au prețul cerut mai mare. mai multe...

Bine de știut: prețul unei proprietăți este influențat și de alte caracteristici, cum ar fi: vechime, localizare, vecinătăți, suprafață, compartimentare, amenajări, dotări, etc. mai puțin...

Proprietăți similare

Apartament cu 2 camere semidecomandat, mobilat în Zorilor
600 € / lună
Cluj-Napoca, Zorilor
2 camere
47 mp
Etaj 4
Apartament cu 3 camere semidecomandat, mobilat în Zorilor
700 € / lună
Cluj-Napoca, Zorilor
3 camere
72 mp
Parter / 3
Apartament cu 3 camere semidecomandat, mobilat în Zorilor
650 € / lună
Cluj-Napoca, Zorilor
3 camere
70 mp
Etaj 1 / 3

Detalii de contact

Group Axia

Daniel Raducan asociat

5.00(3 review-uri)

Group Axia
PRO

Abonează-te la newsletter să fii primul care primește cele mai noi recomandări de proprietăți și sfaturi de la experți.

CONTACT

Creează alertă

Salvează căutarea ca să primești pe email ultimele anunțuri publicate

Apartamente cu 2 camere de închiriat în zona Zorilor, Cluj-Napoca