3

Apartament 2 camere de inchiriat Aviatiei / Smaranda Braescu

480 € + TVA / lună

Aviației, București

Nr. cam.:
2
Sup. utilă:
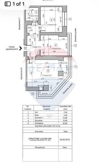
56 mp
Etaj:
3 / 4
An constr.:
1981
  • • Locație aproximativă

Descriere apartament

Va propun spre INCHIRIERE un apartament cu 2 camere, situat in zona Aviatiei/Baneasa Acest apartament este ideal pentru cei care își doresc un stil de viață confortabil, într-o locație centrală, cu acces facil la transportul public, centre comerciale, restaurante și alte facilități urbane. Apartamentul are o suprafata de 56 mp decomandat si se afla la ETAJUL 3 intr-un bloc cu regim de inaltime P+4 Apartamentul este complet mobilat și utilat disponibil din 1 mai. Pentru mai multe informații și programarea unei vizionări, vă invităm să ne contactați!
Citește mai mult Citește mai puțin
Confort 1 Decomandat

Detalii apartament

ID anunț: X44Q103GN Copiat! 275422846 Copiat!
Actualizat în: 09 Aprilie 2026
Suprafață construită: 56 mp
Nr. băi: 1
Tip imobil: Bloc de apartamente
Regim înălțime: P+4E
Perioadă închiriere: Termen lung

Utilități

Amenajare străzi
Iluminat stradal
Comision
standard

Puncte de interes

Mijloace transport
metro-station
Metrorex. Stația Aurel Vlaicu (M2)(1987)
Stații metrou aprox. 480 m
metro-station
Aurel Vlaicu (M2)
Stații metrou aprox. 489 m
bus-station
Carutasilor / Pasajul Aviatiei statie 301, 112
Stații autobuz aprox. 529 m
tram-station
Maguricea
Stații tramvai aprox. 561 m
Școală
kindergarten
Grădinița Pentru Hipoacuzici NR. 65
Gradinițe aprox. 113 m
school
Scoala generala nr.12
Școli aprox. 182 m
kindergarten
Gradinita Miniterra
Gradinițe aprox. 320 m
school
Scoala Generala Nr. 12
Școli aprox. 404 m
Recreere
park
Cimitirul Eroilor Rusi
Parcuri aprox. 280 m
supermarket
Carrefour Market
Supermarket aprox. 284 m
sports-ground
Teren de Tenis
Terenuri sport aprox. 643 m
public-square
Piata Montreal
Piețe publice aprox. 1922 m

Detalii despre preț și costuri

Prețul pe piață

Preț cerut: 480 €

Preț min. zonă
Preț max. zonă

i

Proprietate cu prețul cerut în afara intervalului mai multe...

Posibile explicații pentru faptul că prețul proprietății este sub cel minim: imobil cu risc seismic, imobil cu probleme structurale, imobil demolabil, poziționare în altă zonă
Bine de știut: prețul unei proprietăți este influențat și de alte caracteristici, cum ar fi: vechime, localizare, vecinătăți, suprafață, compartimentare, amenajări, dotări, etc.
Insight premium disponibil după login

Proprietăți similare

Apartament cu 2 camere decomandat în Aviației
470 € / lună
București, Aviației
2 camere
55 mp
Parter / 3
Apartament cu 2 camere decomandat, mobilat în Aviației
500 € / lună
București, Aviației
2 camere
60 mp
Etaj 4 / 8
Apartament cu 2 camere decomandat în Aviației
500 € / lună
București, Aviației
2 camere
62 mp
Etaj 5

Detalii de contact

RE/MAX Properties

Viorica Ombun Sales Associate

RE/MAX Properties
PRO

Abonează-te la newsletter să fii primul care primește cele mai noi recomandări de proprietăți și sfaturi de la experți.

CONTACT

Creează alertă

Salvează căutarea ca să primești pe email ultimele anunțuri publicate

Apartamente cu 2 camere de închiriat în zona Aviației, Sector 1