1

Aviatiei, Caramfil, 2 camere, et.2, 63mp, 750Euro/luna

750 € / lună

Aviației, București

Nr. cam.:
2
Sup. utilă:
58 mp
Etaj:
2
An constr.:
2016
  • • Locație exactă

Descriere apartament

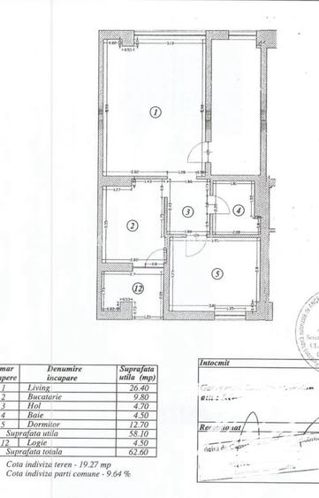
Aviatiei, Caramfil, inchiriere apartament 2 camere, et.2, 58mp utili, 63mp construiti, compus din: living generos in suprafata de 26,40mp, dormitoar, bucatarie, o baie cu cada, hol, logie. Apartamentul este complet mobilat si utilat, este recent zugravit si igienizat, detine finisaje de calitate, blocul este curat, construit in 2016 si este supravegheat video. Este pozitionat la 5 minute de parcul Herastrau in zona de cafenele si restaurante, 2 min.STB, restaurant Mandaloun, clinici, gradinite. Imbunatatiri: geamuri tripan, parchet, gresie si faianta Italia, usa metalica, ap. aer conditionat. Se inchiriaza pt locuit sau birouri. Pret inchiriere 750Euro/luna
Citește mai mult Citește mai puțin
Confort 1 Decomandat Mobilat 1 Balcon / Terasă / Logie Aer condiționat Centrală imobil Încălzire prin pardoseală Renovat

Detalii apartament

ID anunț: XFV30000O Copiat! 270493994 Copiat!
Actualizat în: 11 Martie 2026
Suprafață utilă totală: 63 mp
Nr. bucătării: 1
Nr. băi: 1
Structură rezistență: Beton
Tip imobil: Bloc de apartamente
Regim înălțime: D+P+3E

Utilități

Destinație
Rezidențial Birouri
Pereți
Vopsea lavabilă Faianță
Podele
Gresie Parchet
Rulouri/Obloane
Aluminiu
Ușă intrare
Metal
Uși interior
Lemn
Izolații termice
Exterior Interior
Ferestre cu geam termopan
Aluminiu
Contorizare
Contor căldură Contor gaz Apometre
Bucătărie
Mobilată Utilată
Electrocasnice
Hi-Fi Mașină de spălat Sandwich-maker Frigider Cuptor microunde Aragaz Hotă Aspirator
Diverse
Senzor de fum Sistem de alarmă
Alte spații utile
WC Serviciu
Facilități imobil
Interfon
Utilități
Curent Apă Canalizare Gaze CATV
Internet
Cablu Wireless
Servicii imobil
Administrare Supraveghere video
Amenajare străzi
Asfaltate Iluminat stradal Mijloace de transport în comun
Comision
50%

Puncte de interes

Mijloace transport
bus-station
Carutasilor / Pasajul Aviatiei statie 301, 112
Stații autobuz aprox. 238 m
bus-station
Pasaj Baneasa statie 605, 5
Stații autobuz aprox. 383 m
tram-station
Maguricea
Stații tramvai aprox. 539 m
metro-station
Metrorex. Stația Aurel Vlaicu (M2)(1987)
Stații metrou aprox. 1050 m
Școală
kindergarten
Grădinița Mary Poppins
Gradinițe aprox. 112 m
kindergarten
Gradinita Miniterra
Gradinițe aprox. 565 m
school
Scoala primara si gimnaziala MEA
Școli aprox. 652 m
university
Școala Superioară de Aviație Civilă - S.S.Av.C.
Universități aprox. 1291 m
Recreere
park
Parc
Parcuri aprox. 163 m
supermarket
ART Business Center 5
Supermarket aprox. 347 m
sports-ground
Teren sportiv
Terenuri sport aprox. 564 m
public-square
Piata Montreal
Piețe publice aprox. 1868 m

Detalii despre preț și costuri

Prețul pe piață

Preț cerut: 750 €

Preț min. zonă 550 €
Preț max. zonă 1.100 €

61% dintre proprietățile similare ca zonă și nr. camere au prețul cerut mai mare. mai multe...

Bine de știut: prețul unei proprietăți este influențat și de alte caracteristici, cum ar fi: vechime, localizare, vecinătăți, suprafață, compartimentare, amenajări, dotări, etc. mai puțin...

Proprietăți recomandate

Detalii de contact

April Real Estate

Catalina Georgiana Nedelcu Managing partner

April Real Estate

Abonează-te la newsletter să fii primul care primește cele mai noi recomandări de proprietăți și sfaturi de la experți.

CONTACT

Creează alertă

Salvează căutarea ca să primești pe email ultimele anunțuri publicate

Apartamente cu 2 camere de închiriat în zona Aviației, Sector 1