Duplex superb, 150 mp - Aviatiei

3.630 € / lună

Aviației, București

Nr. cam.:
3
Sup. utilă:
148 mp
Etaj:
11 / 12
An constr.:
2024 (Finalizată)
  • • Locație aproximativă
  • • Vizionare prin apel video

Descriere apartament

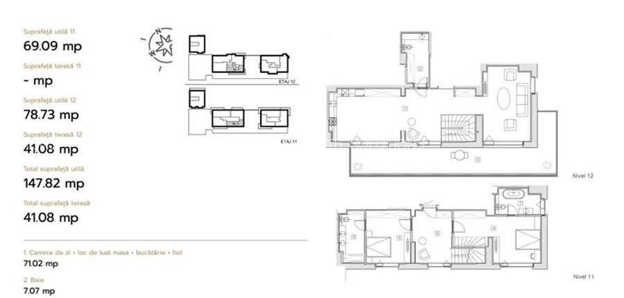
Descopera un duplex spectaculos, cu 3 camere, situat in zona premium Aviatiei, la etajele 11 si 12 ale unui imobil nou, aflat la prima inchiriere, ce impresioneaza prin design-ul modern, spatiile vitrate generoase si finisajele de cea mai inalta calitate. Cu o suprafata utila de 148 mp, aceasta proprietate redefineste conceptul de confort urban. Zona de zi, amplasata la etajul superior, este cu adevarat impresionanta - un open space amplu de 71.02 mp ce imbina armonios living-ul, zona de dining, bucataria si holul. Design-ul minimalist, liniile curate si lumina naturala abundenta creeaza un ambient elegant si relaxant, perfect atat pentru momentele de zi cu zi, cat si pentru socializare. Bucataria este integrata *******, cu finisaje premium si detalii atent executate. Terasa superba de 41.08 mp completeaza perfect acest nivel, oferind o panorama deschisa asupra orasului si un spatiu ideal pentru relaxare sau petrecerea timpului liber. Zona de noapte este inteligent separata si situata la etajul inferior, oferind intimitate si confort. Aici regasim doua dormitoare spatioase si luminoase, gandite pentru odihna, precum si bai moderne, finisate la standarde inalte. Compartimentarea este urmatoarea: -Camera de zi + loc de luat masa + bucatarie + hol: 71.02 mp -Baie: 7.07 mp -Balcon Terasa: 41.08 mp -Dormitor 1: 22.71 mp -Dormitor 2: 15.12 mp -Baie: 7.91 mp -Baie: 6.94 mp -Scara + hol: 16.41 mp Fiecare detaliu al acestui duplex reflecta rafinament si functionalitate, de la scara interioara eleganta pana la materialele premium utilizate in amenajare. Spatiile largi, compartimentarea eficienta si privelistea deschisa transforma aceasta locuinta intr-un camin cu adevarat special. Zona Aviatiei este una dintre cele mai apreciate din Bucuresti, oferind acces rapid catre centrele de business din nord, restaurante, cafenele si zone de recreere. In apropiere se afla Parcul Herastrau, ideal pentru relaxare, sport sau plimbari in aer liber, iar conexiunile excelente cu restul orasului adauga un plus de valoare acestei proprietati. Disponibil imediat spre inchiriere, acest duplex este alegerea perfecta pentru cei care cauta un stil de viata modern, intr-o locatie de top. Pret : 3000 euro + TVA ID intern: NEO .
Citește mai mult Citește mai puțin
Decomandat Lux Încălzire prin pardoseală

Detalii apartament

ID anunț: X71S101OM Copiat! 275296958 Copiat!
Actualizat în: 29 Aprilie 2026
Suprafață utilă totală: 148 mp
Suprafață construită: 190 mp
Nr. bucătării: 1
Nr. băi: 3
Structură rezistență: Altele
Tip imobil: Bloc de apartamente
Regim înălțime: P+12E
Perioadă închiriere: Termen lung

Utilități

Destinație
Rezidențial
Pereți
Faianță Vopsea lavabilă
Podele
Parchet Gresie
Ușă intrare
Metal
Izolații termice
Exterior Interior
Bucătărie
Utilată Mobilată
Electrocasnice
Aragaz Hotă Frigider Cuptor microunde Hotă Mașină de spălat
Alte spații utile
WC Serviciu Terasă
Facilități imobil
Lift Videointerfon
Servicii imobil
Menaj Administrare Pază
Amenajare străzi
Asfaltate Iluminat stradal Mijloace de transport în comun

Vecinătăți:

Scoala/gradinita, Restaurant/pub, Mall, Parc, Hotel, Benzinarie, Intersectie circulata, Supermarket, Banca, Zona comerciala, Autobuz, Metrou

Puncte de interes

Mijloace transport
tram-station
Electronica
Stații tramvai aprox. 26 m
tram-station
Statia Electronica, linia 16,36
Stații tramvai aprox. 63 m
metro-station
Pipera (M2)
Stații metrou aprox. 105 m
bus-station
Rocin
Stații autobuz aprox. 522 m
Școală
school
Colegiul Tehnic Edmond Nicolau, fostul Electronica
Școli aprox. 592 m
school
Grupul Scolar Industrial Constantin Brancusi (en)
Școli aprox. 674 m
kindergarten
Gradinita SOS Satul Copiilor
Gradinițe aprox. 1166 m
kindergarten
Gradinita nr. 7
Gradinițe aprox. 1419 m
Recreere
restaurant
Chinezesc
Restaurant aprox. 88 m
supermarket
Carrefour
Supermarket aprox. 100 m
park
Parc
Parcuri aprox. 360 m
sports-ground
Teren sportiv
Terenuri sport aprox. 796 m

Detalii despre preț și costuri

Prețul pe piață

Preț cerut: 4.392 €

Preț min. zonă
Preț max. zonă

i

Proprietate cu prețul cerut în afara intervalului mai multe...

Posibile explicații pentru faptul că prețul proprietății este peste cel maxim: imobil nou cu suprafață mare, are dotări și finisaje de lux.
Bine de știut: prețul unei proprietăți este influențat și de alte caracteristici, cum ar fi: vechime, localizare, vecinătăți, suprafață, compartimentare, amenajări, dotări, etc.
Insight premium disponibil după login

Proprietăți similare

Apartament cu 5 camere semidecomandat în Aviației
2.700 € / lună
București, Aviației
5 camere
202 mp
Etaj 5
Apartament cu 3 camere decomandat, mobilat în Aviației
3.200 € / lună
București, Aviației
3 camere
120 mp
Etaj 11 / 12
Apartament cu 5 camere decomandat, mobilat în Aviației
3.200 € / lună
București, Aviației
5 camere
240 mp
Etaj 3

Detalii de contact

NEOCASA REAL ESTATE SOLUTIONS

Suport Clienti Consultant Imobiliar

NEOCASA REAL ESTATE SOLUTIONS
PRO

Abonează-te la newsletter să fii primul care primește cele mai noi recomandări de proprietăți și sfaturi de la experți.

CONTACT

Creează alertă

Salvează căutarea ca să primești pe email ultimele anunțuri publicate

Apartamente cu 3 camere de închiriat în zona Aviației, Sector 1