2

Apartament de inchiriat 3 camere, vedere spectaculoasa, zona Floreasca, Bucurest

2.500 € / lună

Floreasca, București

Nr. cam.:
3
Sup. utilă:
92 mp
Etaj:
6 / 18
An constr.:
2021 (Finalizată)
  • • Locație aproximativă

Descriere apartament

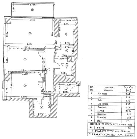
Apartamentul este situat la etajul al 6-lea al unui imobil din 2021, aflat in zona Floreasca, oferind acces catre numeroase puncte de interes. In proximitate se gasesc Parcul Floreasca, Primaverii, Calea Floreasca, Lacul Floreasca, Piata Dorobanti si Mall Promenada. Descriere: Apartament cu 2 dormitoare si terasa, situat in complex exclusivist in zona Bulevardului Mircea Eliade – Floreasca. Aceasta locatie beneficiaza de acces rapid catre Parcul Floreasca, oferind un cadru ideal pentru un stil de viata urban, dar relaxant. Detalii apartament: - etaj 6: oferind vedere spectaculoasa; - compartimentare: apartamentul este format dintr-un hol de intrare, un living generos, o bucatarie semi-inchisa moderna, 2 bai, terasa cu o suprafata de 11,2 mp si 2 dormitoare spatioase. Compartimentarile interioare sunt realizate astfel incat sa ofere multiple zone de depozitare, maximizand confortul locatarilor. Finisaje si facilitati: - finisaje premium: apartamentul beneficiaza de finisaje de calitate superioara, oferind un ambient elegant si confortabil; - mobilier si electrocasnice: mobilat cu bun gust si utilat cu electrocasnice de ultima generatie, pentru un confort sporit. Suprafata utila totala 103,36 mp Suprafata terasa: 11,2 mp Nr camere: 3 Bai: 2 Bucatarie: 1 Parcare: 1 (subteran)
Citește mai mult Citește mai puțin
Confort lux Decomandat 1 Balcon / Terasă / Logie 1 Parcare 1 Garaj

Detalii apartament

ID anunț: X3RN001O7 Copiat! 261309109 Copiat!
Actualizat în: 18 Februarie 2026
Suprafață utilă totală: 103 mp
Suprafață construită: 116 mp
Nr. bucătării: 1
Nr. băi: 2
Structură rezistență: Beton
Tip imobil: Bloc de apartamente
Regim înălțime: S+P+18E

Utilități

Destinație
Rezidențial
Comision
Standard

Vecinătăți:

Parcul Floreasca
Primaverii
Calea Floreasca
Lacul Floreasca
Piata Dorobanti
Mall Promenada

Puncte de interes

Mijloace transport
bus-station
Statia Calea Floreasca / Ceaikovski / Mircea Eliade, linia 135, 182, 282, N119, N123
Stații autobuz aprox. 211 m
tram-station
Ceaikovski
Stații tramvai aprox. 614 m
metro-station
Piata Aviatorilor (M2)
Stații metrou aprox. 1111 m
trolleybus-station
Statia Calea Dorobantilor; Liniile:79, 86,
Stații troleibuz aprox. 1847 m
Școală
school
Gradinita Floreasca Rahmaninov
Școli aprox. 204 m
kindergarten
Paradisul Copiilor
Gradinițe aprox. 219 m
school
ȘCOALA CU CLASELE I-VIII NR. 10
Școli aprox. 368 m
university
Universitatea Atenaeum
Universități aprox. 467 m
Recreere
park
Automatica Park (en)
Parcuri aprox. 159 m
supermarket
Nic Dorobanti Non-Stop
Supermarket aprox. 573 m
sports-ground
Teren sportiv
Terenuri sport aprox. 662 m
mall
"METROPLIS CENTER"
Mall aprox. 1326 m

Detalii despre preț și costuri

Prețul pe piață

Preț cerut: 2.500 €

Preț min. zonă
Preț max. zonă

59% dintre proprietățile similare ca zonă și nr. camere au prețul cerut mai mare. mai multe...

Bine de știut: prețul unei proprietăți este influențat și de alte caracteristici, cum ar fi: vechime, localizare, vecinătăți, suprafață, compartimentare, amenajări, dotări, etc. mai puțin...

Insight premium disponibil după login

Proprietăți recomandate

Detalii de contact

REGATTA

Ana-Maria Popescu Real Estate Broker Residential Department

REGATTA
PRO

Abonează-te la newsletter să fii primul care primește cele mai noi recomandări de proprietăți și sfaturi de la experți.

CONTACT

Creează alertă

Salvează căutarea ca să primești pe email ultimele anunțuri publicate

Apartamente cu 3 camere de închiriat în zona Floreasca, Sector 1