Apartament superb 2 camere - loc parcare inclus, terasa 60 mp

1.150 € / lună

Floreasca, București

Nr. cam.:
2
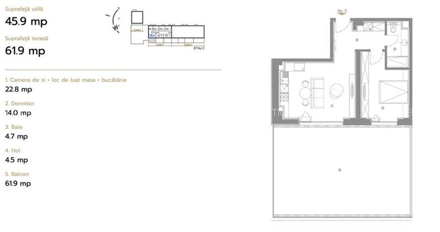
Sup. utilă:
46 mp
Etaj:
2 / 11
An constr.:
2024 (Finalizată)
  • • Locație aproximativă
  • • Vizionare prin apel video

Descriere apartament

Descopera un apartament superb, luminos si elegant, situat in una dintre cele mai dorite zone din nordul Capitalei - Floreasca. Amplasat la etajul 2 al unui imobil nou, cu arhitectura moderna si finisaje premium, acest apartament imbina perfect confortul cu rafinamentul si este disponibil pentru inchiriere la pretul de 1150 euro luna. Locuinta impresioneaza prin luminozitatea naturala generoasa, datorita suprafetelor vitrate ample si accesului catre o terasa spectaculoasa de 62 mp - un spatiu ideal pentru relaxare, dining in aer liber sau amenajarea unui colt verde privat. Terasa devine o adevarata extensie a zonei de living, oferind intimitate si versatilitate. Interiorul este amenajat cu mobilier de cea mai buna calitate, ales cu grija pentru a crea un ambient modern, cald si echilibrat. Living-ul spatios, cu design minimalist si finisaje premium, se imbina armonios cu zona de dining si bucataria complet utilata. Apartamentul dispune de loc de parcare subteran inclus, oferind un plus de confort si siguranta. Pozitionarea excelenta in zona Floreasca asigura acces rapid catre restaurante, cafenele, parcuri, centre de business si mijloace de transport, pastrand in acelasi timp linistea unei zone exclusiviste. O proprietate ideala pentru cei care cauta un stil de viata modern, elegant si confortabil, intr-o locatie premium. ID intern: NEO .
Citește mai mult Citește mai puțin
Decomandat Mobilat Lux Încălzire prin pardoseală 1 Parcare Renovat

Detalii apartament

ID anunț: X71S101O6 Copiat! 275165729 Copiat!
Actualizat în: 02 Martie 2026
Suprafață utilă totală: 46 mp
Suprafață construită: 108 mp
Nr. bucătării: 1
Nr. băi: 1
Structură rezistență: Altele
Tip imobil: Bloc de apartamente
Regim înălțime: P+11E

Utilități

Destinație
Rezidențial
Pereți
Vopsea lavabilă
Podele
Parchet Gresie
Ușă intrare
Metal
Uși interior
PVC
Izolații termice
Exterior Interior
Bucătărie
Utilată Mobilată
Electrocasnice
Aragaz Hotă Frigider TV Hotă
Alte spații utile
Terasă
Facilități imobil
Lift Videointerfon
Servicii imobil
Menaj Administrare Pază
Amenajare străzi
Asfaltate Iluminat stradal

Vecinătăți:

Scoala/gradinita, Restaurant/pub, Mall, Hotel, Piata, Benzinarie, Intersectie circulata, Fastfood, Supermarket, Banca, Zona comerciala, Autobuz, Metrou

Puncte de interes

Mijloace transport
tram-station
Electronica
Stații tramvai aprox. 26 m
tram-station
Statia Electronica, linia 16,36
Stații tramvai aprox. 63 m
metro-station
Pipera (M2)
Stații metrou aprox. 105 m
bus-station
Rocin
Stații autobuz aprox. 522 m
Școală
school
Colegiul Tehnic Edmond Nicolau, fostul Electronica
Școli aprox. 592 m
school
Grupul Scolar Industrial Constantin Brancusi (en)
Școli aprox. 674 m
kindergarten
Gradinita SOS Satul Copiilor
Gradinițe aprox. 1166 m
kindergarten
Gradinita nr. 7
Gradinițe aprox. 1419 m
Recreere
restaurant
Chinezesc
Restaurant aprox. 88 m
supermarket
Carrefour
Supermarket aprox. 100 m
park
Parc
Parcuri aprox. 360 m
sports-ground
Teren sportiv
Terenuri sport aprox. 796 m

Detalii despre preț și costuri

Prețul pe piață

Preț cerut: 1.150 €

Preț min. zonă 499 €
Preț max. zonă 1.500 €

58% dintre proprietățile similare ca zonă și nr. camere au prețul cerut mai mare. mai multe...

Bine de știut: prețul unei proprietăți este influențat și de alte caracteristici, cum ar fi: vechime, localizare, vecinătăți, suprafață, compartimentare, amenajări, dotări, etc. mai puțin...

Proprietăți similare

Apartament cu 2 camere semidecomandat, mobilat în Floreasca
1.200 € + TVA / lună
București, Floreasca
2 camere
62 mp
Etaj 15 / 20
Apartament cu 2 camere decomandat, mobilat în Floreasca
1.200 € / lună
București, Floreasca
2 camere
65 mp
Etaj 5 / 20
Apartament cu 2 camere semidecomandat, mobilat în Floreasca
1.100 € / lună
București, Floreasca
2 camere
56 mp
Etaj 3 / 9

Detalii de contact

NEOCASA REAL ESTATE SOLUTIONS

Suport Clienti Consultant Imobiliar

NEOCASA REAL ESTATE SOLUTIONS
PRO

Abonează-te la newsletter să fii primul care primește cele mai noi recomandări de proprietăți și sfaturi de la experți.

CONTACT

Creează alertă

Salvează căutarea ca să primești pe email ultimele anunțuri publicate

Apartamente cu 2 camere de închiriat în zona Floreasca, Sector 1