1

LUX - 3 camere - One Verdi Park - parcare subterana

2.100 € + TVA / lună

Floreasca, București

Nr. cam.:
3
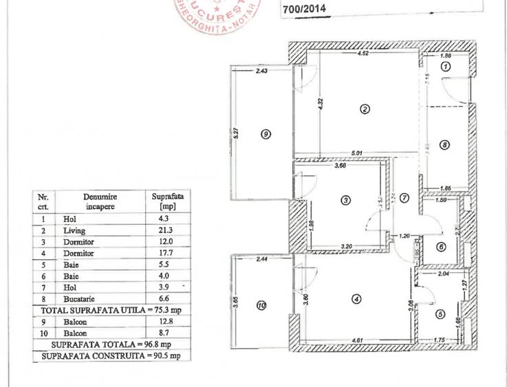
Sup. utilă:
75,3 mp
Etaj:
4 / 20
An constr.:
2023 (Finalizată)
  • • Locație exactă

Descriere apartament

Acest apartament de 3 camere din One Verdi Park iti ofera un spatiu modern, luminos si confortabil. Este complet mobilat si utilat, gandit pentru cine isi doreste calitate si un stil de viata echilibrat intr-unul dintre cele mai apreciate ansambluri din Bucuresti. Ai la dispozitie un living amplu, cu mobilier de designer si TV smart. Bucataria open space este complet echipata cu electrocasnice incorporate. Locuinta include doua dormitoare mobilate complet, cu zone de depozitare bine organizate. Cele doua bai moderne iti ofera tot confortul de care ai nevoie, una cu cada, cealalta cu dus. Ai masina de spalat rufe, sistem de climatizare si finisaje premium. Balconul generos iti extinde spatiul de relaxare. One Verdi Park este unul dintre cele mai moderne proiecte rezidentiale din Capitala, dezvoltat de One United Properties. Complexul este format din doua turnuri elegante, amplasate langa lacul Tei si la cativa pasi de parcul Verdi si zonele de interes din nordul Bucurestiului. Facilitati ale ansamblului Acces securizat 24/7 Receptie eleganta si lobby modern Parc privat si zone verzi ingrijite Acces rapid la restaurante, cafenele, Promenada Mall, scoli si transport public Comision chirias: 50% din prima luna de chirie. Locul de parcare subteran este inclus in pret. Pentru mai multe informatii te asteptam sa ne contactezi.
Citește mai mult Citește mai puțin
Confort lux Decomandat Mobilat Lux 2 Balcoane / Terase / Logii Aer condiționat Ventiloconvectoare Centrală imobil Încălzire prin pardoseală 1 Garaj

Detalii apartament

ID anunț: XCGD100LS Copiat! 272296516 Copiat!
Actualizat în: 22 Noiembrie 2025
Suprafață construită: 100 mp
Nr. bucătării: 1
Nr. băi: 2
Tip imobil: Bloc de apartamente
Regim înălțime: S+P+20E

Utilități

Destinație
Rezidențial
Pereți
Vopsea lavabilă
Podele
Parchet Gresie
Ușă intrare
Metal
Uși interior
Celulare
Izolații termice
Exterior
Ferestre cu geam termopan
Aluminiu
Contorizare
Apometre Contor căldură
Bucătărie
Mobilată Utilată
Electrocasnice
Mașină de spălat Frigider Aragaz Mașină spălat vase Hotă
Diverse
Senzor de fum Sistem de alarmă Telecomandă poartă acces auto
Facilități imobil
Videointerfon Lift
Utilități
Curent Apă Canalizare Gaze CATV
Amenajare străzi
Asfaltate Iluminat stradal Mijloace de transport în comun
Comision
standard

Certificat energetic:

Clasa energetică: A

Disponibilitate proprietate:

imediat

Puncte de interes

Mijloace transport
tram-station
Giuseppe Verdi
Stații tramvai aprox. 48 m
bus-station
Statia Ancuta Baneasa, linia 135, N119
Stații autobuz aprox. 506 m
metro-station
Aurel Vlaicu (M2)
Stații metrou aprox. 1386 m
trolleybus-station
Statia Doamna Ghica, linia 66
Stații troleibuz aprox. 1947 m
Școală
school
LICEUL TEORETIC "C.A. ROSETTI"
Școli aprox. 352 m
school
Liceul C.A. Rosetti
Școli aprox. 352 m
kindergarten
Gradinita nr. 7
Gradinițe aprox. 436 m
university
Athenaeum University (en)
Universități aprox. 917 m
Recreere
park
Parcul Verdi
Parcuri aprox. 242 m
sports-ground
Teren sportiv
Terenuri sport aprox. 299 m
restaurant
Pescariu Sports & Spa - .pescariusports.ro (en)
Restaurant aprox. 306 m
supermarket
BILLA - B. Vacarescu
Supermarket aprox. 491 m

Detalii despre preț și costuri

Prețul pe piață

Preț cerut: 2.100 €

Preț min. zonă 750 €
Preț max. zonă 3.500 €

59% dintre proprietățile similare ca zonă și nr. camere au prețul cerut mai mare. mai multe...

Bine de știut: prețul unei proprietăți este influențat și de alte caracteristici, cum ar fi: vechime, localizare, vecinătăți, suprafață, compartimentare, amenajări, dotări, etc. mai puțin...

Proprietăți recomandate

Detalii de contact

Abonează-te la newsletter să fii primul care primește cele mai noi recomandări de proprietăți și sfaturi de la experți.

CONTACT

Creează alertă

Salvează căutarea ca să primești pe email ultimele anunțuri publicate

Apartamente cu 3 camere de închiriat în zona Floreasca, Sector 1