2

REA0130911 Apartament 3 camere I Cartierul Francez I Herastrau

1.400 € / lună

Herăstrău, București

Nr. cam.:
3
Sup. utilă:
95 mp
Etaj:
1 / 5
An constr.:
2000 (Finalizată)
  • • Locație aproximativă
  • • Vizionare prin apel video

Descriere apartament

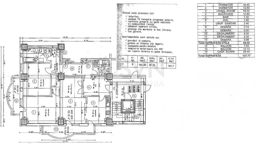
SVN Romania va propune spre inchiriere un apartament situat in zona Cartierul Francez, una dintre cele mai exclusiviste si apreciate zone rezidentiale din nordul Bucurestiului. Apartamentul este amplasat la etajul 1 din 5 si are o suprafata utila de 95,58 mp, la care se adauga doua balcoane generoase de 10,12 mp si 7,63 mp. Locuinta este compartimentata eficient si dispune de trei dormitoare, o bucatarie, doua bai si multiple spatii de depozitare, ceea ce o face potrivita pentru o familie sau pentru persoane care isi doresc un spatiu generos si bine organizat. Apartamentul beneficiaza de centrala termica proprie si se inchiriaza exact asa cum este prezentat in fotografii, complet mobilat si utilat, fiind pregatit pentru mutare imediata. In pretul chiriei este inclus si un loc de parcare, un avantaj important pentru aceasta zona. Zona Cartierul Francez este una dintre cele mai cautate din Bucuresti, datorita accesului rapid catre Parcul Herastrau, aflat la aproximativ 5 minute de mers pe jos. In apropiere se regasesc numeroase restaurante si cafenele apreciate, precum si centre de fitness, supermarketuri si farmacii. De asemenea, zona beneficiaza de acces rapid catre scoli si gradinite internationale, clinici medicale private si multiple mijloace de transport in comun. Pentru alte detalii sau stabilirea unei vizionari contactul meu va sta la dispozitie. ***Vizionarea acestui imobil se face doar în baza semnarii unui acord de vizionare conform codului civil, art 2.096-2.102.
Citește mai mult Citește mai puțin
Confort 1 Decomandat Acceptă animale de companie Mobilat 2 Balcoane / Terase / Logii Aer condiționat Calorifere Centrală proprie Beci 1 Parcare

Detalii apartament

ID anunț: X658006H1 Copiat! 275265692 Copiat!
Actualizat în: 12 Martie 2026
Suprafață utilă totală: 112 mp
Suprafață construită: 137 mp
Nr. bucătării: 1
Nr. băi: 2
Structură rezistență: Beton
Tip imobil: Bloc de apartamente
Regim înălțime: P+5E

Utilități

Destinație
Rezidențial
Pereți
Faianță
Podele
Gresie Parchet
Ferestre cu geam termopan
PVC
Contorizare
Contor căldură Apometre
Bucătărie
Mobilată
Diverse
Sistem de alarmă
Alte spații utile
WC Serviciu
Facilități imobil
Interfon Lift
Utilități
Gaze Telefon internațional CATV Curent
Internet
Cablu Fibră optică Wireless
Servicii imobil
Supraveghere video Pază
Comision
Standard

Vicii:

Fără vicii.

Disponibilitate proprietate:

Disponibil din 12/03/2026.

Puncte de interes

Mijloace transport
bus-station
Carutasilor / Pasajul Aviatiei statie 301, 112
Stații autobuz aprox. 220 m
tram-station
Maguricea
Stații tramvai aprox. 431 m
bus-station
Maguricea statie 605, 5
Stații autobuz aprox. 449 m
metro-station
Metrorex. Stația Aurel Vlaicu (M2)(1987)
Stații metrou aprox. 699 m
Școală
kindergarten
Grădinița Pentru Hipoacuzici NR. 65
Gradinițe aprox. 231 m
kindergarten
Gradinita Miniterra
Gradinițe aprox. 260 m
school
Scoala generala nr.12
Școli aprox. 451 m
university
Școala Superioară de Aviație Civilă - S.S.Av.C.
Universități aprox. 1678 m
Recreere
supermarket
Carrefour Market
Supermarket aprox. 22 m
park
Parc
Parcuri aprox. 116 m
sports-ground
Teren de Tenis
Terenuri sport aprox. 610 m
public-square
Piata Montreal
Piețe publice aprox. 1881 m

Detalii despre preț și costuri

Prețul pe piață

Preț cerut: 1.400 €

Preț min. zonă 1.000 €
Preț max. zonă 2.900 €

55% dintre proprietățile similare ca zonă și nr. camere au prețul cerut mai mare. mai multe...

Bine de știut: prețul unei proprietăți este influențat și de alte caracteristici, cum ar fi: vechime, localizare, vecinătăți, suprafață, compartimentare, amenajări, dotări, etc. mai puțin...

Proprietăți similare

Apartament cu 3 camere semidecomandat, mobilat în Herăstrău
1.300 € / lună
București, Herăstrău
3 camere
89 mp
Parter
Apartament cu 3 camere decomandat, mobilat în Herăstrău
1.500 € / lună
București, Herăstrău
3 camere
113 mp
Etaj 1 / 5
Apartament cu 3 camere decomandat, mobilat în Herăstrău
1.500 € / lună
București, Herăstrău
3 camere
84 mp
Etaj 2

Detalii de contact

SVN Romania | Residentialist | Victoriei

Anamaria Enoiu Associated Advisor

SVN Romania | Residentialist | Victoriei
PRO

Abonează-te la newsletter să fii primul care primește cele mai noi recomandări de proprietăți și sfaturi de la experți.

CONTACT

Creează alertă

Salvează căutarea ca să primești pe email ultimele anunțuri publicate

Apartamente cu 3 camere de închiriat în zona Herăstrău, Sector 1