****LUXURY APARTMENT | HERASTRAU AREA

3.700 € / lună

Herăstrău, București

Nr. cam.:
4
Sup. utilă:
131,36 mp
Etaj:
5 / 11
An constr.:
2018 (Finalizată)
  • • Locație aproximativă

Descriere apartament

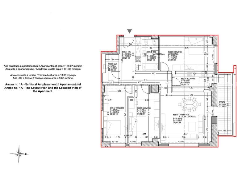
Imobiliare Herastrau va prezinta un ansamblu rezidential cu personalitate puternica , ce defineste luxul la cel mai inalt nivel, reprezentand imbinarea cu rafinament a stilului, a comfortului si a artei. Situata la numai 150m de Parcul Herastrau si de Cartierul Francez, in cea mai exclusivista zona din Bucuresti, aceasta locatie depaseste ideea unei cladiri cu apartamente de lux, aducand o noua inseamnatate conceptului de ansamblu rezidential. Cu o intindere pe o suprafata de 35.000 mp, avand 97 apartamente si 210 locuri de parcare, este un proiect de referinta in partea de nord a capitalei. Proiectul a fost conceput pentru a oferi cele mai inalte standarde si facilitati, in asa fel incat locatarii sa aibe parte de un trai cat mai linistit posibil. Personalul va asigura rezolvarea problemelor de home management, rezervari la restaurant, acces VIP, cereri urgente, astfel incat sa asigure comfortul si siguranta locatarilor. Etajul 1 este dotat cu piscina si SPA, cu sala de fitness si loc de joaca pentru copii. Pe langa serviciile unui hotel de 5 stele pe care le ofera acest nou proiect inedit, locatarii beneficiaza si de o zona comerciala, compatibila nevoilor lor adiacente: dry cleaning, salon de infrumusetare, crama, banca, cafenele, etc. Apartamentele au fost concepute in asa fel, incat sa se adapteze diferitelor preferinte sau nevoi ale locatarilor. Apartamentul, cu o suprafata utila de 131.36 mp, are 4 camere, dintre care trei dormitoare spatioase, un living & dining care masoara 31.85 mp, bucataria practica si suficienta si cele 2 bai bine dotate. Certificat Energetic - Clasa A.
Citește mai mult Citește mai puțin
Confort lux Decomandat Lux Grădină Piscină Aer condiționat Centrală imobil Încălzire prin pardoseală

Detalii apartament

ID anunț: X2F710917 Copiat! 275128732 Copiat!
Actualizat în: 17 Martie 2026
Suprafață construită: 172.12 mp
Nr. bucătării: 1
Nr. băi: 2
Structură rezistență: Beton
Tip imobil: Bloc de apartamente
Regim înălțime: S+P+11E
Nr. terase: 1

Utilități

Destinație
Rezidențial
Pereți
Faianță Vopsea lavabilă
Podele
Gresie Parchet
Ușă intrare
Metal
Izolații termice
Exterior Interior
Ferestre cu geam termopan
Aluminiu
Contorizare
Apometre Contor căldură
Bucătărie
Mobilată Utilată
Electrocasnice
Aragaz Frigider Hotă Mașină de spălat Mașină spălat vase TV
Diverse
Telecomandă poartă garaj
Alte spații utile
WC Serviciu Terasă
Facilități imobil
Lift
Utilități
Curent Apă Canalizare CATV Gaze Telefon
Internet
Cablu Wireless
Servicii imobil
Pază Supraveghere video
Amenajare străzi
Iluminat stradal Mijloace de transport în comun Asfaltate
Comision
standard

Vecinătăți:

Parcul Herastrau,Satul Francez

Disponibilitate proprietate:

imediat

Puncte de interes

Mijloace transport
tram-station
Apicola
Stații tramvai aprox. 216 m
bus-station
statie Apicola 605, 301, 112
Stații autobuz aprox. 270 m
metro-station
Metrorex. Stația Aurel Vlaicu (M2)(1987)
Stații metrou aprox. 1560 m
airport
Aeroportul Internațional Băneasa (Aurel Vlaicu) - LRBS (BBU)
Aeroporturi aprox. 1779 m
Școală
school
Grupul Scolar "Viaceslav Harnaj"
Școli aprox. 218 m
kindergarten
Gradinita
Gradinițe aprox. 326 m
school
Gradinita nr.283
Școli aprox. 428 m
university
Școala Superioară de Aviație Civilă - S.S.Av.C.
Universități aprox. 734 m
Recreere
restaurant
EL BACHA Lebanese Restaurant
Restaurant aprox. 104 m
supermarket
Mega Image
Supermarket aprox. 446 m
park
Parc
Parcuri aprox. 474 m
sports-ground
Teren sportiv
Terenuri sport aprox. 843 m

Detalii despre preț și costuri

Prețul pe piață

Preț cerut: 3.700 €

Preț min. zonă
Preț max. zonă

55% dintre proprietățile similare ca zonă și nr. camere au prețul cerut mai mare. mai multe...

Bine de știut: prețul unei proprietăți este influențat și de alte caracteristici, cum ar fi: vechime, localizare, vecinătăți, suprafață, compartimentare, amenajări, dotări, etc. mai puțin...

Insight premium disponibil după login

Proprietăți recomandate

Detalii de contact

IMOBILIARE HERASTRAU - Trusted Real Estate Advisor

Cosmin Badita Senior Real Estate Advisor

IMOBILIARE HERASTRAU - Trusted Real Estate Advisor
PRO

Abonează-te la newsletter să fii primul care primește cele mai noi recomandări de proprietăți și sfaturi de la experți.

CONTACT

Creează alertă

Salvează căutarea ca să primești pe email ultimele anunțuri publicate

Apartamente cu 4+ camere de închiriat în zona Herăstrău, Sector 1