11

Birou/ Rezidential, apartament in imobil Boutique, Televiziune

1.800 € / lună

Televiziune, București

Nr. cam.:
4
Sup. utilă:
106 mp
Etaj:
2 / 3
An constr.:
1977 (Finalizată)
  • • Exclusivitate
  • • Locație exactă

Descriere apartament

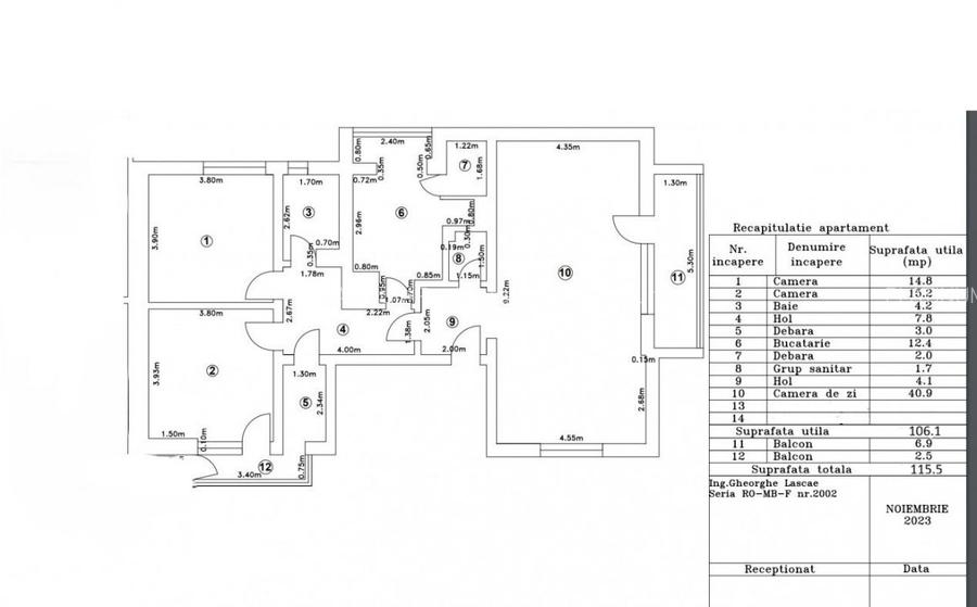
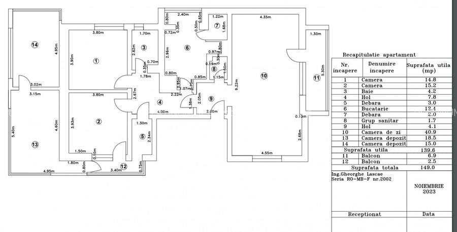
Va oferim spre inchiriere un apartament de 4 camere, situat intr-un imobil cu doar 4 apartamente, construit in anul 1977. Apartamentul disponibil pentru inchiriere a fost renovat integral in 2024, este situat la etajul 2/3 si dispune de o suprafata utila de 115 mp, 15 mp camera depozitare si 2 balcoane. Apartamentul este compartimentat in 4 camere (camera de zi/ open space in suprafata de 40 mp, care original era impartita in doua camere si se poate reface la cerere), 2 grupuri sanitare, 2 camere individuale si bucatarie complet mobilata si utilata. Apartamentul se inchiriaza impreuna cu un loc de parcare in subteran si se preteaza atat pentru rezidenta, cat si pentru birouri.
Citește mai mult Citește mai puțin
Confort 1 Decomandat Mobilat Parțial mobilat Curte comună Aer condiționat Centrală proprie 1 Parcare 1 Parcare / Garaj / Parcare subterană 1 Garaj

Detalii apartament

ID anunț: X5CV100AU Copiat! 203137815 Copiat!
Actualizat în: 19 Februarie 2026
Suprafață construită: 150 mp
Nr. băi: 2
Structură rezistență: Beton
Tip imobil: Bloc de apartamente
Regim înălțime: S+P+3E

Utilități

Destinație
Birouri
Pereți
Vopsea lavabilă
Podele
Parchet
Ușă intrare
Metal
Uși interior
Lemn
Ferestre cu geam termopan
Lemn
Contorizare
Apometre Contor gaz
Bucătărie
Mobilată Utilată
Electrocasnice
Frigider Aragaz Hotă
Alte spații utile
Terasă WC Serviciu
Facilități imobil
Interfon
Utilități
Curent Apă Canalizare Gaze
Amenajare străzi
Asfaltate Betonate Iluminat stradal
Comision
standard

Certificat energetic:

Clasa energetică: B

Vecinătăți:

Piata Charles de Gaulle, Piata Dorobanti

Disponibilitate proprietate:

imediat

Puncte de interes

Mijloace transport
bus-station
Statia Piata Charlles de Gaulle linii : 131,282,301,330,331,335.
Stații autobuz aprox. 289 m
metro-station
Piata Aviatorilor (M2)
Stații metrou aprox. 322 m
tram-station
Dr. Constantin Caracas
Stații tramvai aprox. 1139 m
trolleybus-station
Statia Piata Romana linii : 79,86
Stații troleibuz aprox. 1877 m
Școală
kindergarten
Gradinita cu program normal ""Ge Ce Pic Englishkinder"
Gradinițe aprox. 432 m
school
Gradinita de copii nr.52
Școli aprox. 470 m
kindergarten
Gradinita de Copii Nr. 52
Gradinițe aprox. 478 m
university
Universitatea Atenaeum
Universități aprox. 1351 m
Recreere
supermarket
Mega Image
Supermarket aprox. 214 m
public-square
Piața Aviatorilor
Piețe publice aprox. 359 m
park
Piața Charles de Gaulle.
Parcuri aprox. 409 m
mall
"METROPLIS CENTER"
Mall aprox. 1355 m

Detalii despre preț și costuri

Prețul pe piață

Preț cerut: 1.800 €

Preț min. zonă 1.150 €
Preț max. zonă 5.500 €

55% dintre proprietățile similare ca zonă și nr. camere au prețul cerut mai mare. mai multe...

Bine de știut: prețul unei proprietăți este influențat și de alte caracteristici, cum ar fi: vechime, localizare, vecinătăți, suprafață, compartimentare, amenajări, dotări, etc. mai puțin...

Proprietăți recomandate

Detalii de contact

PLATINUM Real Estate & Arhitecture

Andreea Petcu Real Estate Consultant

PLATINUM Real Estate & Arhitecture
PRO

Abonează-te la newsletter să fii primul care primește cele mai noi recomandări de proprietăți și sfaturi de la experți.

CONTACT

Creează alertă

Salvează căutarea ca să primești pe email ultimele anunțuri publicate

Apartamente cu 4+ camere de închiriat în zona Televiziune, Sector 1