Va propunem spre inchiriere un apartament cu 3 camere, situat aproape de Piata Universitatii, mai exact in cartierul Armenesc.
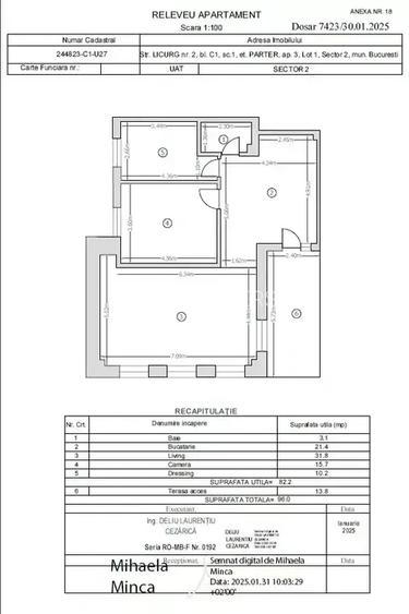
Apartamentul este situat la parter, cu acces stradal, separat de intrarea in bloc, pretabil atat pentru locuit cat si pentru amenajarea unui birou sau un bussiness. Acesta are o suprafata utila totala de 96 mp, din care utila interioara de 82,2 mp si este compartimentat in living cu zona de chicineta in suprafata de 21,4 mp, baie si inca 3 camere avand cate 31,8 mp utili, 15,7 mp utili si 10,2 mp utili.
Apartamentul se Inchiriaza Nemobilat și Neutilat! Unitatea se remarcă printr-o compartimentare inteligentă, spații generoase și o lumină naturală superbă.
În inima uneia dintre cele mai dorite și rafinate zone ale Bucureștiului – zona Armenească –, se află Ansamblul Rezidențial Licurg, un proiect boutique care păstrează cu grijă farmecul, eleganța și arhitectura specifică cartierului. Gândit pentru cei care apreciază liniștea, prestigiul și autenticitatea unei zone istorice, Licurg îmbină perfect estetica clasică a clădirilor de odinioară cu funcționalitatea și confortul contemporan, creând un mediu exclusivist și intim.
Ansamblul este recent finalizat, oferind standarde înalte de calitate, finisaje premium și un stil arhitectural ce completează armonios atmosfera aparte a cartierului Armeneasca.
Eleganța finisajelor, atenția la detalii și atmosfera caldă transformă acest apartament într-un cămin perfect pentru cei care caută un stil de viață rafinat, în mijlocul Bucureștiului, într-un ansamblu care pune în valoare tradiția și modernitatea deopotrivă.
Pretul chiriei lunare este de 1.650 Euro + Tva.
La semnare se achita o luna avans + 2 luni garantie!
In cazul in care se doreste loc de parcare se pot inchiria la 150 Euro + Tva la subteran.
Pozele sunt reale! Merita vazut!
Pentru vizionari sau mai multe detalii:
Alin Cirstea sau
VAUNT ID: 109594
Citește mai mult
Citește mai puțin
Confort 1
Semidecomandat
Aer condiționat
Centrală imobil
Încălzire prin pardoseală
Bine întreținut (Bună)
99%dintre proprietățile similare ca zonă și nr. camere au prețul cerutmai mare.
mai multe...
Bine de știut: prețul unei proprietăți este influențat și de alte caracteristici, cum ar fi: vechime, localizare, vecinătăți, suprafață, compartimentare, amenajări, dotări, etc.
mai puțin...
Proprietăți recomandate
Pornind de la căutarea ta îți recomandăm următoarele anunțuri
Sediul central - Timișoara
Bulevardul Victor Babeș nr. 2, 300230, Timișoara, România
Tel: +40.374.40.44.98 / Fax: +40.256.401.179
Email: suport@imobiliare.ro
Luni - Vineri 08:00 - 20:00
Punct de lucru - București: Iride Business Park, Bld. Dimitrie
Pompeiu 9-9A, Clădirea B2B,
020335, Sector 2, București, România
CONTACT
Sediul central - Timișoara
Bulevardul Victor Babeș nr. 2, 300230, Timișoara, România
Tel: +40.374.40.44.98 / Fax: +40.256.401.179
Email: suport@imobiliare.ro
Luni - Vineri 08:00 - 20:00
Punct de lucru - București: Iride Business Park, Bld. Dimitrie
Pompeiu 9-9A, Clădirea B2B,
020335, Sector 2, București, România
Statia Foisorul de Foc linia 133, 135, N108,69, 85, 79, 86
aprox.
797 m
Statia Piata Universitatii linii : 122,137,138,268,381,783.
aprox.
812 m
Mihai Eminescu
aprox.
839 m
Statia Nicolae Balcescu; Liniile:168, 300, 368, 226, 126
aprox.
901 m
Scoala Iancului
aprox.
934 m
Statie RATB Piata Universitatii a
aprox.
936 m
Statia Foisorul de Foc linii : 79,86
aprox.
788 m
Statia Calea Dorobantilor; Liniile:79, 86,
aprox.
1306 m
Statia Piata Romana linii : 79,86
aprox.
1419 m
Statia Mihai Bravu; Liniile:69, 85,
aprox.
1560 m
Statia Soseaua Mihai Bravu, linia 68,85
aprox.
1601 m
Statia Piata Iancului, linia 55
aprox.
1692 m
Statia Soseaua Pantelimon 85, 69
aprox.
1985 m
Metrorex. Stația Universitate (M2)(1987)
aprox.
792 m
Universitate (M2)
aprox.
800 m
Statia Metrou Piata Universitatii(M2)Metrorex
aprox.
824 m
Statia Metrou Piata Universitatii(M2)Metrorex
aprox.
837 m
Statia Metrou Piata Romana(M2)Metrorex
aprox.
1232 m
Metrorex. Stația Piața Romană (M2)(1988)
aprox.
1270 m
Piata Romana (M2)
aprox.
1270 m
Metrorex. Stația Piața Unirii 2 (M2) (en)
aprox.
1292 m
Statia Metrou Piata Romana(M2)Metrorex
aprox.
1308 m
Piata Unirii 2
aprox.
1383 m
Metrorex. Stația Piața Unirii 2 (M2)(1986)
aprox.
1392 m
Metrorex. Stația Piața Unirii 1 (M1) (en)
aprox.
1474 m
Piata Unirii 1
aprox.
1479 m
Metrorex. Stația Piața Unirii 1 (M1),(M3)(1979)
aprox.
1517 m
Metrorex. Stația Obor (M1)(1989)(Fosta statie de tramvai subterana)
aprox.
1563 m
Scoala Ajutatoare nr. 1
aprox.
78 m
Cursuri Paleologu
aprox.
180 m
GRADINITA DE COPII NR. 8 "LICURICI"
aprox.
223 m
Scoala Generala "Iovan Ducici", Nr 71
aprox.
302 m
Colegiul Economic Hermes
aprox.
313 m
Grup Școlar "Dragomir Hurmuzescu"
aprox.
348 m
SNSPA - Cladirea CIC
aprox.
402 m
Scoala de muzica nr. 4
aprox.
445 m
Grădinița (en)
aprox.
507 m
Scoala nr. 23
aprox.
507 m
Școala Nr. 23 Sf. Silvestru (en)
aprox.
513 m
Goethe Institut (en)
aprox.
527 m
Amfiteatrul Sahia
aprox.
532 m
Colegiul National Bilingv "George Cosbuc"
aprox.
564 m
Schiller Institut
aprox.
596 m
Gradinita numarul 257
aprox.
483 m
Gradinita nr.4 "Lizuca"
aprox.
535 m
Gradinita
aprox.
684 m
Gradinita nr.203 (fosta Clementa)
aprox.
687 m
Gradinita numarul 8
aprox.
700 m
Gradinita nr. 203 program prelungit
aprox.
710 m
Gradinita Magica
aprox.
714 m
Gradinita numarul 133
aprox.
800 m
Gradinita Ioanid
aprox.
915 m
Ioanid
aprox.
933 m
Gradinita Waldorf
aprox.
1133 m
Amalia's Kindergarten (en)
aprox.
1149 m
Gradinita nr. 116
aprox.
1325 m
Gradinita nr. 138 cu program prelungit
aprox.
1401 m
Gradinita nr. 85
aprox.
1401 m
Universitatea din Bucuresti - Facultatea de Stiinte Politice
aprox.
535 m
Facultatea de Stiinte Politice
aprox.
540 m
Facultatea de Farmacie
aprox.
698 m
Facultatea de Farmacie/Pharmacy Faculty
aprox.
706 m
Rectoratul UMF "Carol Davila"
aprox.
820 m
Facultatea de Chimie
aprox.
862 m
University of Bucharest - Faculty of Foreign Languages and Literatures (en)
aprox.
885 m
Centrul de Limbi Straine Ariel
aprox.
893 m
Facultatea de Limbi si Literaturi Straine
aprox.
900 m
Facultatea de litere (en)
aprox.
902 m
UAUIM -Universitatea de Arhitectura si Urbanism Ion Mincu
aprox.
916 m
Facultatea de Istorie
aprox.
957 m
Facultatea de Matematica-Informatica
aprox.
993 m
Facultatea de Stiinte
aprox.
997 m
Palatul Fundației Universitare "Carol I"
aprox.
1077 m
Mega Image Paleologu
aprox.
301 m
OK Non-stop Supermarket (en)
aprox.
501 m
OK Non-Stop
aprox.
501 m
Mega Image - Icoanei
aprox.
589 m
Mega Image Concept Store
aprox.
612 m
Pravalia Maestrului
aprox.
783 m
Mega Image
aprox.
801 m
Mega Image
aprox.
808 m
Mega Image Rosetti Non-Stop
aprox.
879 m
ilanplant
aprox.
961 m
Bacania Coco
aprox.
991 m
Mega Image - Hala Traian
aprox.
997 m
Cocor
aprox.
1122 m
Supermarket
aprox.
1122 m
BILLA - Cocor
aprox.
1128 m
"METROPLIS CENTER"
aprox.
1838 m
Parcare
aprox.
301 m
Parcare
aprox.
303 m
Parcare
aprox.
418 m
Parcare cu plata
aprox.
590 m
Parcare
aprox.
609 m
Parcare
aprox.
645 m
Parcare
aprox.
667 m
Parcare
aprox.
669 m
Parcare
aprox.
700 m
Parcare
aprox.
706 m
Parcare
aprox.
771 m
Parcare
aprox.
773 m
Parcare cu plata
aprox.
808 m
Parcare privata
aprox.
824 m
Parcare
aprox.
866 m
Parc
aprox.
254 m
Parc
aprox.
262 m
Parcul Izvorul Rece
aprox.
443 m
Parcul Izvorul Rece
aprox.
443 m
Spatiu verde
aprox.
490 m
Parc
aprox.
534 m
60 Minutes
aprox.
545 m
Parc
aprox.
556 m
Parcul Popa Soare
aprox.
563 m
Parcul Izvorul Rece
aprox.
563 m
Parcul Sf. Stefan
aprox.
700 m
Piata Sfantul Stefan
aprox.
700 m
Parc
aprox.
735 m
Small park (en)
aprox.
748 m
Parc
aprox.
748 m
Piata Latina
aprox.
297 m
Piata Rosetti
aprox.
497 m
Piata Universitatii
aprox.
766 m
Piata Roma
aprox.
1046 m
Piata Revolutiei
aprox.
1075 m
Piata Timpului
aprox.
1098 m
Piața Drapelului (Tricolorului)
aprox.
1158 m
Piața Sfântul Anton
aprox.
1237 m
Piața Romană
aprox.
1437 m
Piata Natiunilor Unite
aprox.
1581 m
Piata Bucur Obor
aprox.
1619 m
Piata Bibescu
aprox.
1714 m
Piata Iancului
aprox.
1780 m
Piata Bucur
aprox.
1998 m
Teren sportiv
aprox.
968 m
Teren sportiv
aprox.
1057 m
Teren sportiv
aprox.
1609 m
Respawn B
aprox.
1760 m
Teren sportiv
aprox.
1772 m
Etaj 1 - Hala CQB
aprox.
1841 m
Parter - Hala mare
aprox.
1845 m
Gradinita
aprox.
1867 m
Teren sportiv
aprox.
1885 m
Respawn A
aprox.
1888 m
Stadionul Dinamo
aprox.
1889 m
Teren sportiv
aprox.
1929 m
INGG Ana Aslan Spatarului nr. 15 (en)
aprox.
122 m
ProctoMed
aprox.
296 m
Cabinet stomatologic (en)
aprox.
367 m
Clinica Reumatologie "Dr. Ion Stoia"
aprox.
498 m
Optim Sano
aprox.
555 m
Clinica de oftalmologie Ama Optimex
aprox.
563 m
Centrul Medical Batistei
aprox.
575 m
Policlinica (en)
aprox.
591 m
Centrul medical Sanatatea TA
aprox.
593 m
Clinica de 10
aprox.
598 m
Institutul de Diabet NCPaulescu (en)
aprox.
619 m
Cabinet Gineco
aprox.
684 m
Spitalul Cantacuzino
aprox.
689 m
WORLD CLINIC - O viata fara alergii ! (en)
aprox.
735 m
SERVICIUL DE AMBULANTA BUCURESTI-ILFOV
aprox.
790 m
Farmacia Artafarm
aprox.
480 m
Farmacia Tarsis Impex
aprox.
497 m
Farmacia Carmen
aprox.
501 m
HelpNet
aprox.
597 m
Sensiblu
aprox.
627 m
Reteta
aprox.
636 m
Colvimed
aprox.
643 m
Farmadex Non-Stop
aprox.
716 m
Farmacia Apifarm
aprox.
717 m
Farmacia Artafarm
aprox.
718 m
Farmacon CO Impex
aprox.
729 m
Farmacia 2NA
aprox.
739 m
Farmacia Ana Maria
aprox.
754 m
belladona
aprox.
784 m
Farmacia Mea
aprox.
790 m
Zepelin
aprox.
113 m
Orasul Interzis
aprox.
153 m
Lente Armeneasca (en)
aprox.
167 m
Restaurant Casa
aprox.
180 m
Espace Minoux
aprox.
198 m
Saormerie
aprox.
251 m
Piadinerie (en)
aprox.
257 m
Jeunesse Bistro
aprox.
258 m
La Dud
aprox.
269 m
edgar trattoria
aprox.
281 m
Nicorești (en)
aprox.
288 m
Nicoresti
aprox.
290 m
Naser 2
aprox.
295 m
Ristorante Interbellico
aprox.
322 m
Restaurantul Burebista
aprox.
325 m
Lente Arcului
aprox.
162 m
Carla Caffe
aprox.
259 m
T-zero
aprox.
430 m
T-zone
aprox.
430 m
Hobby Cafe
aprox.
451 m
Vesuvio Cafe
aprox.
545 m
The Living Room
aprox.
556 m
Newton Caffe
aprox.
561 m
Hobby Caffe & Shop
aprox.
577 m
Lente Praporgescu
aprox.
626 m
Cafe Lautrec
aprox.
808 m
Mi-nut
aprox.
877 m
Art Caffe
aprox.
879 m
Bernschutz and Co
aprox.
888 m
Hathor Cafe
aprox.
897 m
Geo Bar
aprox.
181 m
Trei Betivi
aprox.
307 m
Dianei Patru
aprox.
424 m
MIM Bistro
aprox.
513 m
Macaz Bar Teatru Coop
aprox.
532 m
Que Pasa
aprox.
577 m
Epic
aprox.
622 m
Underworld
aprox.
631 m
Voltage Bar
aprox.
807 m
Antic Bar
aprox.
808 m
La Pirati
aprox.
922 m
RSS Pub
aprox.
961 m
Piua Book Bar
aprox.
985 m
Galliano Club
aprox.
989 m
E... Varza
aprox.
1014 m
Smart's Pub & Bistro
aprox.
408 m
Have a Cigar
aprox.
422 m
Bluzz
aprox.
465 m
Le Boutique Food Concept Store
aprox.
554 m
Club Surubelnita
aprox.
556 m
La Scena
aprox.
717 m
Terasa Rustica Foisor
aprox.
822 m
Clock`s
aprox.
888 m
Waldo's
aprox.
890 m
Manasia Hub
aprox.
906 m
Coloseum
aprox.
995 m
Edgar`s Pub
aprox.
1018 m
Kulturhaus
aprox.
1025 m
Hanul cu Tei
aprox.
1037 m
Club A
aprox.
1044 m
Libra Bank - Sediul Central
aprox.
116 m
Libra Bank Sediul Central
aprox.
116 m
Emporki Bank
aprox.
209 m
Piraeus Bank Romania - Sucursala Municipiului Bucuresti
aprox.
307 m
ATM - Raiffeisen Bank - Asirom
aprox.
326 m
BRD Corbeni
aprox.
348 m
Piraeus Bank
aprox.
396 m
Raiffeisen Bank
aprox.
434 m
BCR
aprox.
462 m
BRD (en)
aprox.
504 m
BRD Calderon-Batistei
aprox.
504 m
BRD Rosetti
aprox.
513 m
Banca Transilvania - Ag. Rosetti
aprox.
546 m
UniCredit Bank - Ag. Rosetti
aprox.
586 m
Ion Tiriac Banc (en)
aprox.
594 m
Zona Ștefan cel Mare - Dacia - Eminescu - Armenească este destul de bine conectată cu alte cartiere din București prin intermediul mijloacelor de transport în comun. Printre acestea amintim autobuzul 605 pe care îl poți lua pentru a ajunge la mall-ul Băneasa Shopping City, tramvaiul 16 care te poate ajuta să ajungi la Piața Sf. Vineri și troleibuzul 86 care oferă o legătură directă cu Gara de Nord. Mai multe stații de metrou sunt și ele disponibile în apropiere. Este vorba despre Ștefan cel Mare și Obor, aflate pe magistrala 1 Dristor - Pantelimon, și despre Piața Romană și Universitate situate pe traseul magistralei 2 Berceni-Pipera. Consultă harta pentru a afla poziționarea exactă a stațiilor mijloacelor de transport în comun.
În zona Ștefan cel Mare - Dacia - Eminescu - Armenească vei găsi mai multe unități de învățământ, de stat și private. Amintim astfel Colegiul Național Școala Centrală de lângă Parcul Grădina Icoanei, Colegiul Național "Spiru Haret" de pe Strada Italiană, Colegiul Național "Cantemir Vodă" și Liceul Economic "Virgil Madgearu", ambele situate pe Bulevardul Dacia. Școala Sanitară Postliceală "Carol Davila" se află și ea în această zonă, iar Academia de Studii Economice din București poate fi găsită în apropiere, la Piața Romană. Consultă harta pentru a vedea care vor fi cele mai apropiate grădinițe, școli și licee de viitoarea ta locuință.
În această zonă vei găsi, în principal, magazine mici și câteva supermarketuri. La intersecția dintre Bulevardul Dacia și Strada Vasile Lascăr vei avea la dispoziție Piața Gemeni și un concept store Mega Image. Cel mai apropiat mall este situat în zona Obor. Este vorba despre Veranda Mall, unul dintre cele mai noi astfel de centre comerciale din București. Tot aici găsești magazinul Bucur Obor și o piață. Cu mașina poți ajunge destul de rapid și la mall-ul Promenada sau la complexul comercial cu magazin Kaufland și Carrefour Market de pe Strada Barbu Văcărescu. Consultă harta și află ce alte opțiuni mai ai aproape de viitoarea ta casă, dar și în împrejurimi.
Îți recomandăm să verifici dacă există posibilitatea închirierii unui loc de parcare în apropierea locuinței de care ești interesat. Poți face acest lucru apelând la Serviciul Parcări din cadrul ADP Sector 2. Atunci îți aducem în atenție faptul că Bulevardul Dacia, Strada Mihai Eminescu și Strada Polonă sunt unele dintre cele mai circulate din această zonă. Trafic intens vei întâlni, totodată, la intersecția dintre Calea Dorobanți, Bulevardul Dacia și Strada Mihai Eminescu. Aglomerație vei găsi și pe Bulevardul Ștefan cel Mare, mai ales la orele de vârf și în zilele în care se organizează evenimente sportive în cadrul stadionului Dinamo. Consultă harta și vezi unde se găsesc principalele parcări din această zonă.
În zona Ștefan cel Mare - Dacia - Eminescu - Armenească se organizează periodic diferite evenimente, de la ateliere, la festivaluri și demonstrații de artă stradală. Dacă te vei muta în această parte a orașului, vei avea la doi pași de casă mai multe ceainării, restaurante, spații unde se organizează jocuri de tip escape room și trei teatre - Țăndărică, Metropolis și Bulandra. Pentru evenimente culturale și seri de film vei putea merge pe Bulevardul Dacia, la Institutul Francez din București. Ajungi repede și în centru, unde poți fi spectatorul unei piese puse în scenă de actorii Teatrului Național București. Parcurile Grădina Icoanei și Ioanid, deși sunt destul de restrânse ca suprafață, sunt unele dintre cele mai frumoase din această parte a orașului. Totodată, în nordul acestei zone, în imediata apropiere a Șoselei Ștefan cel Mare, vei găsi Circul Metropolitan București și parcul acestuia, iar în vecinătatea lor Stadionul Dinamo și complexul său sportiv. Nu uita, totodată, că din această zonă vei ajunge destul de rapid în Centrul Vechi, unde pe lângă terase și restaurante găsești și câteva obiective turistice care merită vizitate măcar o dată. Află ce alte puncte de interes găsești în zona Ștefan cel Mare - Dacia - Eminescu - Armenească și din vecinătatea acesteia. Consultă harta.
Dacă te vei muta în această zonă, vei avea la dispoziție mai multe spitale și clinici private. Printre acestea se numără Spitalul Clinic Dr. Ion Cantacuzino din zona Pieței Gemeni și Spitalul Ion Stroia . Alte unități sanitare din vecinătate sunt Spitalul Clinic Colentina, Spitalul Sf. Ștefan, Spitalul Clinic de Urgență București (cunoscut și ca Floreasca) și Spitalul Euroclinic din rețeaua privată de sănătate Regina Maria. Toate acestea sunt concentrate în nordul zonei Ștefan cel Mare - Dacia - Eminescu - Armenească, în vecinătatea Stadionului Dinamo și a Parcului Circului. Vezi pe hartă localizarea exactă a unităților medicale de mai sus.
Presărate pe străzile din această zonă găsești mai multe terase și restaurante mici. Câteva dintre cele mai cochete se află în vechiul cartier Armenesc. De aici ajungi extrem de repede și în Centrul Vechi al orașului, pentru mai multă diversitate. Fiind atât de aproape de centrul orașului, vei avea la dispoziție extrem de multe opțiuni. Restaurantele și cafenelele din Dorobanți sau de pe Calea Floreasca pot fi cu siguranță pe gustul tău. Dacă vrei să faci și o plimbare, să admiri arhitectura frumoasă a vechilor clădiri din București și să te oprești la o cafea sau la o prăjitură, atunci Calea Victoriei poate fi ideală. Pentru o mică gustare sau un meniu fast food ai mai multe variante în zona Obor, iar dacă te grăbești atunci poți încerca drive through-ul McDonald"™s de pe Strada Barbu Văcărescu. Aruncă o privire pe hartă și vezi ce alte restaurante, terase sau cafenele ai în zonă.
Găsești mai multe sucursale bancare și ATM-uri în special pe Șoseaua Ștefan cel Mare. Aruncă o privire pe hartă și vezi ce alte opțiuni găsești în apropierea viitoarei tale locuințe.
Înainte să pleci...
Ești sigur că ai văzut și aceste proprietăți?
1.650 € + TVA / lună
București, Armeneasca
3 camere
83 mp
Etaj 2
2.250 € + TVA / lună
București, Armeneasca
4 camere
119 mp
Etaj 3
1.200 € / lună
București, Armeneasca
3 camere
95 mp
Etaj 2 / 7
1.000 € / lună
București, Floreasca
2 camere
81 mp
Parter / 6
1.650 € + TVA / lună
București, Armeneasca
2 camere
82 mp
Parter / 3
Creează alertă
Salvează căutarea ca să primești pe email ultimele anunțuri publicate
Apartamente cu 3 camere de închiriat în zona Armeneasca, Sector 2
Cere detalii prin email
*
*
*
*
Detaliile tale de contact vor fi partajate cu R&d Advisers