Duplex 4 Camere | Birouri | Rezidential | Inchiriere *Mosilor*

1.100 € / lună

Moșilor, București

Nr. cam.:
4
Sup. utilă:
104 mp
Etaj:
Parter / 3
An constr.:
2013 (Finalizată)
  • • Locație aproximativă

Descriere apartament

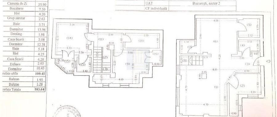
Va prezentam spre inchiriere acest duplex luminos si bine compartimentat, pozitionat pe o strada linistita din zona Calea Mosilor. Duplexul este situat la parter si etajul 1, in bloc construit in anul 2013, are o suprafata utila de 100mp + 4mp balcoane + 24mp curte si este compartimentat astfel: Parter: hol, camera de zi, dormitor/camera, dressing, bucatarie inchisa, grup sanitar, baie Etaj 1: doua dormitoare/camere, hol, baie, debara. Finisaje si dotari: Centrala termica proprie, aer conditionat in fiecare camera, termopan, parchet, gresie, faianta, interfon. Locatia este bine conectata la mijloacele de transport in comun, fiind la 7 minute de mers pe jos de statia de metrou Obor si 5 minute distanta de liniile RATB de pe Strada Viitorului si Calea Mosilor. Pentru masinile dumneavoastra exista posibilitatea de inchiriere locuir ADP pe strada. Va stam la dispozitie pentru stabilirea unei vizionari sau orice detaliu aditional.
Citește mai mult Citește mai puțin
Confort 1 Decomandat Nemobilat 2 Balcoane Grădină Curte Aer condiționat Calorifere Bine întreținut (Bună)

Detalii apartament

ID anunț: XAG3100MM Copiat! 274744992 Copiat!
Actualizat în: 03 Februarie 2026
Suprafață construită: 130 mp
Nr. bucătării: 1
Nr. băi: 3
Structură rezistență: Beton
Tip imobil: Bloc de apartamente
Regim înălțime: P+3E+M

Utilități

Pereți
Faianță Var
Podele
Gresie Parchet
Ușă intrare
Metal
Izolații termice
Exterior
Contorizare
Apometre Contor gaz
Bucătărie
Parțial mobilată
Diverse
Scară interioară
Alte spații utile
Debara WC Serviciu
Dotări imobil
Interfon
Utilități
Curent Apă Canalizare CATV Gaze Telefon
Acces internet
Cablu
Amenajare străzi
Iluminat stradal Mijloace de transport în comun Asfaltate

Vecinătăți:

Obor
Soseaua Stefan cel Mare
Strada Viitorului
Scoala Nr. 26
Scoala Sanitara Postliceala Carol Davila

Disponibilitate proprietate:

Imediat

Puncte de interes

Mijloace transport
bus-station
Statia Bucur Obor; Liniile:143, 254, N101, 101
Stații autobuz aprox. 138 m
metro-station
Statia Metrou Piata Obor(M1)Metrorex
Stații metrou aprox. 168 m
tram-station
Bucur Obor
Stații tramvai aprox. 237 m
trolleybus-station
Statia Soseaua Mihai Bravu, linia 68,85
Stații troleibuz aprox. 804 m
Școală
school
Scoala Nr. 50
Școli aprox. 364 m
school
Gradinita Magnolia
Școli aprox. 442 m
university
Universitatea Spiru Haret - Facultatea de Medicina veterinara
Universități aprox. 630 m
kindergarten
Gradinita numarul 8
Gradinițe aprox. 716 m
Recreere
supermarket
Mega Image
Supermarket aprox. 142 m
public-square
Piata Bucur Obor
Piețe publice aprox. 252 m
park
Parc
Parcuri aprox. 265 m
sports-ground
Respawn B
Terenuri sport aprox. 428 m

Detalii despre preț și costuri

Prețul pe piață

Preț cerut: 1.100 €

Preț min. zonă 575 €
Preț max. zonă 1.500 €

99% dintre proprietățile similare ca zonă și nr. camere au prețul cerut mai mare. mai multe...

Bine de știut: prețul unei proprietăți este influențat și de alte caracteristici, cum ar fi: vechime, localizare, vecinătăți, suprafață, compartimentare, amenajări, dotări, etc. mai puțin...

Proprietăți recomandate

Detalii de contact

SELECT HOMES

Petrut Ochiulet Real Estate Manager

4.75(4 review-uri)

SELECT HOMES
PRO

Abonează-te la newsletter să fii primul care primește cele mai noi recomandări de proprietăți și sfaturi de la experți.

CONTACT

Creează alertă

Salvează căutarea ca să primești pe email ultimele anunțuri publicate

Apartamente cu 4+ camere de închiriat în zona Moșilor, Sector 2