ZECE este un complex modern de apartamente moderne situat pe Strada Anton Pann nr. 33, in apropiere de Bulevardul Unirii, Bdul Micea Voda, Bdul Nerva Traian, Piata Alba Iulia, Piata Unirii, Tribunalul Bucuresti si Biblioteca Nationala.
Proiectul a fost finalizat in 2026, iar ca dotari dispune de:
- structura solida din beton armat,
- compartimentari interioare din caramida tip Porotherm,
- ferestre aluminiu Schuco Germany cu stricla tripan,
- usi interior Filomuro, usi intrare metalice Dierre Italy,
- incalzire in pardoseala Uponor Finland,
- centrala de apartament Viessmann Germany cu termostat de ambient,
- aer conditionat Dainkin Japan cu thermostat de ambient,
- parchet triplustratificat Barlinek Germany,
- ceramica Refin Italy,
- electrice Schneider French,
- recuperatoare de caldura Noving Air,
- lift Schindler Switzerland
- panouri fotovoltaice pentru spatiile commune, running water LED strip light si cele mai noi tehnologii.
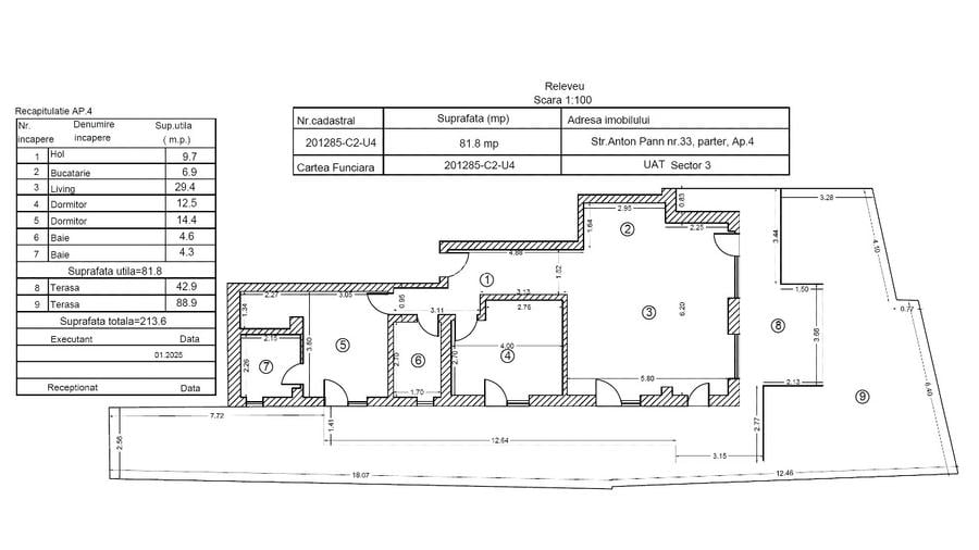
Apartamentul propus are o suprafata utila de 82mp si este situat la parterul inalt al cladirii. Dispune terase mari si o curte proprie de 132mp. Suprafata utila totala a apartamentului este de 213.6 mp.
Garantie: 2 luni de chririe. Avans: 1 luna de chirie.
Proiectul nostru ofera acces usor la toate facilitatile si atractiile orasului , facandu-l ideal pentru rezidenta.
Va asteptam la vizionare!
Proprietate cu prețul cerut în afara intervalului mai multe...
Posibile explicații pentru faptul că prețul proprietății este peste cel maxim: imobil nou cu suprafață mare, are dotări și finisaje de lux.
Bine de știut: prețul unei proprietăți este influențat și de alte caracteristici, cum ar fi: vechime, localizare, vecinătăți, suprafață, compartimentare, amenajări, dotări, etc.
Sediul central - Timișoara
Bulevardul Victor Babeș nr. 2, 300230, Timișoara, România
Tel: +40.374.40.44.98 / Fax: +40.256.401.179
Email: suport@imobiliare.ro
Luni - Vineri 08:00 - 20:00
Punct de lucru - București: Iride Business Park, Bld. Dimitrie
Pompeiu 9-9A, Clădirea B2B,
020335, Sector 2, București, România
CONTACT
Sediul central - Timișoara
Bulevardul Victor Babeș nr. 2, 300230, Timișoara, România
Tel: +40.374.40.44.98 / Fax: +40.256.401.179
Email: suport@imobiliare.ro
Luni - Vineri 08:00 - 20:00
Punct de lucru - București: Iride Business Park, Bld. Dimitrie
Pompeiu 9-9A, Clădirea B2B,
020335, Sector 2, București, România
Statia Bulevardul Marasesti linii : 76,312,313,381.
aprox.
938 m
Statia Piata Sf. Gheorghe, linii: 5,16, 21, 381
aprox.
978 m
Capat Universitatea Crestina Dimitrie Cantemir linii : 323.
aprox.
1104 m
Statia Universitatea Crestina Dimitrie Cantemir linii:133.
aprox.
1124 m
Autobuz 323
aprox.
1127 m
Bd. Carol I
aprox.
1171 m
Statie RATB Rosseti 311 (en)
aprox.
1178 m
Statia Piata Rosetti linii : 61,66,69,70,85,90,91,92,336,601.
aprox.
1251 m
Piata Unirii 2
aprox.
679 m
Metrorex. Stația Piața Unirii 2 (M2)(1986)
aprox.
728 m
Metrorex. Stația Piața Unirii 1 (M1),(M3)(1979)
aprox.
791 m
Metrorex. Stația Piața Unirii 2 (M2) (en)
aprox.
807 m
Piata Unirii 1
aprox.
864 m
Metrorex. Stația Piața Unirii 1 (M1) (en)
aprox.
935 m
Timpuri Noi
aprox.
1046 m
Metrorex. StațiaTimpuri Noi (M1),(M3)(1979)
aprox.
1069 m
Statia Metrou Piata Universitatii(M2)Metrorex
aprox.
1264 m
Universitate (M2)
aprox.
1288 m
Statia Metrou Piata Universitatii(M2)Metrorex
aprox.
1330 m
Metrorex. Stația Tineretului (M2)(1986)
aprox.
1362 m
Metrorex. Stația Universitate (M2)(1987)
aprox.
1428 m
Statia Metrou Tineretului(M2)Metrorex
aprox.
1431 m
Tineretului (M2)
aprox.
1491 m
Statia Foisorul de Foc linii : 79,86
aprox.
1704 m
Institutul Bancar Român
aprox.
361 m
Academia de Studii Economice
aprox.
822 m
Academia de Studii Economice: Facultatea de Management - Administratie Publica
aprox.
829 m
Facultatea de Teologie Ortodoxa
aprox.
866 m
Facultatea de Stiinte Politice
aprox.
1237 m
Universitatea Hyperion (en)
aprox.
1240 m
Universitatea Hyperion
aprox.
1247 m
Universitatea din Bucuresti - Facultatea de Stiinte Politice
aprox.
1247 m
Universitatea Nicolae Titulescu
aprox.
1318 m
Universitatea Crestina "Dimitrie Cantemir"
aprox.
1327 m
Facultatea de Chimie
aprox.
1334 m
Universitatea "Nicolae Titulescu" - Bucuresti
aprox.
1363 m
Universitatea Titu Maiorescu - Corp M
aprox.
1381 m
Facultatea de Istorie
aprox.
1382 m
Facultatea de litere (en)
aprox.
1387 m
Colegiul National "Matei Basarab"
aprox.
409 m
Liceul Lauder-Reut
aprox.
411 m
Lauder Reut School Complex (en)
aprox.
414 m
Scoala cu clasele I-VIII, Nr. 73 Barbu Stefanescu Delavrancea
aprox.
436 m
Liceul Teoretic "Ion Creanga" (en)
aprox.
596 m
Scoala Nr. 79 (en)
aprox.
615 m
Scoala nr. 79
aprox.
615 m
Scoala generala nr. 81
aprox.
706 m
Scoala Generala nr.81
aprox.
706 m
Școala 81
aprox.
713 m
Grupul Scolar Industrial Unirea (en)
aprox.
788 m
Grupul Scolar Industrial Unirea
aprox.
799 m
Scoala Superioara Comerciala Nicolae Kretzulescu
aprox.
810 m
institutul Irecson
aprox.
846 m
Școala Specială nr. 5
aprox.
928 m
Gradinita Barba Cot
aprox.
673 m
Cresa Micii Poznasi
aprox.
821 m
Gradinita "Scufita Rosie"
aprox.
1021 m
Gradinita Plusica
aprox.
1040 m
Gradinita de Copii nr.30 "Copiii soarelui
aprox.
1050 m
Gradinita Prikindel
aprox.
1130 m
Gradinita nr.192, "Pisicile Aristocrate"
aprox.
1240 m
Gradinita Magica
aprox.
1246 m
Gradinita nr. 192 (Pisicile aristocrate)
aprox.
1249 m
Gradinita (progr. prelungit) Aleea Borcea - Str. Ruginoasa
aprox.
1337 m
Gradinita
aprox.
1431 m
Gradinita nr.4 "Lizuca"
aprox.
1480 m
Gradinita de copii nr.161
aprox.
1487 m
Gradinita Waldorf
aprox.
1493 m
Gradinita cu program prelungit Copiii Soarelui
aprox.
1546 m
MGV Supermarket Zeno
aprox.
431 m
ClicMarket
aprox.
502 m
Magazin Mixt
aprox.
549 m
Km 0
aprox.
560 m
Carrefour Unirii
aprox.
576 m
Carrefour Unirii Non-Stop
aprox.
597 m
Shop & Go
aprox.
658 m
Supermarket Sinbad
aprox.
670 m
Mega Image
aprox.
701 m
MGV Green Expres
aprox.
707 m
Mega Image - Apahida
aprox.
716 m
Supermarket Fonzi
aprox.
727 m
BILLA - Cocor
aprox.
759 m
Shop&Go
aprox.
761 m
Cocor
aprox.
771 m
Bucharest, Calea Vitan nr. 8, Bl V51, near VITAN Mall
aprox.
992 m
Parcare
aprox.
70 m
Parcare
aprox.
148 m
Parcare
aprox.
153 m
Parcarea Bibliotecii Nationale
aprox.
160 m
Parcare
aprox.
164 m
Parcare
aprox.
180 m
Parcare
aprox.
205 m
Parcare
aprox.
217 m
Parcare
aprox.
236 m
Parcare
aprox.
237 m
Parcare
aprox.
240 m
Parcare
aprox.
288 m
Parcare
aprox.
363 m
Parcare
aprox.
379 m
Parcare
aprox.
388 m
Parc
aprox.
35 m
Parc
aprox.
73 m
Parc
aprox.
100 m
Parc
aprox.
119 m
Parc
aprox.
138 m
Parc
aprox.
141 m
Parc
aprox.
141 m
Parc
aprox.
221 m
Parc
aprox.
229 m
Parc
aprox.
242 m
Parc
aprox.
264 m
Parc
aprox.
275 m
Parc
aprox.
318 m
Parc
aprox.
323 m
Parc
aprox.
388 m
Teren sportiv
aprox.
405 m
Teren sportiv
aprox.
463 m
Teren sportiv
aprox.
1145 m
Teren sportiv
aprox.
1155 m
Teren sportiv
aprox.
1189 m
Teren sportiv
aprox.
1847 m
Teren sportiv
aprox.
1897 m
Teren sportiv
aprox.
1923 m
Teren sportiv
aprox.
1936 m
Teren sportiv
aprox.
1984 m
Teren sportiv
aprox.
1988 m
Piata Bucur
aprox.
674 m
Piata Timpului
aprox.
823 m
Piața Sfântul Anton
aprox.
879 m
Piata Bibescu
aprox.
919 m
Piata Roma
aprox.
947 m
Piata Rosetti
aprox.
1191 m
Piata Latina
aprox.
1289 m
Piata Universitatii
aprox.
1328 m
Piata Natiunilor Unite
aprox.
1351 m
Piața Drapelului (Tricolorului)
aprox.
1511 m
Piața Constituției
aprox.
1665 m
Piata Revolutiei
aprox.
1844 m
Piața Regina Maria
aprox.
1847 m
Spectrum Clinique - Clinica de Oftalmologie
aprox.
169 m
Spitalul Prof. Dr. C. Angelescu
aprox.
187 m
Spitalul Prof. Dr. C-Tin Angelescu
aprox.
203 m
Clinica de Stomatologie
aprox.
296 m
Clinica Sentisan. .sentisan.ro (en)
aprox.
352 m
Spitalul Caritas (en)
aprox.
492 m
Medident Dental X-ray
aprox.
602 m
Art Implant
aprox.
613 m
MediDent
aprox.
614 m
SYNEVO
aprox.
621 m
Maternitatea Bucur
aprox.
624 m
Clinica Polisano
aprox.
679 m
Clinica Audionova
aprox.
728 m
WORLD CLINIC - O viata fara alergii ! (en)
aprox.
742 m
Medlife Unirii
aprox.
773 m
Farmacia Kaiser
aprox.
418 m
Farmacia Farmadex
aprox.
461 m
2NA Farm
aprox.
502 m
Sensiblu
aprox.
566 m
Farmacie
aprox.
624 m
Farmacia Dona
aprox.
649 m
Help Net
aprox.
674 m
Farmacia 2NA
aprox.
717 m
Farmacia Dona 19
aprox.
758 m
Alma Farm Com 95
aprox.
803 m
Farmacia Denis
aprox.
835 m
Simidon
aprox.
845 m
Farmacia 20
aprox.
932 m
Farmacia Belladonna 54
aprox.
950 m
Terapia Farm
aprox.
971 m
Beraria Berestoika
aprox.
132 m
Pizzeria Classic
aprox.
534 m
La Scena
aprox.
713 m
The Harp
aprox.
746 m
Manasia Hub
aprox.
750 m
Kulturhaus
aprox.
839 m
Atelierul Mecanic
aprox.
932 m
Mojo
aprox.
952 m
Elephant Pub
aprox.
959 m
Offside Pub
aprox.
966 m
Jukebox
aprox.
970 m
Half Time
aprox.
978 m
100 de beri
aprox.
984 m
Club Surubelnita
aprox.
989 m
Fire Club
aprox.
992 m
Monna Lisa
aprox.
318 m
Restaurant Sole
aprox.
336 m
noul Barfly
aprox.
371 m
Pizzerie si Restaurant Classic
aprox.
508 m
Restaurant Classic
aprox.
510 m
Fabrica De Mancare
aprox.
532 m
Restaurant Zahana
aprox.
598 m
Corner
aprox.
612 m
Mc'Donalds
aprox.
631 m
KFC
aprox.
631 m
Restaurant "Eden" (en)
aprox.
663 m
Presto Pizza
aprox.
664 m
Thang Long
aprox.
670 m
McDonald's
aprox.
694 m
KFC
aprox.
694 m
Bar
aprox.
319 m
BarFly
aprox.
366 m
Pe baricade
aprox.
439 m
Nargila Grill&Bar
aprox.
785 m
City Grill Covaci
aprox.
899 m
Vecchio
aprox.
900 m
Network Lounge
aprox.
908 m
Sankt Petersburg Pub
aprox.
946 m
Up Club
aprox.
958 m
1974 Niste Domni si Fiii
aprox.
976 m
Pure
aprox.
985 m
Beraria Bavareza Fritz
aprox.
990 m
The Elbow Room
aprox.
991 m
Harley
aprox.
991 m
The Glam Club
aprox.
995 m
Zebra Caffe
aprox.
332 m
Bistro 33 Cafe
aprox.
397 m
Adior Cafe lounge
aprox.
498 m
gloria jeans coffee
aprox.
579 m
Art Caffe
aprox.
610 m
Maroon Caffe
aprox.
635 m
Miau
aprox.
659 m
Quartier
aprox.
847 m
ART Cafe
aprox.
894 m
Testa Rossa Caffebar
aprox.
901 m
Starbucks
aprox.
908 m
The Urbanist
aprox.
916 m
Tucano Cofee
aprox.
967 m
Hobby Cafe
aprox.
1003 m
La delicii
aprox.
1008 m
BCR
aprox.
36 m
BRD Unirea
aprox.
104 m
Banca Romaneasca
aprox.
286 m
Banca Comerciala Feroviara
aprox.
390 m
Bank of Cyprus
aprox.
407 m
OTP Bank
aprox.
407 m
MKB Romextera bank
aprox.
467 m
Banc of Cyprus
aprox.
491 m
CEC
aprox.
547 m
Garanti Bank
aprox.
561 m
OTP Bank
aprox.
562 m
UniCredit Bank - Ag. Unirii
aprox.
563 m
UniCredit Tiriac Bank (en)
aprox.
574 m
Alpha Bank
aprox.
594 m
ING Nerva Traian
aprox.
599 m
Stațiile de metrou aflate chiar în "inima" acestei zone, în Piața Unirii, îți oferă posibilitatea de a călători rapid, evitând aglomerația din trafic. Stația Piața Unirii 1 oferă conexiuni la magistrala M1 Dristor - Pantelimon și la magistrala M3 Preciziei - Anghel Saligny. Aceasta este conectată de stația Piața Unirii 2, aflată pe magistrala M2 Berceni - Pipera printr-un pasaj. Astfel, poți ajunge chiar și în mai puțin de 10 minute în zona Politehnică sau la Piața Victoriei și în circa 15 minute în Pipera, unul dintre principalii poli de business ai orașului. Cu autobuzul 104 poți ajunge în cartierul Pantelimon, iar cu tramvaiul 47 în cartierul Rahova. Consultă harta pentru a localiza stațiile mijloacelor de transport în comun.
Printre unitățile de învățământ din această zonă se numără Colegiul Național "Mihai Eminescu", Colegiul Național "Ion Creangă", Colegiul Național de Arte "Dinu Lipatti" și Facultatea de Teologie Ortodoxă "Justinian Patriarhul". Tot aici își are sediul și Institutul Bancar Român care ajută la specializarea personalului din sectorul financiar-bancar. Ajungi foarte repede din Piața Unirii, chiar și pe jos, la Palatul Universității care găzduiește sediile mai multor facultăți. Găsește pe hartă și cele mai apropiate grădinițe, școli și licee de viitoarea ta locuință.
Dacă te vei muta în această zonă, vei avea la doi pași de casă centrul comercial Unirea Shopping Center, care găzduiește, printre altele, magazinele mai multor branduri de modă. În spatele acestuia vei găsi un hipermarket Carrefour. Diverse magazine pot fi găsite și în Centrul Vechi. Pe Strada Lipscani poți să vizitezi una dintre cele mai frumoase librării din Capitală, Cărturești Carusel. Magazin Cocor, care a fost modernizat recent, poate fi și el o alternativă. În imediata sa vecinătate se află și noul magazin București. Pentru mai multe opțiuni, poți merge la București Mall, cel mai apropiat centru comercial de acest tip. Consultă harta pentru a vedea ce alte opțiuni ai în zona Unirii și în împrejurimi.
Lângă Centrul Comercial Unirea Shopping Center vei găsi o parcare supraterană unde îți poți lăsa mașina contra-cost. Dacă te gândești să te muți în zona Piața Unirii îți amintim, de asemenea, că traficul pe Bulevardul Unirii este destul de îngreunat la orele de vârf. Nu uita, totodată, că traficul rutier este închis uneori în Piața Constituției pentru organizarea unor evenimente și concerte. Pentru închirierea unui loc de parcare în apropierea locuinței de care ești interesat va trebui să apelezi la reprezentanții autorităților locale de pe sectorului în care se află aceasta (Direcția Generală Impozite și Taxe Locale Sector 3, Direcția Mobilitate Urbană Sector 4, Serviciul Parcaje Scop Reședință Sector 5). Consultă harta pentru a localiza mai ușor principalele parcări din zona Unirii.
Dacă decizi să te muți într-o locuință în zona Unirii, atunci vei avea la dispoziție numeroase opțiuni de petrecere a timpului liber. Chiar în Piața Unirii vei găsi unul dintre binecunoscutele obiective ale orașului, Hanul lui Manuc. Construit în 1808 acesta a fost renovat în urmă cu câțiva ani și găzduiește, în prezent, mai multe cafenele, restaurante și mici magazine. Acesta se află chiar la marginea Centrului Vechi al Capitalei, principalul punct de atracție pentru iubitorii vieții de noapte. Tot aici găsești și câteva obiective turistice importante - Palatul Voievodal Curtea Veche, Palatul BNR, Muzeul Național de Istorie a României și Muzeul Municipal București. Parcurile Izvor și Unirii sunt principalele spații verzi din această zonă. Nu trebuie să uiți însă că nu va trebui să mergi mult pentru a ajunge și la Grădina Cișmigiu sau în Parcul Tineretului. Poți merge, totodată, la un spectacol la Teatrul Evreiesc de Stat sau poți participa la evenimentele și la concertele care se organizează periodic în Piața Constituției de lângă Palatul Parlamentului. Poți lua parte la diverse evenimente și vizitând Biblioteca Națională a României, o altă clădire reprezentativă din această zonă. Ajungi foarte ușor, pe jos sau cu metroul, la Teatrul Național București în fața căruia găsești și un mic parc. Iar dacă toate acestea nu sunt de ajuns, atunci o plimbare pe Calea Victoriei și o vizită la numeroasele obiective de interes aflate de-a lungul ei cu siguranță te vor satisface. Cea mai bună parte este că această arteră de circulație se închide circulației rutiere uneori și devine strict pietonală. În plus, aici ai la dispoziție una dintre puținele piste dedicate bicicliștilor din oraș. Consultă harta pentru a vedea ce alte opțiuni de petrecere a timpului liber vei avea odată ce te vei muta în zona Unirii.
Dacă te vei muta în această zonă, vei putea apela în caz de nevoie la câteva clinici private. Printre acestea amintim Hiperclinica MedLife Unirii, clinica de stomatologie DentaLife și Medas Unirea. Unele dintre cele mai apropiate spitale la care vei avea acces vor fi Spitalul Cinic Colțea din Piața Universității și Spitalul Clinic Prof. Dr. Theodor Burghele, aflat în apropierea Palatului Parlamentului. Vezi pe hartă ce alte unități medicale se află în zona Unirii și în vecinătatea sa.
Centrul Vechi îți oferă numeroase opțiuni la acest capitol, iar câteva fast food-uri ai la dispoziție la parterul centrului comercial Unirea Shopping Center, situat chiar în Piața Unirii. Găsești câteva terase și pe malul Dâmboviței, lângă Biblioteca Națională a României. Dacă vrei să schimbi peisajul, poți să ajungi destul de repede cu mașina sau cu mijloacele de transport în comun la București Mall sau poți încerca una dintre numeroasele terase din Piața Alba Iulia sau de pe Bulevardul Decebal. Mai mult, ai relativ aproape și Calea Victoriei, perfectă pentru promenadă, dar și pentru un popas la restaurant. Consultă harta și află care sunt cele mai apropiate localuri de viitoarea ta locuință.
Găsești mai multe ATM-uri și sucursale bancare în Piața Unirii, unele dintre ele chiar în incinta complexului comercial Unirea Shopping Center. Vezi care este cel mai potrivit pentru tine de pe hartă.
Înainte să pleci...
Ești sigur că ai văzut și aceste proprietăți?
1.870 € / lună
București, Unirii
3 camere
75 mp
Etaj 4 / 5
1.870 € / lună
București, Unirii
3 camere
88 mp
Etaj 4
2.000 € + TVA / lună
București, Unirii
3 camere
139 mp
Etaj 3
Creează alertă
Salvează căutarea ca să primești pe email ultimele anunțuri publicate
Apartamente cu 3 camere de închiriat în zona Unirii, Sector 3
Cere detalii prin email
*
*
*
*
Detaliile tale de contact vor fi partajate cu Zece
Statistici proprietate
Apartamente 3 camere de închiriat
- București
- Zona Unirii