AFY Imobiliare va ofera spre inchiriere un apartament de lux in regim duplex, amplasat in Complexul Vulcan Residence.
Detalii generale
Tip proprietate: Apartament de lux cu 3 camere
Complex rezidențial: Vulcan Residence
Etaj: 11–12/12+ Etaj Tehnic
Regim: duplex
An construcție clădire: 2023
An amenajare apartament: 2025
Proprietar: persoană juridică
Compartimentare
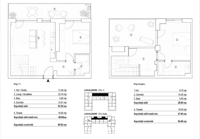
Etaj 11:
Living open space cu bucătărie
Dormitor cu canapea extensibila
Baie cu cabină de duș walk-in
Spații multiple de depozitare
Terasă
Casă a scării către nivelul superior
Etaj 12:
Dormitor matrimonial
Baie proprie cu cadă și două chiuvete
Hol amenajat ca birou
Terasă
Dotări și echipamente
Mașină de spălat rufe
Mașină de spălat vase
Frigider
Aragaz
Hotă
Cuptor electric
Cuptor cu microunde
Aer condiționat de capacitate mare
Televizor
Măsuță make-up
Toate electrocasnicele sunt noi
Clădire și facilități
Bloc modern cu 2 lifturi
Posibilitate de a inchiria inca un loc de parcare, suplimentar.
Avans 1 luna
Garantie o luna
Comision agenție: 50%
Apartamentul poate fi inchiriat si pentru destinatie activitati profesionale, nemobilat, contraa sumei de 2000 euro, sau mobilat in scop rezidential la pretul afisat in anunt.
Apartament premium, ideal pentru un stil de viață modern, cu spații generoase, terase ample și finisaje de calitate superioară.
Citește mai mult
Citește mai puțin
Confort lux
Decomandat
Acceptă animale de companie
Mobilat Lux
Aer condiționat
Calorifere
Centrală imobil
Încălzire prin pardoseală
3 Parcări
1 Garaj
Proprietate cu prețul cerut în afara intervalului mai multe...
Posibile explicații pentru faptul că prețul proprietății este peste cel maxim: imobil nou cu suprafață mare, are dotări și finisaje de lux.
Bine de știut: prețul unei proprietăți este influențat și de alte caracteristici, cum ar fi: vechime, localizare, vecinătăți, suprafață, compartimentare, amenajări, dotări, etc.
Sediul central - Timișoara
Bulevardul Victor Babeș nr. 2, 300230, Timișoara, România
Tel: +40.374.40.44.98 / Fax: +40.256.401.179
Email: suport@imobiliare.ro
Luni - Vineri 08:00 - 20:00
Punct de lucru - București: Iride Business Park, Bld. Dimitrie
Pompeiu 9-9A, Clădirea B2B,
020335, Sector 2, București, România
CONTACT
Sediul central - Timișoara
Bulevardul Victor Babeș nr. 2, 300230, Timișoara, România
Tel: +40.374.40.44.98 / Fax: +40.256.401.179
Email: suport@imobiliare.ro
Luni - Vineri 08:00 - 20:00
Punct de lucru - București: Iride Business Park, Bld. Dimitrie
Pompeiu 9-9A, Clădirea B2B,
020335, Sector 2, București, România
Statia RATB Favorit, linia troleibuz 69,71 si linia autobuz 126
aprox.
1649 m
Statia Piata Operei, linia 61,69,90,91
aprox.
1818 m
statia RATB Eroilor: 69, 96
aprox.
1828 m
Statia Stirbei Voda, linia 96
aprox.
1967 m
Fosta Gara Regala Cotroceni (en)
aprox.
1728 m
GRĂDINIȚA DE COPII NR. 33
aprox.
129 m
Gradinita nr. 75
aprox.
168 m
GRĂDINIȚA DE COPII NR. 75
aprox.
266 m
Vaporasul Copiilor
aprox.
403 m
Gradinita Micul Lord sediul I
aprox.
608 m
Gradinita Adnan
aprox.
769 m
Gradinita Micul Lord sediul II
aprox.
816 m
GRĂDINIȚA DE COPII NR. 178
aprox.
900 m
GRĂDINIȚA DE COPII ELECTROMAGNETICA
aprox.
1001 m
Gradinita Cuibusorul Zanelor
aprox.
1093 m
Gradinita nr.55 Floarea Soarelui
aprox.
1159 m
Gradinita nr. 268
aprox.
1208 m
Gradinita de copii nr. 270
aprox.
1586 m
Gradinita nr. 269
aprox.
1589 m
Gradinita nr. 271
aprox.
1622 m
Grupul Scolar Industrial Dimitrie Gusti
aprox.
207 m
Liceul Tehnologic Dimitrie Gusti
aprox.
240 m
aa
aprox.
286 m
Scoala nr 115
aprox.
321 m
Scoala Nr. 115
aprox.
334 m
Liceul Teoretic "Stefan Odobleja"
aprox.
452 m
ȘCOALA CU CLASELE I-VIII NR. 132
aprox.
646 m
Scoala nr. 132
aprox.
671 m
132
aprox.
677 m
Scoala Generala nr 132
aprox.
680 m
David center
aprox.
681 m
Gradinita
aprox.
683 m
Happy Planet Kids
aprox.
702 m
Scoala nr. 280
aprox.
795 m
ȘCOALA CU CLASELE I-VIII NR. 280
aprox.
809 m
Universitatea Nationala de Aparare "Carol I"
aprox.
1130 m
Camin
aprox.
1183 m
Advanced Distributed Learning Department - "Carol I" National Defence University (en)
aprox.
1187 m
Facultatea de Chimie a UB
aprox.
1227 m
Facultatea de chimie
aprox.
1237 m
Sala de Sport
aprox.
1272 m
Facultatea de Administratie si Afaceri
aprox.
1308 m
Laborator al Facultatii de Chimie
aprox.
1333 m
Academia Tehnica Militara
aprox.
1531 m
Casa Academiei
aprox.
1597 m
Facultatea de medicina veterinara
aprox.
1602 m
Facultatea de Medicina Veterinara (en)
aprox.
1683 m
Facultatea de Moase si Asistenta Medicala
aprox.
1695 m
Facultatea de Jurnalism
aprox.
1748 m
Corp A
aprox.
1765 m
Prosper Plaza
aprox.
132 m
Complex Comercial Nick Center
aprox.
224 m
Mega Image
aprox.
275 m
Mayo Next
aprox.
299 m
Carrefour Vulcan
aprox.
422 m
Kaufland Sebastian
aprox.
442 m
Jysk
aprox.
594 m
Lidl
aprox.
660 m
Mega Image
aprox.
672 m
Magazin Non-Stop
aprox.
741 m
Supermarket Miruna
aprox.
795 m
Carrefour Panduri
aprox.
872 m
Mega Image Rahova
aprox.
921 m
Carrefour express
aprox.
937 m
Profi
aprox.
1115 m
Parcare
aprox.
26 m
Parcare
aprox.
76 m
Parcare
aprox.
92 m
Parcare
aprox.
419 m
Parcare
aprox.
493 m
Parcare
aprox.
519 m
Parcare privata
aprox.
593 m
Parcare
aprox.
601 m
Parcare
aprox.
653 m
Parcare
aprox.
675 m
Parcare
aprox.
686 m
Parcare
aprox.
689 m
Parcare
aprox.
730 m
Parcare
aprox.
867 m
Parcare
aprox.
883 m
Parculet
aprox.
234 m
Parcul Sebastian
aprox.
524 m
Parcul Sebastian
aprox.
524 m
Parc
aprox.
589 m
Parc
aprox.
603 m
Miniparculet
aprox.
671 m
Miniparculet
aprox.
719 m
Parc
aprox.
745 m
Parc
aprox.
876 m
Parc
aprox.
886 m
Loc Joaca
aprox.
931 m
Loc Joaca
aprox.
940 m
Loc de joaca
aprox.
957 m
Loc de joaca
aprox.
986 m
Parcul Romniceanu
aprox.
1050 m
Jose Rizal Square (en)
aprox.
621 m
Piata Arsenalului
aprox.
1061 m
P-ta Chirigiu
aprox.
1198 m
Piața Eroilor
aprox.
1292 m
Intersectia Leu
aprox.
1780 m
Piața Regina Maria
aprox.
1848 m
Teren sportiv
aprox.
862 m
Teren sportiv
aprox.
961 m
Icar
aprox.
965 m
Teren sportiv
aprox.
982 m
Teren sportiv
aprox.
996 m
Teren Fotbal
aprox.
1020 m
Teren sportiv
aprox.
1035 m
Stadionul Cotroceni
aprox.
1098 m
Teren Fotbal
aprox.
1215 m
Teren Antrenament
aprox.
1222 m
Teren fotbal
aprox.
1281 m
Teren Fotbal American
aprox.
1285 m
Teren tenis
aprox.
1322 m
Teren tenis
aprox.
1330 m
Teren sportiv
aprox.
1382 m
Synevo Sebastian
aprox.
211 m
Clinica AGERMED (en)
aprox.
219 m
Medic line
aprox.
220 m
SpeedVet
aprox.
544 m
Institutul National pentru medicina complementara si alternativa
aprox.
723 m
Centru Medical Panduri (en)
aprox.
774 m
Centrul Medical Panduri
aprox.
787 m
Clinica medicala dentara (en)
aprox.
791 m
Spitalul Clinic Profesor Doctor Theodor Burghele
aprox.
821 m
Institutul National de Expertiza Medicala si Recuperare a Capacitatii de Munca
aprox.
824 m
I.N.E.M.R.C.M. - Institutul National de Expertiza Medicala si Recuperare a Capacitatii de Munca
aprox.
828 m
Spitalul clinic Prof. Dr. Th. Burghele
aprox.
830 m
Discovery Clinic (en)
aprox.
834 m
Policlinica Panduri
aprox.
838 m
SC PETRIMED SRL - Surgery (en)
aprox.
875 m
Rondfarm
aprox.
281 m
Helpnet
aprox.
286 m
Farmacia Mentona
aprox.
315 m
Ivo Pharm Impex
aprox.
336 m
Farmacia Mentona
aprox.
535 m
Help Net Farma
aprox.
564 m
Farmacia Dona
aprox.
701 m
Sensiblu
aprox.
745 m
Farmatop-Floris
aprox.
748 m
Help Net
aprox.
758 m
Catena Farmacie
aprox.
774 m
Farmacia Belladonna 25
aprox.
797 m
Help Net Farma
aprox.
860 m
Farmacia Dona 196
aprox.
888 m
Belladona Non-Stop
aprox.
919 m
The Roof
aprox.
111 m
DanDana
aprox.
246 m
Caffe No. 35
aprox.
1717 m
Marvin bar&more
aprox.
1778 m
La Jeg
aprox.
1862 m
Braserie Cosbuc
aprox.
1884 m
Shaorma spot (en)
aprox.
132 m
La Conac
aprox.
236 m
Restaturant Lira
aprox.
236 m
Casa Bia
aprox.
304 m
Casa Brandusa
aprox.
328 m
Tip-Top
aprox.
418 m
Paradise Grill
aprox.
593 m
La Elena
aprox.
599 m
Restaurant Lantic
aprox.
614 m
Restaurantul Atlantic
aprox.
622 m
Pizza Smiley
aprox.
637 m
Taj
aprox.
666 m
Cesme
aprox.
677 m
Casa pizza
aprox.
677 m
Restaurantul TAJ (en)
aprox.
679 m
Anturaj Caffe
aprox.
481 m
Mall Liberty
aprox.
1118 m
Blitz Caffe
aprox.
1207 m
B V M Sala Ps @ xbox
aprox.
1555 m
Ceainaria Cotroceni
aprox.
1613 m
Pardon Cafe
aprox.
1763 m
Jessie's
aprox.
1777 m
Lala Cafe
aprox.
1792 m
Roland 1811 cafe
aprox.
1800 m
Victor Pub
aprox.
620 m
Snatch Pub
aprox.
728 m
Taverna Bradet
aprox.
1528 m
Raiffaisen Bank
aprox.
132 m
BCR
aprox.
315 m
Volksbank
aprox.
423 m
ING Kaufland Sebastian
aprox.
438 m
Banca Carpatica (en)
aprox.
539 m
Alpha bank (en)
aprox.
539 m
Banca Carpatica
aprox.
539 m
Alpha Bank
aprox.
551 m
BCR
aprox.
571 m
Banca Comerciala Romana
aprox.
576 m
UniCredit Bank - Ag. Panduri
aprox.
679 m
UniCredit Tiriac bank
aprox.
698 m
RIB Romanian International Bank
aprox.
705 m
Banca Transilvania
aprox.
705 m
Emporild Bank
aprox.
705 m
Zona Rahova este traversată de traseele mai multor mijloace de transport în comun. Printre acestea amintim tramvaiul 32 care are capătul la Autogara Internațională Rahova, parcurge Șoseaua Alexandriei și Calea Rahovei și oferă o legătură directă cu zona Piața Unirii din centrul orașului. Autobuzul 220 este o bună opțiune de transport pentru a ajunge în cartierul vecin, Ferentari, iar autobuzul 139 te va duce până în apropierea Campusului Studențesc Leu, în zona Politehnică. Un dezavantaj îl poate reprezenta faptul că în acest cartier nu există nicio stație de metrou care să-ți ofere o legătură rapidă cu alte părți ale orașului. Consultă harta și vezi unde sunt amplasate stațiile mijloacelor de transport în comun.
În zona Rahova există numeroase unități de învățământ, atât de stat, cât și private. Printre acestea amintim Liceul Teoretic "Dimitrie Bolintineanu", Liceul Teoretic "Ștefan Odobleja", inaugurat la sfârșitul anului 2002, și centrul educațional privat Montessori, care cuprinde atât o grădiniță, cât și un afterschool. Găsești pe hartă și alte instituții de învățământ aflate în zona Rahova și în vecinătatea acesteia.
Dacă te vei muta în zona Rahova, vei avea la dispoziție numeroase magazine, centre comerciale, piețe și chiar și un mall unde îți vei putea face cumpărăturile. Printre acestea amintim hipermarketul Cora Alexandria aflat lângă Autogara Internațională Rahova, centrul comercial Vulcan Value Centre și mall-ul Liberty Shopping Center, ambele aflate în zona Trafic Greu. Piața Pucheni, unul dintre cele mai mari angro-uri de legume și fructe din București, se află și ea tot în zona Rahova. Vei avea la dispoziție, totodată, Piața Rahova și complexul comercial Năsăud Shopping Center. Lângă Depoul Alexandria găsești o galerie comercială ce include un hipermarket Cora, iar pe Strada Teiuș un magazin Lidl. Consultă harta pentru a afla care va fi cel mai apropiat magazin de viitoarea ta locuință.
Dacă ai mașină, atunci trebuie să știi că în Rahova numărul locurilor de parcare este limitat, iar principalele artere de circulație sunt aglomerate în special la orele de vârf. Îți recomandăm să nu pierzi din vedere posibilitatea închirierii unui loc de parcare de la Serviciul Parcaje Scop Reședință din cadrul ADP Sector 5. Consultă harta pentru a afla unde sunt poziționate principalele parcări din cartier.
În zona Rahova spațiile verzi sunt puține și de mici dimensiuni. Parcul Sebastian este cel mai mare din cartier. Acesta este încadrat între străzile Mihail Sebastian, Făt Frumos, Moțoc și Dumbrava Nouă și cuprinde locuri de joacă pentru copii și terenuri de sport la care poți avea acces gratuit. Tot aici se organizează periodic diverse evenimente sau concerte. Dacă te vei muta în apropierea Șoselei Sălaj, care delimitează cartierele Rahova și Ferentari, vei avea la doi pași de casă Parcul Pecineaga. Mall-ul Liberty Shopping Center, aflat în zona Trafic Greu, oferă mai multe opțiuni de petrecere a timpului liber indoor. Aici vei găsi, printre altele, câteva săli de sport și un cinematograf. Ajungi foarte repede de aici și în centrul orașului unde ai numeroase alte opțiuni de petrecere a timpului liber. Află de pe hartă ce alte puncte de interes există în zona Rahova și în vecinătatea sa.
Dacă te vei muta în Rahova, vei avea la dispoziție mai multe clinici și cabinete private la care vei putea apela în caz de nevoie. Cu toate acestea, în cartier nu există niciun spital de stat de mari dimensiuni. Poți să ajungi, însă, destul de rapid la Institutul de Pneumoftiziologie "Matei Nasta" sau la Spitalul Clinic "Prof. Dr. Theodor Burghele". Printre unitățile medicale din zonă amintim clinica AIS, Policlinica Rahova și Clinica medicală Lil Med. Vezi pe hartă unde sunt localizate.
Ai la dispoziție mai multe localuri pe Șoseaua Alexandriei, iar pe Strada Progresului în cadrul centrului comercial Vulcan Value Centre găsești câteva fast food-uri. Alte câteva restaurante de tip fast food pot fi găsite și în incinta mall-ului Liberty Center. Cartierul Rahova se extinde până aproape de Unirii, motiv pentru care, în funcție de zona în care locuiești, poți să ajungi chiar și în câteva minute cu mașina până la restaurantele și cafenelele din Centrul Vechi. Destul de repede poți să ajungi și la AFI Cotroceni, dacă vrei la mall nu doar pentru o sesiune de shopping, ci și pentru a lua masa în oraș. Food court-ul de aici dispune de numeroase opțiuni pentru toate gusturile. Consultă harta și află ce restaurante și terase găsești în apropierea casei tale.
Găsești cele mai multe bancomate pe Șoseaua Alexandriei și pe Calea Rahovei. Consultă harta pentru a vedea poziționarea lor exactă.
Înainte să pleci...
Ești sigur că ai văzut și aceste proprietăți?
1.028 €
/ lună
850 € +TVA
București, Cotroceni
2 camere
50 mp
Etaj 9 / 11
900 €
/ lună
București, Cotroceni
3 camere
70 mp
Demisol / 1
900 €
/ lună
București, Cotroceni
3 camere
90 mp
Etaj 2 / 11
Creează alertă
Salvează căutarea ca să primești pe email ultimele anunțuri publicate
Apartamente cu 3 camere de închiriat în zona Sebastian, Sector 5
Cere detalii prin email
*
*
*
*
Detaliile tale de contact vor fi partajate cu Afy Imobiliare