Inchiriere apartament 2 camere Pipera, Residence 5, Școală Americana

750 € / lună

Voluntari, Județul Ilfov

Nr. cam.:
2
Sup. utilă:
58 mp
Etaj:
Parter / 5
An constr.:
2025
  • • Comision 0%
  • • Locație exactă

Descriere apartament

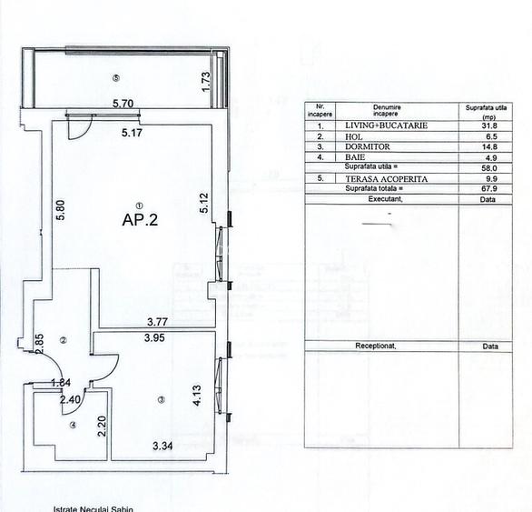
Închiriez apartament 2 camere, decomandat in complexul Residence 5 Forest apartments, complex localizat intre șoseaua Iancu Nicolae si Școală Americana; apartamentul se afla la parter, si este alcătuit din: hol de 6,5 mp, living + bucătărie (bucătărie deschisă) de 31,8 mp, dormitor de 14,8 mp, baie cu cabina de dus de 4,9 mp si terasa acoperita plus grădină de aproximativ 40 mp; Apartamentul se închiriază complet mobilat si utilat, este la prima închiriere si are loc de parcare subteran. One bedroom apartment for rent, with hallway, located in Residence 5 Forest apartments complex, a complex located between Iancu Nicolae Road and American School; the apartment is on the ground floor, and consists of: 6.5 sq m hall, living room + kitchen (open kitchen) of 31.8 sq m, 14.8 sq m bedroom, 4.9 sq m bathroom with shower cabin and covered terrace plus garden of approximately 40 sq m; The apartment is rented fully furnished and equipped, it is on the first rental and has an underground parking space.
Citește mai mult Citește mai puțin
Confort lux Decomandat 1 Balcon / Terasă / Logie Centrală imobil 1 Parcare / Garaj / Parcare subterană

Detalii apartament

ID anunț: XV10005ME Copiat! 274279916 Copiat!
Actualizat în: 22 Aprilie 2026
Nr. băi: 1
Tip imobil: Bloc de apartamente
Regim înălțime: P+5E
Lift: Da

Utilități

Utilități
Canalizare Gaze
Comision
0%

Puncte de interes

Școală
kindergarten
Kindergarden
Gradinițe aprox. 238 m
school
Happy Children Academy
Școli aprox. 322 m
university
School American Bucharest-Voluntari
Universități aprox. 1295 m
kindergarten
Echilibria 1
Gradinițe aprox. 1600 m
Recreere
supermarket
Mega Image Pipera Liziera
Supermarket aprox. 514 m
cafe
Doncafe Brasserie
Cafenea aprox. 895 m
sports-ground
Teren sportiv
Terenuri sport aprox. 1107 m
park
Private Skatepark (en)
Parcuri aprox. 1127 m

Detalii despre preț și costuri

Prețul pe piață

Preț cerut: 750 €

Preț min. zonă
Preț max. zonă

55% dintre proprietățile similare ca zonă și nr. camere au prețul cerut mai mare. mai multe...

Bine de știut: prețul unei proprietăți este influențat și de alte caracteristici, cum ar fi: vechime, localizare, vecinătăți, suprafață, compartimentare, amenajări, dotări, etc. mai puțin...

Insight premium disponibil după login

Proprietăți recomandate

Detalii de contact

Vladoianu Carmen

Vladoianu Carmen

Abonează-te la newsletter să fii primul care primește cele mai noi recomandări de proprietăți și sfaturi de la experți.

CONTACT

Creează alertă

Salvează căutarea ca să primești pe email ultimele anunțuri publicate

Apartamente cu 2 camere de închiriat în Voluntari, Județul Ilfov