Inchiriere apartament 3 camere – Cortina North, Pipera

1.200 € / lună

Voluntari, Județul Ilfov

Nr. cam.:
3
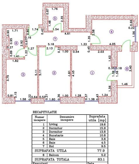
Sup. utilă:
77,9 mp
Etaj:
10 / 10
An constr.:
2024 (Finalizată)
  • • Locație aproximativă

Descriere apartament

Descoperă rafinamentul și confortul urban oferite de Cortina North, unul dintre cele mai moderne ansambluri rezidențiale din nordul Bucureștiului, situat pe Bulevardul Pipera 1/VII A, Voluntari. Apartamentul propus spre inchiriere este decomandat, spațios și complet echipat, situat la etajul 10, cu vedere deschisă și finisaje de excepție. Detalii apartament: Suprafață totală: 83 mp Compartimentare: 3 camere decomandate, 2 băi, bucătărie închisă, 1 balcon Etaj: 10 / 10 An construcție: 2024 Regim de înălțime al clădirii: P + 10 etaje Confort: Lux Mobilat și utilat complet – mobilier premium, design modern Dotări și electrocasnice incluse: Aragaz, plită, hotă Frigider, mașină de spălat vase Mașină de spălat rufe + mașină de uscat TV Smart cu diagonală 189 cm Avantaje & facilități: Finisaje de top, materiale de ultimă generație Sistem de climatizare performant Ferestre panoramice și izolare fonică Parcare subterană și pază permanentă Spații comune moderne – lobby elegant, lifturi rapide, sală de fitness, zone verzi Vecinătăți și puncte de interes: Promenada Mall, Aviatiei, Floreasca, Barbu Văcărescu – la 5–10 minute Kaufland Pipera, Pipera Plaza, restaurante și cafenele în apropiere Hub-ul de birouri Pipera – Dimitrie Pompeiu Școli și grădinițe de top: Mark Twain, Questfield, British School, Little London Acces rapid către A3, Șoseaua Pipera-Tunari și Centura Bucureștiului Informații suplimentare: Disponibilitate de inchiriere: imediată Preț: 1200 EUR - Negociabil Inchiriere direct de la persoană fizică (fără TVA)
Citește mai mult Citește mai puțin
Confort lux Decomandat Mobilat Lux 1 Balcon / Terasă / Logie Aer condiționat Calorifere Centrală proprie

Detalii apartament

ID anunț: XG2K1000E Copiat! 271608435 Copiat!
Actualizat în: 10 Martie 2026
Nr. bucătării: 1
Nr. băi: 2
Tip imobil: Bloc de apartamente
Regim înălțime: P+10E

Utilități

Destinație
Rezidențial
Pereți
Vopsea lavabilă
Podele
Parchet
Ușă intrare
Metal
Ferestre cu geam termopan
PVC
Contorizare
Apometre Contor căldură Contor gaz
Bucătărie
Mobilată Utilată
Electrocasnice
Aragaz Frigider Hotă Mașină de spălat Mașină spălat vase TV
Facilități imobil
Interfon Lift
Utilități
Curent Apă Canalizare CATV Gaze Telefon
Internet
Cablu
Servicii imobil
Supraveghere video
Amenajare străzi
Iluminat stradal Mijloace de transport în comun Asfaltate
Comision
standard

Certificat energetic:

Clasa energetică: A

Vecinătăți:

Vecinătăți și puncte de interes – Cortina North, Pipera

Situat în nordul Capitalei, pe Bulevardul Pipera 1/VII A, ansamblul Cortina North oferă o poziție excelentă, cu acces rapid către principalele zone de business și lifestyle din București.

La doar câteva minute de:

Aviatiei, Floreasca și Promenada Mall

Hub-ul de birouri Pipera – Barbu Văcărescu – Dimitrie Pompeiu

Kaufland Pipera și Pipera Plaza – pentru cumpărături și restaurante

Școli și grădinițe de top: Mark Twain, Questfield, British School, Little London

Zone verzi și relaxare: Parcul Herăstrău, Pădurea Băneasa, Stejarii Country Club

Acces facil la transport public, autostrada A3 și principalele artere din nordul Bucureștiului.
Un amplasament premium, ideal pentru un stil de viață activ, modern și conectat.

Disponibilitate proprietate:

data_properties.property_availability.Imediat

Puncte de interes

Mijloace transport
bus-station
Capat C.F.R Constanta linii : 112,135,445
Stații autobuz aprox. 533 m
tram-station
Rocin
Stații tramvai aprox. 618 m
bus-station
Rocin
Stații autobuz aprox. 618 m
metro-station
Pipera (M2)
Stații metrou aprox. 916 m
Școală
school
Colegiul Tehnic Edmond Nicolau, fostul Electronica
Școli aprox. 1444 m
kindergarten
Gradinita Zece
Gradinițe aprox. 1498 m
school
Grupul Scolar Industrial Constantin Brancusi (en)
Școli aprox. 1542 m
kindergarten
Echilibria 1
Gradinițe aprox. 1791 m
Recreere
restaurant
Q's Inn
Restaurant aprox. 447 m
park
spatiu verde
Parcuri aprox. 533 m
supermarket
Kaufland
Supermarket aprox. 586 m
sports-ground
Teren sportiv
Terenuri sport aprox. 1369 m

Detalii despre preț și costuri

Prețul pe piață

Preț cerut: 1.200 €

Preț min. zonă 650 €
Preț max. zonă 1.890 €

55% dintre proprietățile similare ca zonă și nr. camere au prețul cerut mai mare. mai multe...

Bine de știut: prețul unei proprietăți este influențat și de alte caracteristici, cum ar fi: vechime, localizare, vecinătăți, suprafață, compartimentare, amenajări, dotări, etc. mai puțin...

Proprietăți recomandate

Detalii de contact

ASCENDO IMOBILIARE

Mihai Nedelcu Broker Imobiliar

ASCENDO IMOBILIARE

Abonează-te la newsletter să fii primul care primește cele mai noi recomandări de proprietăți și sfaturi de la experți.

CONTACT

Creează alertă

Salvează căutarea ca să primești pe email ultimele anunțuri publicate

Apartamente cu 3 camere de închiriat în Voluntari, Județul Ilfov