DIRECT DEZVOLTATOR - 2 CAMERE cu mutare RAPIDA!

59.000 € + TVA

1 Decembrie, Județul Ilfov

Nr. cam.:
2
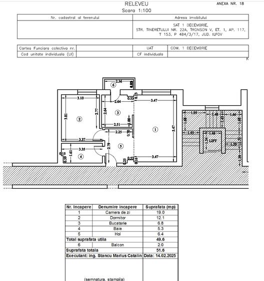
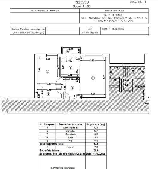
Sup. utilă:
53 mp
Etaj:
1 / 3
An constr.:
2025 (Finalizată)
  • • Comision 0%
  • • Locație exactă
  • • Vizionare prin apel video

Descriere apartament

PRINDE OFERTA! Apartamente cu 2 CAMERE LA CHEIE, LA DOAR 59.000 EUR + TVA = 71.390 EUR Adresa: Comuna 1 Decembrie, Strada Tineretului, nr. 24, Judet Ilfov. Proiectele noastre se afla la nici mai putin de 15 minute distanta de statia de metrou Eroii Revolutiei, intr-un loc in care linistea predomina si confortul este la el acasa. Toate blocurile au un regim redus de inaltime, iar comunitatea este prietenoasa si primitoare. Aici veti putea construi caminul perfect pentru familia dumneavoastra! X - Residence este un Complex Rezidential format din 4 proiecte MARI: PROIECT 1 - format din 96 aparatmente - SOLD OUT! PROIECT 2 – format din 26 case individuale cu gradina proprie – SOLD OUT! PROIECT 3 - format din 56 apartamente cu 2 si 3 camere, VANDUT 95% -Mutarea se poate face IMEDIAT! PROIECT 4 - format din 32 apartamente cu 2 si 3 camere cu gradina sau terasa individuala- VANDUT 15% - Mutarea se poate face in IUNIE 2026! 96 LOCURI PARCARE CU ACCES SECURIZAT! Alte informatii: Distanta pana la metrou Eroii Revolutiei se poate parcurge astfel: - in 15 Minute cu masina personala/uber/taxi - in 25 Minute cu mijlocul de transport in comun, R418 (statia Liviu Rebreanu se afla la 7 minute distanta de bloc), R465 (statia Carpati se afla la 2 minute distanta de bloc) - Maxi-Taxi. Detalii FINISAJE: • Internet si TV - instalate • Calorifere din otel si distribuitor pentru fiecare circuit (ROMSTAL) • Circuite electrice separate pentru prize, becuri si consumatori mari • Centrala termica proprie pe gaz (ROMSTAL) cu contor individual • Preinstalare aer conditionat, centrala termica si hota (carotaje in beton pentru alimentare si evacuare) • Usa de acces metalica marca Mega Door culoare gri antracit • Usi interior din lemn cu furnir natural Ferestre din PVC cu geam termopan marca SALAMANDER • Pardoseala living, hol, dormitor din parchet laminat de 8 mm cu plinta • Sistem de ventilatie in baie si bucatarie • Pardoseala balcon din placi ceramice antiderapante • Baie cu cada pentru fiecare apartament + gresie si faianta • zolatie exterioara cu polistiren EPS 100 de 10 cm COMISION 0 % Acceptam orice varianta de CREDIT BANCAR Nu acceptam RATE LA DEZVOLTATOR COMPLEXUL REZIDENTIAL ESTE RACORDAT LA TOATE UTILITATILE Pentru mai multe informatii/detalii stabilirea unei vizionari va rugam sa ne contactati telefonic/whatsapp.
Citește mai mult Citește mai puțin
Confort lux Semidecomandat Nemobilat 1 Balcon / Terasă / Logie Aer condiționat Calorifere Centrală proprie Renovat

Detalii apartament

ID anunț: XA270003E Copiat! 263772231 Copiat!
Actualizat în: 06 Martie 2026
Suprafață utilă totală: 53 mp
Suprafață construită: 55 mp
Nr. bucătării: 1
Nr. băi: 1
Structură rezistență: Beton
Tip imobil: Bloc de apartamente
Regim înălțime: P+3E

Utilități

Destinație
Rezidențial
Pereți
Faianță Vopsea lavabilă
Podele
Gresie Parchet
Ușă intrare
Metal
Uși interior
Panel
Izolații termice
Exterior
Ferestre cu geam termopan
PVC
Contorizare
Contor gaz Apometre
Utilități
Curent Apă Canalizare
Internet
Fibră optică Wireless
Servicii imobil
Administrare Supraveghere video
Amenajare străzi
Asfaltate Iluminat stradal Mijloace de transport în comun
Comision
0%

Certificat energetic:

Clasa energetică: B

Vicii:

LIBER DE SARCINI

Vecinătăți:

Bucuresti - 10 minute distanta cu masina
Parcul Comana - 20 minute distanta cu masina
Piata UNIRII - 30 minute cu masina
Metrou TINERETULUI - 30 minute cu masina
Vama Girugiu - 40 minute distanta cu masina
Restaurante, Scoli, Hypermarket

Disponibilitate proprietate:

IMEDIAT

Puncte de interes

Școală
school
GreenCity kindergarden (en)
Școli aprox. 771 m
school
scoala 305 (noua)
Școli aprox. 873 m
school
scoala 305 (veche)
Școli aprox. 1208 m
Recreere
supermarket
Mega Image - Green City
Supermarket aprox. 419 m
park
Parc
Parcuri aprox. 759 m
restaurant
Renaissance Restaurant GreenCity (en)
Restaurant aprox. 774 m
park
Parc
Parcuri aprox. 818 m

Detalii despre preț și costuri

Costuri cu achiziția

Fără credit
4.765 RON
Credit ipotecar
6.084 RON
Noua casă
504 RON+ taxe notariale

i

Costuri adiționale mai puțin știute la achiziție: taxe notariale, comisioane etc.

Proprietăți recomandate

Detalii de contact

X imobiliare

residence X imobiliare Agentie IMOBILIARA

X imobiliare
PRO

Abonează-te la newsletter să fii primul care primește cele mai noi recomandări de proprietăți și sfaturi de la experți.

CONTACT

Creează alertă

Salvează căutarea ca să primești pe email ultimele anunțuri publicate

Apartamente noi cu 2 camere de vânzare în 1 Decembrie, Județul Ilfov