1

Apartament decomandat cu CF, etaj 1, 60 mp, 2 balcoane 14mp, Apahida

89.000 €

Apahida, Județul Cluj

Nr. cam.:
2
Sup. utilă:
60 mp
Etaj:
1 / 2
An constr.:
2025 (La gri)
  • • Locație aproximativă

Descriere apartament

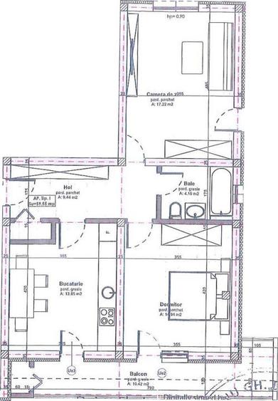
Blitz ofera spre vanzare apartament situat la etajul 1 al unui imobil cu 3 etaje. Suprafata utila este de 60 mp. Compartimentarea este decomandata si se prezinta astfel: hol, living, bucatarie, dormitor, baie si 2 balcoane. Impreuna cu apartamentul se achizitioneaza si un loc de parcare la 4000 de euro. Se preda semifinisat, cu centrala termica proprie, usa metalica la intrare, ****************** pe pozitie, zugravit in alb. Pretul nu include TVA de 21% Proiect finalizat Cod ofertă / ID BLITZ: P2046
Citește mai mult Citește mai puțin
Decomandat Nemobilat Bine întreținut (Bună) Zonă rurală

Detalii apartament

ID anunț: XFTI1006U Copiat! 261060649 Copiat!
Actualizat în: 14 Aprilie 2026
Nr. băi: 1
Structură rezistență: Cărămidă
Tip imobil: Bloc de apartamente
Regim înălțime: P+2E

Utilități

Izolații termice
Exterior Interior
Comision
2%

Puncte de interes

Mijloace transport
bus-station
Gara Apahida
Stații autobuz aprox. 719 m
Școală
kindergarten
Gradinita
Gradinițe aprox. 900 m
school
Scoala Noua
Școli aprox. 951 m
school
Scoala Veche
Școli aprox. 1776 m
Recreere
sports-ground
Terend de Fotbal
Terenuri sport aprox. 408 m
pub
Birtul local
Pub aprox. 418 m
sports-ground
Teren de Tenis
Terenuri sport aprox. 445 m
restaurant
Victoria
Restaurant aprox. 605 m

Detalii despre preț și costuri

Prețul pe piață

Preț cerut: 89.000 €

Preț min. zonă
Preț max. zonă

83% dintre proprietățile similare ca zonă și nr. camere au prețul cerut mai mare. mai multe...

Bine de știut: prețul unei proprietăți este influențat și de alte caracteristici, cum ar fi: vechime, localizare, vecinătăți, suprafață, compartimentare, amenajări, dotări, etc. mai puțin...

Insight premium disponibil după login

Costuri cu achiziția

Fără credit
Credit ipotecar
Noua casă

i

Costuri adiționale mai puțin știute la achiziție: taxe notariale, comisioane etc.

Insight premium disponibil după login

Proprietăți similare

Apartament cu 2 camere decomandat în Apahida
89.900 €
Județul Cluj, Apahida
2 camere
40 mp
Etaj 1 / 5
Apartament cu 2 camere semidecomandat, mobilat în Apahida
92.000 €
Județul Cluj, Apahida
2 camere
42 mp
Etaj 1 / 4
Apartament cu 3 camere în Apahida
96.000 €
Județul Cluj, Apahida
3 camere
64 mp
Etaj 3 / 3

Detalii de contact

BLITZ

BLITZ ROMANIA

4.70(108 review-uri)

BLITZ
PRO

Abonează-te la newsletter să fii primul care primește cele mai noi recomandări de proprietăți și sfaturi de la experți.

CONTACT

Creează alertă

Salvează căutarea ca să primești pe email ultimele anunțuri publicate

Apartamente cu 2 camere de vânzare în Apahida, Județul Cluj