2

Apartament cu 3 camere, bloc nou, Apahida.

95.760 € + TVA

Apahida, Județul Cluj

Nr. cam.:
3
Sup. utilă:
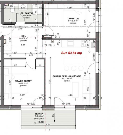
63,84 mp
Etaj:
1 / 3
An constr.:
2025 (Finalizată)
  • • Locație exactă

Descriere apartament

Apartament cu 3 camere de vanzare in Apahida, zona strazii Libertatii. Suprafata utila este de 63,84 mp. Compartimentarea este eficienta si cuprinde hol, living cu bucatarie open-space, 2 dormitoare, o baie si balcon de 7,36 mp. Apartamentul se vinde semifinisat. Este dotat cu centrala termica proprie, incalzire in pardoseala, geamuri termopan si usa metalica la intrare. Baia este finisata cu gresie si faianta. Blocul este nou, recent finalizat. Locatia este linistita, aproape de oras si de mijloacele de transport in comun. Este o alegere excelenta pentru locuinta proprie sau investitie. Contacteaza-ne pentru mai multe detalii sau pentru a programa o vizionare. La pretul afisat se adauga TVA.
Citește mai mult Citește mai puțin
Confort 1 Semidecomandat Nemobilat 1 Balcon / Terasă / Logie Centrală proprie Încălzire prin pardoseală Zonă rurală

Detalii apartament

ID anunț: X8OK100LA Copiat! 270686983 Copiat!
Actualizat în: 15 Ianuarie 2026
Suprafață construită: 71 mp
Nr. bucătării: 1
Nr. băi: 1
Structură rezistență: Cărămidă
Tip imobil: Bloc de apartamente
Regim înălțime: P+3E

Utilități

Destinație
Rezidențial
Utilități
Curent Apă Canalizare Gaze
Facilități imobil
Interfon
Ușă intrare
Metal
Izolații termice
Bloc izolat termic
Ferestre cu geam termopan
PVC
Amenajare străzi
Asfaltate Betonate Iluminat stradal Mijloace de transport în comun
Comision
2%

Certificat energetic:

Clasa energetică: B

Disponibilitate proprietate:

imediat

Puncte de interes

Mijloace transport
bus-station
Gara Apahida
Stații autobuz aprox. 96 m
Școală
kindergarten
Gradinita
Gradinițe aprox. 1630 m
school
Scoala Noua
Școli aprox. 1661 m
kindergarten
Gradinita
Gradinițe aprox. 1790 m
Recreere
restaurant
Victoria
Restaurant aprox. 197 m
pub
Birtul local
Pub aprox. 420 m
sports-ground
Terend de Fotbal
Terenuri sport aprox. 1190 m
sports-ground
Teren de Tenis
Terenuri sport aprox. 1228 m

Detalii despre preț și costuri

Prețul pe piață

Preț cerut: 95.760 €

Preț min. zonă 84.900 €
Preț max. zonă 167.000 €

87% dintre proprietățile similare ca zonă și nr. camere au prețul cerut mai mare. mai multe...

Bine de știut: prețul unei proprietăți este influențat și de alte caracteristici, cum ar fi: vechime, localizare, vecinătăți, suprafață, compartimentare, amenajări, dotări, etc. mai puțin...

Costuri cu achiziția

Fără credit
18.673 RON
Credit ipotecar
20.278 RON
Noua casă
731 RON+ taxe notariale

i

Costuri adiționale mai puțin știute la achiziție: taxe notariale, comisioane etc.

Proprietăți recomandate

Detalii de contact

Ava Invest

Laura Bratfalean Consilier Imobiliar

Ava Invest

Abonează-te la newsletter să fii primul care primește cele mai noi recomandări de proprietăți și sfaturi de la experți.

CONTACT

Creează alertă

Salvează căutarea ca să primești pe email ultimele anunțuri publicate

Apartamente noi cu 3 camere de vânzare în Apahida, Județul Cluj