Apartament 2 dormitoare, living cu bucatarie, TVA inclus

98.000 €

Apahida, Județul Cluj

Nr. cam.:
3
Sup. utilă:
58 mp
Etaj:
2 / 2
Tip prop.:
Bloc de apartamente
  • • Locație aproximativă

Descriere apartament

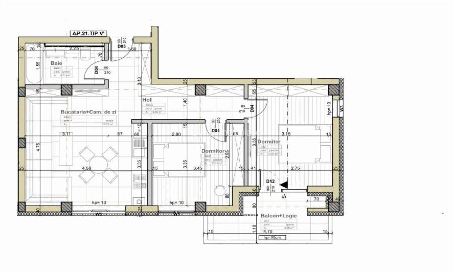
Iti prezentam un apartament modern cu o camera, situat intr-o zona linistita din Apahida, ideal pentru locuinta personala sau investitie sigura. Apartamentul are o suprafata utila de 58 mp si se afla la etajul doi al unui bloc nou, aflat in curs de finalizare. Compartimentarea este practica si luminoasa, iar confortul termic este asigurat de incalzirea in pardoseala si centrala termica proprie. Locuinta beneficiaza si de o terasa spatioasa perfecta pentru relaxare, precum si de un spatiu de depozitare, un detaliu util pentru orice familie. Ansamblul rezidential este format din doua blocuri de doar 2 etaje, ceea ce ofera intimitate si liniste. Finalizarea lucrarilor este programata pentru sfarsitul anului, iar CF-urile vor fi disponibile in februarie. Se poate achizitiona parcare subterana la pretul de 7.000 € sau exterioara la 5.000 €. Pretul afisat include TVA. ID: P11584 O alegere excelenta pentru cei care cauta un apartament confortabil, intr-o zona aerisita, cu acces rapid catre Cluj-Napoca.
Citește mai mult Citește mai puțin
Semidecomandat Nemobilat 1 Balcon / Terasă / Logie Zonă rurală

Detalii apartament

ID anunț: XE7D106NV Copiat! 271025803 Copiat!
Actualizat în: 09 Martie 2026
Nr. bucătării: 1
Nr. băi: 1
Regim înălțime: P+2E

Utilități

Comision
2%+TVA

Disponibilitate proprietate:

imediat

Puncte de interes

Mijloace transport
bus-station
Gara Apahida
Stații autobuz aprox. 780 m
Școală
kindergarten
Gradinita
Gradinițe aprox. 1846 m
Recreere
restaurant
Victoria
Restaurant aprox. 863 m
pub
Birtul local
Pub aprox. 1075 m
sports-ground
Terend de Fotbal
Terenuri sport aprox. 1702 m
sports-ground
Teren de Tenis
Terenuri sport aprox. 1742 m

Detalii despre preț și costuri

Prețul pe piață

Preț cerut: 98.000 €

Preț min. zonă
Preț max. zonă

72% dintre proprietățile similare ca zonă și nr. camere au prețul cerut mai mare. mai multe...

Bine de știut: prețul unei proprietăți este influențat și de alte caracteristici, cum ar fi: vechime, localizare, vecinătăți, suprafață, compartimentare, amenajări, dotări, etc. mai puțin...

Insight premium disponibil după login

Costuri cu achiziția

Fără credit
Credit ipotecar
Noua casă

i

Costuri adiționale mai puțin știute la achiziție: taxe notariale, comisioane etc.

Insight premium disponibil după login

Proprietăți recomandate

Detalii de contact

Bling Imobiliare

Csabi Farkas Broker

Bling Imobiliare

Abonează-te la newsletter să fii primul care primește cele mai noi recomandări de proprietăți și sfaturi de la experți.

CONTACT

Creează alertă

Salvează căutarea ca să primești pe email ultimele anunțuri publicate

Apartamente cu 3 camere de vânzare în Apahida, Județul Cluj