Apartament de vanzare 55 mp Zona Boul Rosu

68.000 €

Romanilor, Arad

Nr. cam.:
2
Sup. utilă:
55 mp
Etaj:
Parter
An constr.:
1980
  • • Comision 0%
  • • Locație Verificată
  • • Locație exactă

Descriere apartament

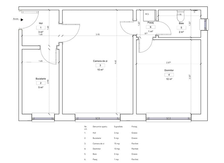
De vanzare apartament cu 2 camere cu o suprafata de 55 mp, situat in zona Boul Rosu, pe strada Haiducilor. Imobilul este situat in apropiere de stație de autobuz, școală, restaurante, supermarket. Situat la parter, intr-un imobil construit in anul 1980, apartamentul este compartimentat astfel: hol acces, bucatarie inchisa, camera de zi, vestibul, dormitor si boxa de depozitare la subsol. Baia a fost renovata in urma cu 2 ani si dispune de fereastra PVC de aerisire. Apartamentul se vinde mobilat, cu toate electrocasticele si dotarile incluse. Incalzire cu centrala proprie, geamuri PVC si o boxa de depozitare la subsol. Pretul acestui apartement este de 68.000 Euro, direct de la proprietar Centrală termică proprie Baie renovată recent (cu geam) Boxă de depozitare la subsol inclusă Locație top: Aproape de supermarket, școală și bus. Pentru mai multe informații, vă rog să mă contactați la numărul afișat. Nicoleta Aliman
Citește mai mult Citește mai puțin
Decomandat Mobilat Centrală proprie Bine întreținut (Bună)

Detalii apartament

ID anunț: XV1000H0O Copiat! 275456181 Copiat!
Actualizat în: 21 Aprilie 2026
Nr. băi: 1
Tip imobil: Bloc de apartamente

Utilități

Utilități
Apă Canalizare Gaze
Sistem încălzire
Centrală proprie pe Gaz cu Calorifere
Comision
0%

Puncte de interes

Mijloace transport
bus-station
Piata Romana
Stații autobuz aprox. 239 m
tram-station
Piata Podgoria
Stații tramvai aprox. 1963 m
Școală
school
Grup Scolar Industrial Aurel Vlaicu
Școli aprox. 447 m
school
Liceul Pedagogic Dimitrie Tichindeal
Școli aprox. 457 m
university
Facultatea de Stiinte ale Naturii
Universități aprox. 936 m
university
Vasile Goldis: Facultatea de Stiinte Juridice
Universități aprox. 985 m
Recreere
restaurant
Pizzeria Mia
Restaurant aprox. 85 m
supermarket
Profi
Supermarket aprox. 203 m
park
Piata Olimp
Parcuri aprox. 244 m
sports-ground
UTA Tennis Club
Terenuri sport aprox. 357 m

Detalii despre preț și costuri

Prețul pe piață

Preț cerut: 68.000 €

Preț min. zonă
Preț max. zonă

52% dintre proprietățile similare ca zonă și nr. camere au prețul cerut mai mare. mai multe...

Bine de știut: prețul unei proprietăți este influențat și de alte caracteristici, cum ar fi: vechime, localizare, vecinătăți, suprafață, compartimentare, amenajări, dotări, etc. mai puțin...

Insight premium disponibil după login

Costuri cu achiziția

Fără credit
Credit ipotecar
Noua casă

i

Costuri adiționale mai puțin știute la achiziție: taxe notariale, comisioane etc.

Insight premium disponibil după login

Proprietăți similare

Apartament cu 2 camere decomandat, mobilat în Romanilor
64.900 €
Arad, Romanilor
2 camere
50 mp
Etaj 9 / 10
Apartament cu 2 camere decomandat, mobilat în Romanilor
65.000 €
Arad, Romanilor
2 camere
50 mp
Etaj 10
Apartament cu 2 camere decomandat în Romanilor
63.000 €
Arad, Romanilor
2 camere
46,79 mp
Etaj 4

Detalii de contact

Aliman nicoleta

Aliman nicoleta

Proprietar

Abonează-te la newsletter să fii primul care primește cele mai noi recomandări de proprietăți și sfaturi de la experți.

CONTACT

Creează alertă

Salvează căutarea ca să primești pe email ultimele anunțuri publicate

Apartamente cu 2 camere de vânzare în zona Romanilor, Arad