2

Apartamente 2 camere semifinisate ,

82.500 €

Baciu, Județul Cluj

Nr. cam.:
2
Sup. utilă:
37 mp
Etaj:
1 / 2
An constr.:
2025 (Finalizată)
  • • Locație aproximativă

Descriere apartament

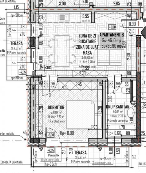
GreenCasa Imobiliare va propune spre vanzare 3 apartamente noi, semifinisat, 2 camere | Baciu strada Cometei Zonă retrasă și liniștită. va prezint un apartament într-un bloc exclusivist, cu doar 12 apartamente, construit din beton armat și cărămidă, cu izolație exterioară de 15 cm. Apartamentele se afla la etajul 1, are o compartimentare modernă cu orientare sudică: living cu bucătărie open-space + balcon, dormitor + balcon cu vedere superba, baie cu ări premium: Centrală termică proprie Încălzire în pardoseală Geamuri termopan cu profil PVC Regim redus de înălțime (D+P+2) intimitate și liniște , 2 Apartamente: preț -82.500 +Tva inclus suprafața 37mp +2 balcoane 6,27mp +4,37mp si 1 apartament preț 92.500 Tva inclus suprafața 40,40mp + balcon 8,91mpParcare subterană disponibilă 8.500 Ideal pentru locuință sau investiție, într-o zonă aerisită, aproape de oraș, dar departe de agitație. ID Extern P141968
Citește mai mult Citește mai puțin
Confort 1 Semidecomandat 2 Balcoane / Terase / Logii Centrală proprie Încălzire prin pardoseală Bine întreținut (Bună)

Detalii apartament

ID anunț: XFUS100L7 Copiat! 275386727 Copiat!
Actualizat în: 17 Mai 2026
Nr. bucătării: 1
Nr. băi: 1
Structură rezistență: Cărămidă
Tip imobil: Bloc de apartamente
Tip tranzacție: De vânzare prin agent
Regim înălțime: P+2E
Modalitate de plată: Cash sau Credit

Utilități

Ușă intrare
Metal
Izolații termice
Exterior
Ferestre cu geam termopan
PVC
Contorizare
Apometre Contor gaz
Facilități imobil
Interfon
Utilități
Curent Apă Canalizare Gaze
Internet
Fibră optică
Amenajare străzi
Asfaltate
Comision
2%

Certificat energetic:

Clasa energetică: B

Puncte de interes

Mijloace transport
bus-station
Statia Intermediara, Linia 31B
Stații autobuz aprox. 243 m
bus-station
Regina
Stații autobuz aprox. 368 m
bus-station
Statia Blocuri, Linia 31B
Stații autobuz aprox. 410 m
bus-station
Aprozar
Stații autobuz aprox. 427 m
Școală
kindergarten
Gradinita Baciu
Gradinițe aprox. 1031 m
school
Scoala Gimnaziala Speciala Transilvania
Școli aprox. 1251 m
school
Scoala cu Clasele I-VIII Baciu
Școli aprox. 1288 m
kindergarten
Grăd.Neghinițăstr. 2
Gradinițe aprox. 1608 m
Recreere
restaurant
Regal
Restaurant aprox. 26 m
park
Parc copii
Parcuri aprox. 746 m
sports-ground
Teren sportiv
Terenuri sport aprox. 794 m
park
Parc
Parcuri aprox. 1976 m

Detalii despre preț și costuri

Prețul pe piață

Preț cerut: 82.500 €

Preț min. zonă
Preț max. zonă

i

Proprietate cu prețul cerut în afara intervalului mai multe...

Posibile explicații pentru faptul că prețul proprietății este sub cel minim: imobil cu risc seismic, imobil cu probleme structurale, imobil demolabil, poziționare în altă zonă
Bine de știut: prețul unei proprietăți este influențat și de alte caracteristici, cum ar fi: vechime, localizare, vecinătăți, suprafață, compartimentare, amenajări, dotări, etc.
Acces la informații premium după autentificare
Login Gratuit

Costuri cu achiziția

Fără credit
Credit ipotecar
Noua casă

i

Costuri adiționale mai puțin știute la achiziție: taxe notariale, comisioane etc.

Acces la informații premium după autentificare
Login Gratuit

Proprietăți similare

Apartament cu 2 camere semidecomandat în Baciu
82.885 €
Județul Cluj, Baciu
2 camere
37 mp
Etaj 1
Apartament cu 2 camere decomandat în Baciu
76.000 €
Județul Cluj, Baciu
2 camere
42 mp
Etaj 2
Apartament cu 2 camere în Baciu
86.400 €
Județul Cluj, Baciu
2 camere
56 mp
Etaj 1

Detalii de contact

GREEN CASA IMOBILIARE

GreenCasa Imobiliare

GREEN CASA IMOBILIARE
PRO

Abonează-te la newsletter să fii primul care primește cele mai noi recomandări de proprietăți și sfaturi de la experți.

CONTACT

Creează alertă

Salvează căutarea ca să primești pe email ultimele anunțuri publicate

Apartamente noi cu 2 camere de vânzare în Baciu, Județul Cluj