Apartament 2 camere, terasa, zona Petrom , Baciu

133.400 €

Baciu, Județul Cluj

Nr. cam.:
2
Sup. utilă:
58 mp
Etaj:
3 / 3
An constr.:
2024 (Finalizată)
  • • Locație aproximativă

Descriere apartament

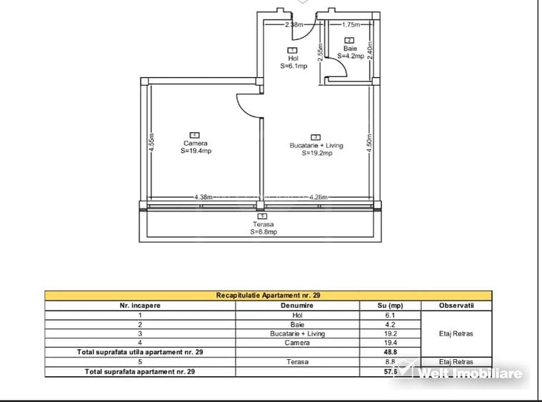
Va propunem spre vanzare un apartament de 2 camere cu suprafata utila de 58 mp in zona Petrom, Baciu. Apartamentul este situat la etajul retras al unui imobil cu regim de inaltime S+P+2+Er. Compartimentarea este semidecomandata si se prezinta astfel: hol intrare, living cu bucătărie de tip open-space, 1 dormitor, 1 baie si o terasa de 8mp . Apartamentul se vinde gata finisat dispune de incalzire in pardoseala si geamuri cu trei sticle. Imobilul este dotat cu lift si este situat intr-o zona cu acces facil la puncte de interes precum statie de autobuz, magazine, sala de fitness. De asemenea exista și 1 loc de parcare subteran care sde poate achizitiona la pretul de 7500 euro. Pentru mai multe detalii sau pentru stabilirea unei vizionari nu ezitati sa ne contactati.
Citește mai mult Citește mai puțin
Semidecomandat Nemobilat Încălzire prin pardoseală 1 Garaj Bine întreținut (Bună)

Detalii apartament

ID anunț: X1KA10F7R Copiat! 275467233 Copiat!
Actualizat în: 23 Aprilie 2026
Nr. bucătării: 1
Nr. băi: 1
Structură rezistență: Cărămidă
Tip imobil: Bloc de apartamente
Regim înălțime: P+3E
Nr. terase: 1

Utilități

Ușă intrare
Metal
Ferestre cu geam termopan
PVC Aluminiu
Alte spații utile
Terasă
Facilități imobil
Interfon Lift
Utilități
Curent Apă Canalizare Gaze
Amenajare străzi
Asfaltate

Puncte de interes

Mijloace transport
bus-station
Statia Blocuri, Linia 31B
Stații autobuz aprox. 17 m
bus-station
Regina
Stații autobuz aprox. 40 m
bus-station
Aprozar
Stații autobuz aprox. 117 m
bus-station
Primarie
Stații autobuz aprox. 343 m
Școală
kindergarten
Gradinita Baciu
Gradinițe aprox. 627 m
school
Scoala Gimnaziala Speciala Transilvania
Școli aprox. 847 m
school
Scoala cu Clasele I-VIII Baciu
Școli aprox. 887 m
Recreere
restaurant
Baciu
Restaurant aprox. 92 m
park
Parc copii
Parcuri aprox. 360 m
restaurant
Regal
Restaurant aprox. 416 m
sports-ground
Teren sportiv
Terenuri sport aprox. 450 m

Detalii despre preț și costuri

Prețul pe piață

Preț cerut: 133.400 €

Preț min. zonă
Preț max. zonă

66% dintre proprietățile similare ca zonă și nr. camere au prețul cerut mai mic. mai multe...

Bine de știut: prețul unei proprietăți este influențat și de alte caracteristici, cum ar fi: vechime, localizare, vecinătăți, suprafață, compartimentare, amenajări, dotări, etc. mai puțin...

Insight premium disponibil după login

Costuri cu achiziția

Fără credit
Credit ipotecar
Noua casă

i

Costuri adiționale mai puțin știute la achiziție: taxe notariale, comisioane etc.

Insight premium disponibil după login

Proprietăți similare

Apartament cu 3 camere semidecomandat, mobilat în Baciu
139.000 €
Județul Cluj, Baciu
3 camere
56,41 mp
Etaj 3 / 4
Apartament cu 3 camere semidecomandat, mobilat în Baciu
145.000 €
Județul Cluj, Baciu
3 camere
65 mp
Etaj 2 / 4
Apartament cu 3 camere semidecomandat în Baciu
125.000 €
Județul Cluj, Baciu
3 camere
54,77 mp
Parter / 2

Detalii de contact

WELT IMOBILIARE

Welt Imobiliare

4.35(22 review-uri)

WELT IMOBILIARE
PRO

Abonează-te la newsletter să fii primul care primește cele mai noi recomandări de proprietăți și sfaturi de la experți.

CONTACT

Creează alertă

Salvează căutarea ca să primești pe email ultimele anunțuri publicate

Apartamente noi cu 2 camere de vânzare în Baciu, Județul Cluj